Comentari guardat!
Només ho veuràs tú
Comment saved!
Añade tu valoración y/o un comentario para este anuncio. Sólo lo verás tú

Àtic amb calefacció aparcament a Alguaire

  • 190 m2
  • 5 hab.
  • 3 banys
  • 1.050 €/m2

EL ÁTICO DÚPLEX QUE BUSCABAS EN ALGUAIRE!

? ¡EL ÁTICO DÚPLEX QUE BUSCABAS EN ALGUAIRE! ?
¿Te imaginas terminar el día relajándote en una terraza privada con vistas despejadas? Si buscas amplitud, luz y la tranquilidad de un entorno auténtico, ¡este ático dúplex en Alguaire es el hogar que necesitas!

Con 190 m2 distribuidos con inteligencia en dos plantas, esta propiedad redefine el concepto de espacio y confort.

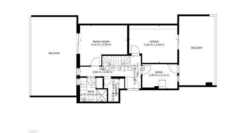
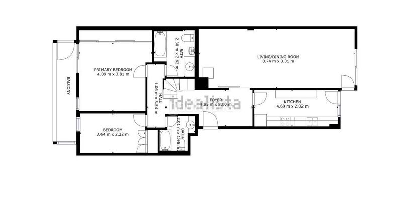
?? Distribución pensada para tu comodidad:
Planta principal:
? Amplio salón-comedor con salida directa al balcón.

? Cocina independiente totalmente funcional.

? 2 baños completos.

? 2 dormitorios con acceso propio al balcón.

??? Planta superior:

? 3 habitaciones adicionales (ideales para familia, despacho o invitados).

? 1 baño completo adicional.

? Zona de lavandería independiente.

?? Exteriores: Varias terrazas privadas
Sin duda, la joya de la corona. Espacios exteriores amplios donde organizar cenas bajo las estrellas, tomar el sol con total privacidad o simplemente disfrutar del silencio. ¡Te enamorarán a primera vista!

?? Vivir en Alguaire: Calidad de vida y relax
Ubicado en un entorno tranquilo y muy bien comunicado, este ático te permite disfrutar de la calma de un pueblo con todos los servicios esenciales al alcance. Es la zona ideal para quienes buscan comodidad y desconexión sin renunciar a la proximidad de la ciudad:
Conexión estratégica: A tan solo 15 minutos de Lleida capital y con acceso inmediato a las principales vías. ¡Ideal para quienes trabajan en la ciudad pero valoran el descanso al llegar a casa!
Entorno natural: Un escenario perfecto para los amantes del deporte al aire libre y los paseos por la naturaleza.

?? Extra: El inmueble cuenta, de forma adicional, con una plaza de parking en el mismo edificio (12.000 € adicionales) para que tu comodidad sea total desde el primer día.

¡No dejes escapar esta oportunidad única! Llámanos hoy mismo y te informaremos de todos los extras de este espléndido hogar. Atendemos sin compromiso.

última modificació

Distribució

  • 5 habitacions
  • Superfície 190 m2
  • 3 banys

Característiques generals

  • Calefacció
  • Plaça aparcament
  • Aire Acondicionat
  • Any construcció 2005
  • Certificat energètic :
    Consumo:
    E
    34 kW h m2 / año
    Emisiones:
    E
    164 kg CO2 m2 / año

Equipament comunitari

  • Ascensor
Anunci: 5614004100001

Ubicació

Navega pel mapa fent clic a sobre
199.500 € Preu de l´anunci
1.610 €/m2€/m2 comarca
1.050 €/m2€/m2 de l´anunci
35% més econòmic que la mitja*
Veure evolució €/m2 a Alguaire
T´avisem quan tinguem un anunci com aquest? Crea la teva alerta i nosaltres t´avisarem per correu electrònic quan hi hagin nous anuncis o siguin modificats
 

Contactar GRUP 90

Referència de l´anunci habitaclia/25-5-07455:

Veuràs el telèfon després d´enviar el contacte a l´anunciant perquè et pugui atendre.
Veuràs el telèfon després de contactar
Enviant…