Visita virtual
Comentari guardat!
Només ho veuràs tú
Comment saved!
Añade tu valoración y/o un comentario para este anuncio. Sólo lo verás tú

Àtic amb calefacció aparcament piscina a Montgat

Pare Claret

  • 96 m2
  • 3 hab.
  • 2 banys
  • 10.365 €/m2

Exclusivo ático con espectaculares vistas al mar y a Barcelona, a 200m de la playa en Montgat

Exclusivo ático de 96m² construidos que destaca por su espectacular entorno y luminosidad, rodeado por una impresionante terraza perimetral de 323m2 orientada a tres vientos. Desde esta, unas elegantes escaleras conducen a una magnífica terraza superior privada con jacuzzi, creando un espacio único para el relax y el ocio.
Ambas terrazas, con una superficie total aproximada de 323 m², ofrecen vistas panorámicas inigualables al mar y a la montaña, convirtiendo cada rincón en un auténtico mirador privilegiado.
La vivienda, completamente exterior, cuenta con un amplio salón-comedor con cocina integrada totalmente equipada, con acceso directo al exterior y vistas al mar también desde el interior, aportando una sensación continua de amplitud y conexión con el entorno.
La zona de noche se compone de tres habitaciones dobles, destacando la suite principal con vestidor y baño privado. Un segundo baño completo da servicio al resto de la vivienda.
Ubicado en un cuidado complejo residencial, dispone de piscina comunitaria y amplias zonas ajardinadas. La propiedad incluye además dos plazas de garaje y un trastero.
Situado en Montgat, en segunda línea de mar, a tan solo 200 metros de la playa y con excelentes conexiones a Barcelona, este ático representa una oportunidad única para disfrutar de un estilo de vida exclusivo junto al Mediterráneo.

última modificació

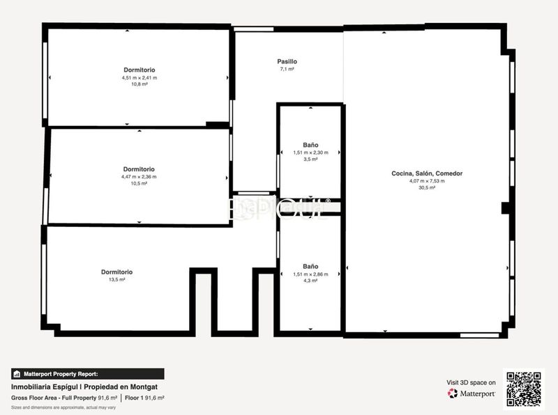
Distribució

  • 3 habitacions
  • Superfície 96 m2
  • Terrassa 313 m2
  • 2 banys
  • Cuina Tipus Office: No
  • Traster

Característiques generals

  • Calefacció
  • Plaça aparcament
  • Moblat
  • Aire Acondicionat
  • Any construcció 2020
  • Certificat energètic :
    Consumo:
    G
    999 kW h m2 / año
    Emisiones:
    G
    999 kg CO2 m2 / año

Equipament comunitari

  • Ascensor
  • Piscina Comunitària
Anunci: 56417000000085

Ubicació

Pare Claret

Navega pel mapa fent clic a sobre
995.000 € Preu de l´anunci
3.877 €/m2€/m2 población
10.365 €/m2€/m2 de l´anunci
Veure evolució €/m2 a Montgat
T´avisem quan tinguem un anunci com aquest? Crea la teva alerta i nosaltres t´avisarem per correu electrònic quan hi hagin nous anuncis o siguin modificats
 

Contactar ESPIGUL MARESME

Referència de l´anunci habitaclia/4912:

Veuràs el telèfon després d´enviar el contacte a l´anunciant perquè et pugui atendre.
Veuràs el telèfon després de contactar
Enviant…