Comentari guardat!
Només ho veuràs tú
Comment saved!
Añade tu valoración y/o un comentario para este anuncio. Sólo lo verás tú

Àtic amb aparcament a San Nicolás Murcia

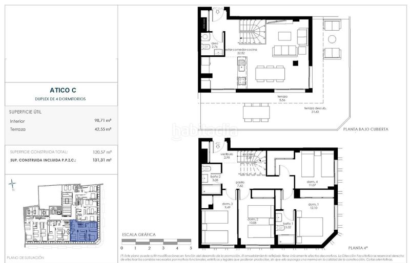
  • 130 m2
  • 4 hab.
  • 2 banys
  • 4.538 €/m2

Áticos dúplex de nueva construcción en el centro de Murcia, cerca de la Plaza Mayor

Áticos dúplex de nueva construcción en el centro de Murcia, cerca de la Plaza Mayor

Vida exclusiva en el corazón de Murcia
Descubra estos amplios áticos dúplex de nueva construcción situados en pleno centro de Murcia, a pocos pasos de la Plaza Mayor. Ubicado entre el centro histórico de la ciudad y la zona comercial cerca de El Corte Inglés, este complejo ofrece una oportunidad única para disfrutar del confort moderno en una de las ubicaciones urbanas más codiciadas de la Región de Murcia.

Murcia es conocida por su animada vida urbana, su impresionante arquitectura barroca, su reconocida gastronomía y su agradable clima durante todo el año. Vivir en el centro de la ciudad significa tener restaurantes, boutiques, centros culturales, colegios y todos los servicios esenciales a poca distancia.

Amplios áticos dúplex de 3 y 4 dormitorios con grandes terrazas
Estos exclusivos áticos ofrecen 3 o 4 dormitorios distribuidos en dos niveles, lo que proporciona espacios generosos y funcionales, ideales para familias o para quienes buscan espacio adicional para trabajar desde casa.

Una de las características más destacadas son las amplias terrazas privadas de más de 40 m2, que ofrecen vistas abiertas y abundante luz natural. Estos espacios al aire libre son perfectos para relajarse, recibir invitados o disfrutar de una cena al aire libre en el centro de la ciudad.

El edificio cuenta con ascensor y es totalmente accesible para personas con movilidad reducida. Hay plazas de aparcamiento y trasteros opcionales disponibles con un coste adicional, lo que añade comodidad a esta ubicación urbana privilegiada.

Acabados de alta gama y eficiencia energética
Cada ático ha sido diseñado para ofrecer el máximo confort y eficiencia. La cocina totalmente equipada con electrodomésticos integrados crea un espacio perfecto para los amantes de la cocina.

Las características principales incluyen:
Clasificación de eficiencia energética A
Aire acondicionado por conductos totalmente instalado
Calefacción por suelo radiante
Paquete de domótica
Sistema de videoportero
Iluminación LED en salón, baños y dormitorios
Estas especificaciones de alta calidad garantizan un bajo consumo energético, la reducción de emisiones y un confort térmico óptimo durante todo el año.

Ubicación privilegiada y distancias
Catedral de Murcia 0,5 km
Plaza Mayor de Murcia 0,3 km
Estación de tren de Murcia 1,5 km
Altorreal Golf 15 km
Aeropuerto Internacional de Murcia 25 km
Playas del Mediterráneo 50 km

Asegúrese su ático de lujo en Murcia
Estos áticos dúplex de nueva construcción combinan espacio, eficiencia energética y una ubicación céntrica inmejorable en Murcia. Póngase en contacto con nosotros hoy mismo para recibir más información o concertar una visita privada y asegurarse su nueva vivienda en el corazón de la ciudad.

última modificació

Distribució

  • 4 habitacions
  • Superfície 130 m2
  • Terrassa 42 m2
  • 2 banys

Característiques generals

  • Plaça aparcament
  • Aire Acondicionat
  • Any construcció 2025
  • A prop de transport públic
  • Certificat energètic :
    Consumo:
    G
    999 kW h m2 / año
    Emisiones:
    G
    999 kg CO2 m2 / año

Equipament comunitari

  • Ascensor
Anunci: 40629000007891

Ubicació

San Nicolás

Navega pel mapa fent clic a sobre
590.000 € Preu de l´anunci
2.581 €/m2€/m2 distrito
4.538 €/m2€/m2 de l´anunci
¿Cuánto te gustaría pagar?
Veure evolució €/m2 a Murcia (Centro)
T´avisem quan tinguem un anunci com aquest? Crea la teva alerta i nosaltres t´avisarem per correu electrònic quan hi hagin nous anuncis o siguin modificats
 

Contactar Andalumar

Referència de l´anunci habitaclia/SP1505:

Veuràs el telèfon després d´enviar el contacte a l´anunciant perquè et pugui atendre.
Veuràs el telèfon després de contactar
Enviant…