Comentari guardat!
Només ho veuràs tú
Comment saved!
Añade tu valoración y/o un comentario para este anuncio. Sólo lo verás tú

Àtic a San Nicolás Murcia

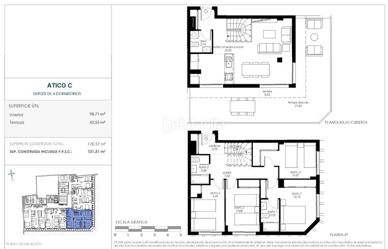
  • 130 m2
  • 4 hab.
  • 2 banys
  • 4.538 €/m2

Estrellas Properties Benidorm | Agencia Inmobiliaria LicenciadaServicio profesional y acompañamiento integral en operaciones inmobiliarias en la Costa Blanca.Áticos dúplex de nueva construcción en el centro de Murcia, cerca de la Plaza MayorVida exclusiva en el corazón de MurciaDescubra estos amplios áticos dúplex de nueva construcción situados en pleno centro de Murcia, a pocos pasos de la Plaza Mayor. Ubicado entre el centro histórico de la ciudad y la zona comercial cerca de El Corte Inglés, este complejo ofrece una oportunidad única para disfrutar del confort moderno en una de las ubicaciones urbanas más codiciadas de la Región de Murcia.Murcia es conocida por su animada vida urbana, su impresionante arquitectura barroca, su reconocida gastronomía y su agradable clima durante todo el año. Vivir en el centro de la ciudad significa tener restaurantes, boutiques, centros culturales, colegios y todos los servicios esenciales a poca distancia.Amplios áticos dúplex de 3 y 4 dormitorios con grandes terrazasEstos exclusivos áticos ofrecen 3 o 4 dormitorios distribuidos en dos niveles, lo que proporciona espacios generosos y funcionales, ideales para familias o para quienes buscan espacio adicional para trabajar desde casa.Una de las características más destacadas son las amplias terrazas privadas de más de 40 m2, que ofrecen vistas abiertas y abundante luz natural. Estos espacios al aire libre son perfectos para relajarse, recibir invitados o disfrutar de una cena al aire libre en el centro de la ciudad.El edificio cuenta con ascensor y es totalmente accesible para personas con movilidad reducida. Hay plazas de aparcamiento y trasteros opcionales disponibles con un coste adicional, lo que añade comodidad a esta ubicación urbana privilegiada.Acabados de alta gama y eficiencia energéticaCada ático ha sido diseñado para ofrecer el máximo confort y eficiencia. La cocina totalmente equipada con electrodomésticos integrados crea un espacio perfecto para los amantes de la cocina.Las características principales incluyen:Clasificación de eficiencia energética AAire acondicionado por conductos totalmente instaladoCalefacción por suelo radiantePaquete de domóticaSistema de videoporteroIluminación LED en salón, baños y dormitoriosEstas especificaciones de alta calidad garantizan un bajo consumo energético, la reducción de emisiones y un confort térmico óptimo durante todo el año.Ubicación privilegiada y distanciasCatedral de Murcia 0,5 kmPlaza Mayor de Murcia 0,3 kmEstación de tren de Murcia 1,5 kmAltorreal Golf 15 kmAeropuerto Internacional de Murcia 25 kmPlayas del Mediterráneo 50 kmAsegúrese su ático de lujo en MurciaEstos áticos dúplex de nueva construcción combinan espacio, eficiencia energética y una ubicación céntrica inmejorable en Murcia. Póngase en contacto con nosotros hoy mismo para recibir más información o concertar una visita privada y asegurarse su nueva vivienda en el corazón de la ciudad.En Estrellas Properties ofrecemos una cuidada selección de propiedades en la Costa Blanca, trabajando con clientes nacionales e internacionales y garantizando un acompañamiento profesional durante toda la operación.Idiomas de atención: español · inglés · polaco · ucraniano · ruso316

última modificació

Distribució

  • 4 habitacions
  • Superfície 130 m2
  • 2 banys

Característiques generals

  • Sense plaça aparcament
  • Sense aire acondicionat
  • Certificat energètic :
    Consumo:
    G
    999 kW h m2 / año
    Emisiones:
    G
    999 kg CO2 m2 / año

Equipament comunitari

  • Sense ascensor
Anunci: 51564000004763

Ubicació

San Nicolás

Navega pel mapa fent clic a sobre
590.000 € Preu de l´anunci
2.581 €/m2€/m2 distrito
4.538 €/m2€/m2 de l´anunci
¿Cuánto te gustaría pagar?
Veure evolució €/m2 a Murcia (Centro)
T´avisem quan tinguem un anunci com aquest? Crea la teva alerta i nosaltres t´avisarem per correu electrònic quan hi hagin nous anuncis o siguin modificats
 

Contactar Estrellas Properties Benidorm

Referència de l´anunci habitaclia/SP1505:

Veuràs el telèfon després d´enviar el contacte a l´anunciant perquè et pugui atendre.
Veuràs el telèfon després de contactar
Enviant…