Visita virtual
Comentari guardat!
Només ho veuràs tú
Comment saved!
Afegeix la teva valoració i/o un comentari per aquest anunci. Només el veuràs tu
270.000 € Avisa´m si baixa
ha baixat 30.000 €

Casa amb calefacció a Bellprat

Cal Bordes

  • 300 m2
  • 3 hab.
  • 3 banys
  • 900 €/m2

Magnífica casa de pueblo restaurada

Engel&Völkers presenta este inmueble construido en 1870 y restaurado en 2003, en muy buen estado de conservación y ubicación ideal, 3 habitaciones grandes, amplio salón, comedor, cocina abierta, terraza-solarium, bodega y calefacción, son algunos de sus puntos fuertes.
Se trata de una propiedad cómoda, práctica y funcional en todos los aspectos, donde resulta muy fácil encontrarse a gusto desde el primer momento y conserva todos los encantos de una construcción de más de 150 años, con mucha historia bajo arcos de piedra y vigas de madera tratada.
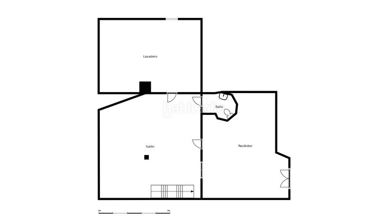
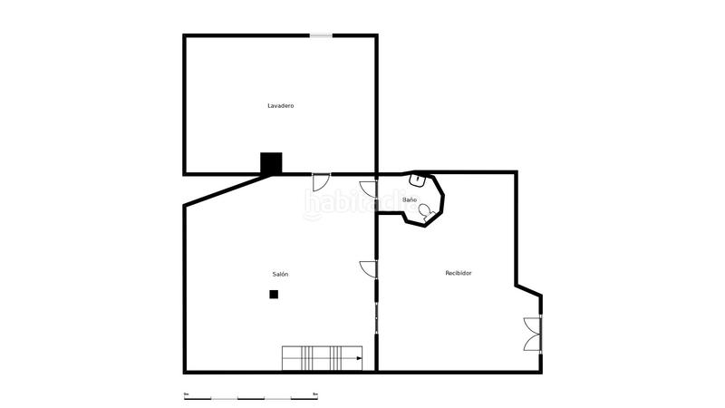
En la planta inferior disponemos de un amplio vestíbulo que nos permite acceder a una bodega rodeada subterránea, o entrar en la vivienda.
En el distribuidor de entrada encontramos las escaleras interiores que comunican las tres plantas, iluminadas naturalmente gracias a una claraboya en la cubierta. También hay un aseo, una sala para atender visitas y el paso abierto a un lavadero y un patio.
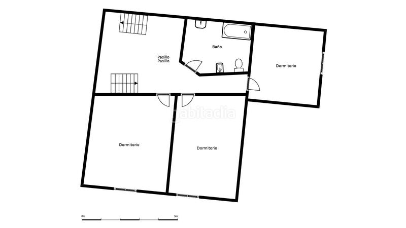
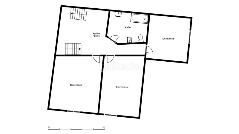
La segunda planta se destina a la zona de noche con tres amplias habitaciones exteriores y un baño completo.
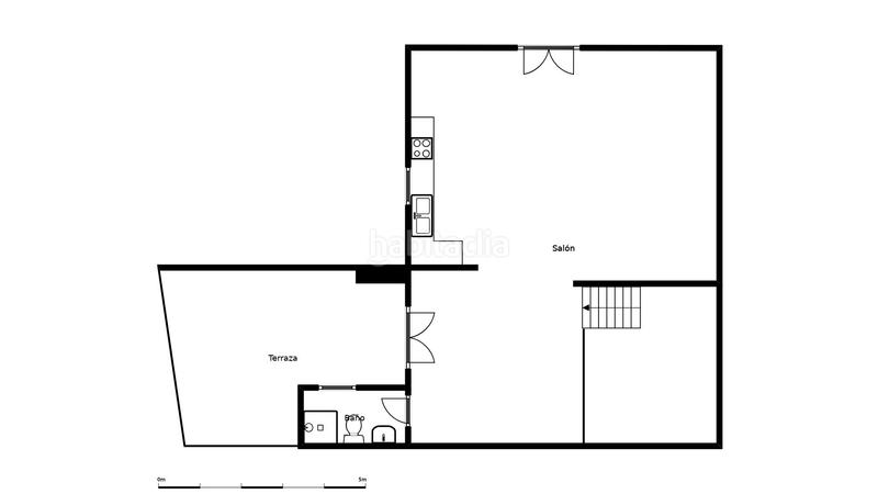
La planta superior, la más abierta a la luz y sus vistas, es diáfana y permite albergar un comedor, un salón con chimenea, un baño completo y una terraza-solarium.
La calefacción asegura confort todo el año.
Se trata de una vivienda cómoda y funcional en un paraje de gran belleza, tranquilidad y contacto con la naturaleza. Un entorno rural idílico.
Contacte con nosotros y solicite cita para visitar una propiedad que le sorprenderá nada más entrar.
Formado en el siglo XVI en el valle de la riera, junto a la sierra de Queralt, Bellprat es un pequeño municipio rural enclavado en un entorno de extraordinaria belleza.
Está ubicado en una pequeña colina (653 msnm) entre prados que, tal y como su nombre recoge (Bellprat significa “prado bello”), son de gran belleza y están arropados por bosque mediterráneo que invita a ser paseado.
Con tan solo 72 habitantes censados (en el año 2023) y aparentemente aislado, podría pensarse que se trata de una población alejada de la vida moderna, sin embargo, se encuentra bien comunicado, a tan solo 25 minutos de Igualada, capital de la comarca del Anoia, dónde dispondremos de todos los servicios (hospital, centros de atención primaria, universidad, escuelas, institutos, restaurantes, supermercados, ...).
Existen otras poblaciones más cercanas con servicios básicos, como Santa Coloma de Queralt (a 8 minutos) o Sant Martí Tous (a 15 minutos).
Por la autovía A2 llegaremos a Barcelona en 1 hora y 15 minutos. Por la C15 estaremos en la playa de Sitges o Vilanova i la Geltrú en 1 hora, el mismo tiempo que necesitaremos para llegar a Tarragona.
Rodeado de montañas y campos, el lugar invita a realizar actividades en familia y con amigos, como el senderismo o la bicicleta.
Visite la propiedad y guarde tiempo para pasear por su entorno, lleno de rincones con encanto e historia.

última modificació

Distribució

  • 3 habitacions
  • Superfície 300 m2
  • 3 banys

Característiques generals

  • Calefacció
  • Sense plaça aparcament
  • Sense aire acondicionat
  • Any construcció 1870
  • Certificat energètic :
    Consumo:
    E
    100 kW h m2 / año
    Emisiones:
    E
    45 kg CO2 m2 / año
Anunci: 8166003800036

Ubicació

Cal Bordes

Navega pel mapa fent clic a sobre
270.000 € Preu de l´anunci
1.676 €/m2€/m2 comarca
900 €/m2€/m2 de l´anunci
46% més econòmic que la mitja*
Veure evolució €/m2 a Bellprat
T´avisem quan tinguem un anunci com aquest? Crea la teva alerta i nosaltres t´avisarem per correu electrònic quan hi hagin nous anuncis o siguin modificats
 

Contactar ENGEL & VOELKERS

Referència de l´anunci habitaclia/I-00YA8J-W-02V7SZ:

Veuràs el telèfon després d´enviar el contacte a l´anunciant perquè et pugui atendre.
Veuràs el telèfon després de contactar
Enviant…