Comentari guardat!
Només ho veuràs tú
Comment saved!
Añade tu valoración y/o un comentario para este anuncio. Sólo lo verás tú

Casa amb aparcament piscina a Arco Norte - Avda España Dos Hermanas

  • 140 m2
  • 4 hab.
  • 2 banys
  • 2.393 €/m2

Casa en venta en Arco Norte, 4 dormitorios.

Esta preciosa vivienda unifamiliar en Dos Hermanas, zona Arco Norte, es perfecta para vivir. Cuenta con la amplitud, luminosidad y todas las comodidades necesarias para hacer de esta casa tu vivienda. Se encuentra en una zona residencial muy tranquila y con multitud de servicios, colegios, institutos, supermercados, a 10 minutos en coche de la estación de Renfe y Universidad de Pablo de Olavide y a 4 minutos de la Universidad San Ignacio de Loyola.

Ubicada en una urbanización privada con piscina comunitaria. Es una casa perfecta para aquellas personas que busquen tranquilidad y vivir en una de las mejores zonas de Dos Hermanas.

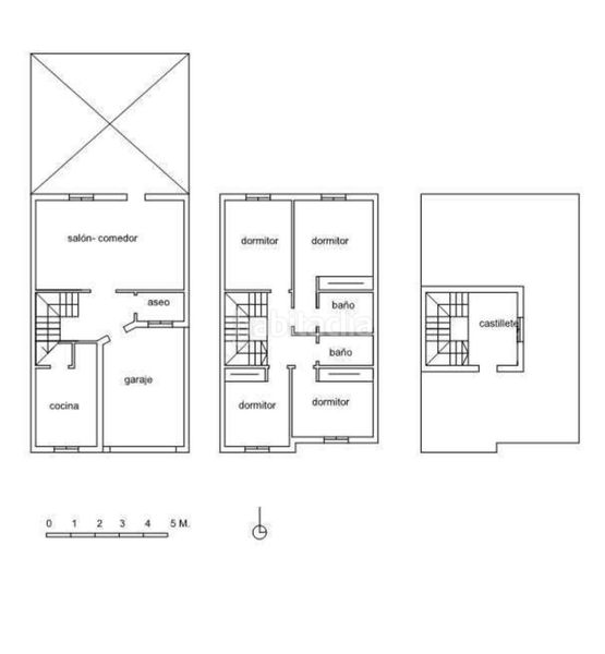
La vivienda se distribuye en tres plantas:
- Planta baja con acceso a un garaje (actualmente se está usando como otra estancia de la casa), cocina independiente con despensa, aseo exterior y amplio salón por el que se accede a un fantástico patio, ideal para disfrutar con la familia y amigos.
- Planta primera con cuatro habitaciones (todas con sus armarios empotrados) y dos baños. La habitación principal con baño en suite.
- Planta ático, cuenta con zona de lavado y cocina, algo ideal para disfrutar cómodamente de reuniones en una maravillosa azotea con bonitas vistas y atardeceres espectaculares.

Calidades: suelos de mármol, puertas lacadas en blanco, muebles de cocina seminuevos, armarios empotrados, mamparas en baños, sistema de toldos, caseta-trastero en la azotea, aire acondicionado centralizado, ventanas lacadas climalix.

Si necesita más información o concertar una visita, no dude en contactar.

***El precio de venta no incluye lo siguiente: Impuestos, Gastos de Notaría, Registro de la Propiedad ,Gestoría, posibles Gastos de Financiación y Honorarios de la agencia inmobiliaria.

última modificació

Distribució

  • 4 habitacions
  • Superfície 140 m2
  • Terreny 106 m2
  • 2 banys
  • Traster

Característiques generals

  • Plaça aparcament
  • Aire Acondicionat
  • Any construcció 2007
  • A prop de transport públic
  • Certificat energètic :
    Consumo:
    G
    999 kW h m2 / año
    Emisiones:
    G
    999 kg CO2 m2 / año

Equipament comunitari

  • Piscina Comunitària
Anunci: 28599000000393

Ubicació

Arco Norte - Avda España

Navega pel mapa fent clic a sobre
335.000 € Preu de l´anunci
1.789 €/m2€/m2 población
2.393 €/m2€/m2 de l´anunci
Veure evolució €/m2 a Dos Hermanas
T´avisem quan tinguem un anunci com aquest? Crea la teva alerta i nosaltres t´avisarem per correu electrònic quan hi hagin nous anuncis o siguin modificats
 

Contactar ALIUM

Referència de l´anunci habitaclia/522:

Veuràs el telèfon després d´enviar el contacte a l´anunciant perquè et pugui atendre.
Veuràs el telèfon després de contactar
Enviant…