Visita virtual
Comentari guardat!
Només ho veuràs tú
Comment saved!
Añade tu valoración y/o un comentario para este anuncio. Sólo lo verás tú
450.000 € Avisa´m si baixa
ha baixat 60.000 €

Casa amb calefacció aparcament a Mas Romeu Lloret de Mar

  • 211 m2
  • 6 hab.
  • 2 banys
  • 2.133 €/m2

Amplia casa con gran potencial en Mas Romeu, Lloret de Mar

Presentamos esta espaciosa casa situada en la apreciada zona residencial de Mas Romeu, en Lloret de Mar, muy próxima al conocido restaurante Mas Romeu, en un entorno tranquilo y bien comunicado. Una propiedad ideal tanto para familias que buscan amplitud y comodidad como para quienes desean una vivienda con posibilidades de personalización o una interesante inversión en la Costa Brava.

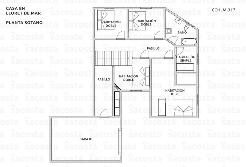
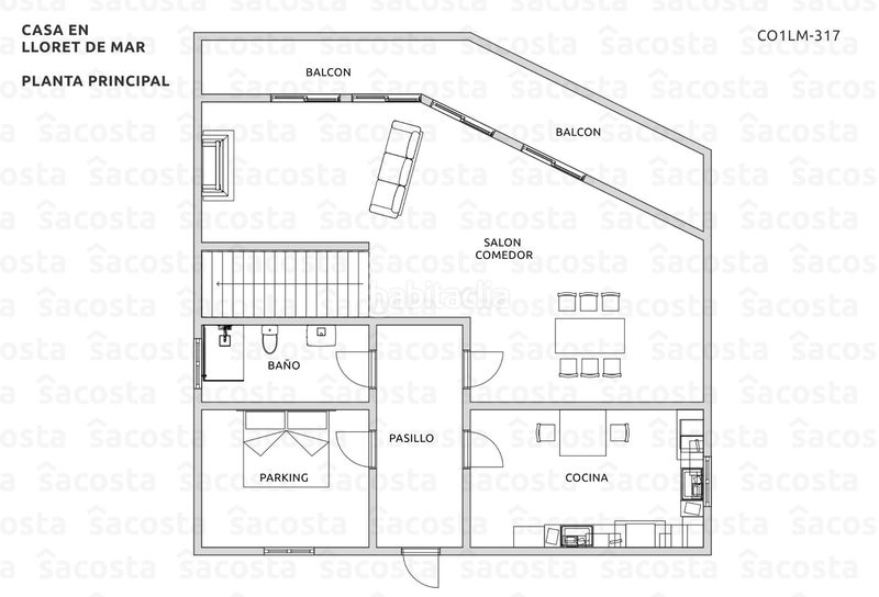
La vivienda dispone de 211 m2 construidos y 180 m2 útiles, distribuidos de forma práctica y funcional. Cuenta con cinco habitaciones dobles y una habitación sencilla, ofreciendo múltiples posibilidades para familias numerosas, invitados, despacho o zona de ocio. Además, dispone de dos baños completos, pensados para aportar confort en el día a día.

Gracias a su orientación sur, la casa disfruta de una excelente entrada de luz natural durante todo el día, creando espacios cálidos y agradables. Entre sus características destaca también la chimenea, perfecta para aportar un ambiente acogedor en los meses más frescos, y un trastero, muy práctico como espacio de almacenamiento adicional.

La propiedad se encuentra en buen estado general, aunque ofrece interesantes opciones de actualización o reforma para adaptarla al gusto del nuevo propietario y aumentar aún más su valor.
Ubicada a aproximadamente 2,9 km del mar, en una zona residencial muy valorada de Lloret de Mar, la vivienda se beneficia de la cercanía de supermercados, transporte público y servicios, todo ello en un entorno que combina tranquilidad, naturaleza y buena conexión con el centro.
Una casa con espacio, luz y muchas posibilidades en una de las zonas más demandadas de Lloret de Mar.
Una excelente oportunidad para crear un hogar a medida en la Costa Brava.
También te preparo una versión más potente y emocional, pensada especialmente para Idealista, con un tono más vendedor.

última modificació

Distribució

  • 6 habitacions
  • Superfície 211 m2
  • 2 banys
  • Traster

Característiques generals

  • Calefacció
  • Plaça aparcament
  • Any construcció 1985
  • A prop de transport públic
  • Certificat energètic :
    Consumo:
    G
    999 kW h m2 / año
    Emisiones:
    G
    999 kg CO2 m2 / año
Anunci: 36953000000341

Ubicació

Mas Romeu

Navega pel mapa fent clic a sobre
450.000 € Preu de l´anunci
2.857 €/m2€/m2 población
2.133 €/m2€/m2 de l´anunci
25% més econòmic que la mitja*
Veure evolució €/m2 a Lloret de Mar
T´avisem quan tinguem un anunci com aquest? Crea la teva alerta i nosaltres t´avisarem per correu electrònic quan hi hagin nous anuncis o siguin modificats
 

Contactar Sacosta

Referència de l´anunci habitaclia/C01LM-317:

Veuràs el telèfon després d´enviar el contacte a l´anunciant perquè et pugui atendre.
Veuràs el telèfon després de contactar
Enviant…