Comentari guardat!
Només ho veuràs tú
Comment saved!
Añade tu valoración y/o un comentario para este anuncio. Sólo lo verás tú

Casa amb aparcament a Santa Fe

REAL

  • 758 m2
  • 7 hab.
  • 3 banys
  • 191 €/m2

Casa edificio en Santa Fe

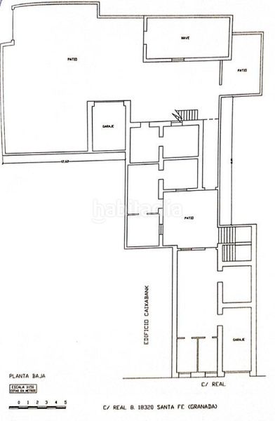
Ponemos a la venta esta casa en la Calle Real junto al ayuntamiento de Santa Fe y con preciosas vistas a la Plaza de España. Tiene una superficie construida de 758 m2 distribuido en 3 plantas y zona de patio interior. La finca tiene una superficie de 528 m2. La planta baja se distribuye en habitaciones, garajes, patio y nave de almacenamiento. En la planta primera hay 4 habitaciones con balcones, cocina y 2 baños. En la segunda planta cuenta con 3 habitaciones con balcones y un baño. La carpintería exterior y las persianas son de madera barnizada.
La vivienda necesita una reforma integral. Es ideal para inversores que quieran convertir este inmueble en un establecimiento turístico debido a su localización tan céntrica en Santa Fe. En 2024 esta casa fue tasada oficialmente en 253.000 € por lo que es factible contar con financiación bancaria para invertir en las reformas necesarias.
¡¡No lo dude y llámenos para agendar una visita!!

Aviso importante: De conformidad con lo dispuesto en el art 20.1 del TRLDCU, el precio del inmueble se incrementará en los siguientes importes:
Impuestos a cargo del comprador: En el caso de IVA al tipo vigente del 10% (Ley 37/1992 de 28 de diciembre, del impuesto sobre el Valor Añadido)
En el caso de ITP sobre el mayor de los valores entre el precio de venta o el de referencia catastral oscilando entre el 7% y el 2% en función de las condiciones del comprador, todo ello de acuerdo con el Real Decreto Legislativo 1/1993, de 24 de septiembre, por el que se aprueba el Texto refundido la Ley del Impuesto sobre Transmisiones Patrimoniales y Actos Jurídicos Documentados.
Notaría y Registro de la Propiedad: Son gastos sometidos a arancel, si bien su coste estimado puede oscilar para la notaría en un precio de entre 300€ a 600€ y en el caso del registro en un precio de entre 200€ a 450€ (Real Decreto 1426/1989 de 17 de noviembre, por el que se aprueba el Arancel de los Notarios y Real Decreto 1427/1989 de 17 de noviembre, por el que se aprueba el Arancel de los Registradores de la Propiedad respectivamente)
Honorarios profesionales de la Agencia Inmobiliaria: No incluidos en el precio de compra y su importe a cargo del comprador será de un 2,5% más IVA sobre el precio final de venta con un mínimo de 3.000€ más IVA, si el precio de venta de la vivienda es inferior a 100.000€. Dichos honorarios pueden tener excepción según la vivienda.
En el caso de precisar financiación bancaria, el importe de los gastos adicionales deberá ser consensuado con la entidad financiera. Para el cálculo del precio definitivo rogamos contacten con la entidad bancaria donde se emitirá una oferta personalizada en función de las circunstancias personales del comprador. El precio del inmueble puede ser modificado sin aviso previo y las superficies tanto construida como útil, tienen carácter descriptivo y son aproximadas. La propiedad se vende sin muebles. El cliente tiene derecho al documento informativo abreviado de la vivienda. Validez hasta fin de exclusiva.

última modificació

Distribució

  • 7 habitacions
  • Superfície 758 m2
  • 3 banys

Característiques generals

  • Plaça aparcament
  • Any construcció 1963
  • A prop de transport públic
  • Certificat energètic :
    Consumo:
    G
    999 kW h m2 / año
    Emisiones:
    G
    999 kg CO2 m2 / año
Anunci: 24856000080362

Ubicació

REAL

Navega pel mapa fent clic a sobre
145.000 € Preu de l´anunci
1.428 €/m2€/m2 población
191 €/m2€/m2 de l´anunci
87% més econòmic que la mitja*
Veure evolució €/m2 a Santa Fe
T´avisem quan tinguem un anunci com aquest? Crea la teva alerta i nosaltres t´avisarem per correu electrònic quan hi hagin nous anuncis o siguin modificats
 

Contactar ALQUICENTRO GRANADA

Referència de l´anunci habitaclia/D-75031-A:

Veuràs el telèfon després d´enviar el contacte a l´anunciant perquè et pugui atendre.
Veuràs el telèfon després de contactar
Enviant…