Visita virtual
Comentari guardat!
Només ho veuràs tú
Comment saved!
Añade tu valoración y/o un comentario para este anuncio. Sólo lo verás tú

Casa amb calefacció aparcament a Ca n'Aurell Terrassa

  • 196 m2
  • 3 hab.
  • 3.878 €/m2

Espectacular vivienda de diseño contemporáneo con acabados prémium y máxima eficiencia.

Presentamos esta exclusiva propiedad de diseño moderno, caracterizada por su alta calidad constructiva y un cuidado estudio del confort, la durabilidad y la eficiencia energética. La vivienda se encuentra en un estado impecable, lista para entrar a vivir.

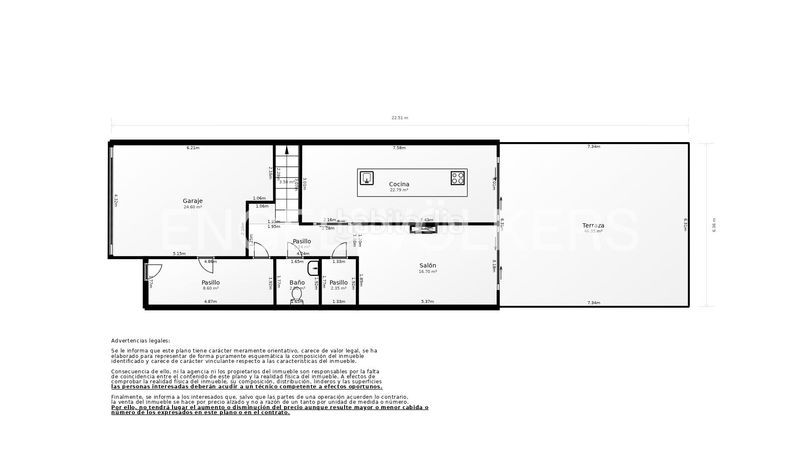
La zona de noche cuenta actualmente con dos amplios dormitorios dobles (con posibilidad real de recuperar un tercer dormitorio de grandes dimensiones). La suite principal es un auténtico refugio de descanso que incluye baño privado, vestidor y acceso directo a una impresionante terraza. La planta se completa con un segundo baño completo y un cuarto de lavandería independiente totalmente equipado.

En la planta baja, la vivienda dispone de un garaje con capacidad para coche grande y moto. La zona social destaca por su luminosidad, con un salón conectado a un gran patio privado con alto potencial para hacer una piscina y una cocina-comedor de diseño, totalmente equipada con electrodomésticos de alta gama para una máxima funcionalidad.

La propiedad destaca por sus acabados de lujo: fachada combinada en piedra natural, cerramientos con rotura de puente térmico y aislamiento de lana de roca, y carpintería exterior de aluminio con doble acristalamiento tipo Aislaglass. Los interiores cuentan con pavimentos de gres porcelánico y parqué laminado, baños con sanitarios ROCA y grifería GROHE, y cocina con encimera de Silestone.

Equipada con los últimos avances en eficiencia: calefacción por suelo radiante mediante sistema híbrido de caldera y aerotermia, 6 placas solares, cargador para vehículo eléctrico, domótica integrada, videoportero y puerta de seguridad.

Una pieza única que combina espacios exteriores, acabados de primera clase y una eficiencia energética inmejorable.

(Nota: Las imágenes con mobiliario y decoración han sido tratadas digitalmente para mostrar el potencial de los espacios).

Las imágenes en el Exposé pueden haber sido optimizadas o adaptadas con IA con fines ilustrativos.

última modificació

Distribució

  • 3 habitacions
  • Superfície 196 m2
  • Terreny 153 m2

Característiques generals

  • Calefacció
  • Plaça aparcament
  • Aire Acondicionat
  • Any construcció 2025
  • Certificat energètic :
    Consumo:
    A
    22 kW h m2 / año
    Emisiones:
    A
    3 kg CO2 m2 / año
Anunci: 8166003810367

Ubicació

Ca n'Aurell

Navega pel mapa fent clic a sobre
760.000 € Preu de l´anunci
2.200 €/m2€/m2 distrito
3.878 €/m2€/m2 de l´anunci
Veure evolució €/m2 a Terrassa (Ponent)
T´avisem quan tinguem un anunci com aquest? Crea la teva alerta i nosaltres t´avisarem per correu electrònic quan hi hagin nous anuncis o siguin modificats
 

Contactar ENGEL & VOELKERS

Referència de l´anunci habitaclia/I-048DXW-W-048DXW:

Veuràs el telèfon després d´enviar el contacte a l´anunciant perquè et pugui atendre.
Veuràs el telèfon després de contactar
Enviant…