Visita virtual
Comentari guardat!
Només ho veuràs tú
Comment saved!
Añade tu valoración y/o un comentario para este anuncio. Sólo lo verás tú

Casa amb calefacció aparcament a Torrelles de Llobregat

  • 304 m2
  • 5 hab.
  • 4 banys
  • 1.612 €/m2

Casa familiar con vistas panorámicas y apartamento independiente

Engel & Völkers les presenta, en exclusiva, esta magnífica casa situada en un entorno tranquilo y natural de Torrelles de Llobregat, en el barrio de Cesalpina, ideal para quienes buscan calidad de vida, privacidad y contacto con la naturaleza sin renunciar a la cercanía con Barcelona.

La vivienda cuenta con excelentes acabados y materiales de primera calidad. Al entrar, nos recibe una amplia estancia muy luminosa que conduce a la sala de estar-comedor, donde la luz natural y las vistas se convierten en protagonistas.

La cocina es un espacio ideal para disfrutar de la gastronomía y la vida familiar, con salida directa al jardín, donde encontramos una zona de barbacoa perfectamente integrada que invita a compartir agradables momentos al aire libre.

Desde el salón se accede a una magnífica terraza de aproximadamente 40 m², desde la que se pueden disfrutar impresionantes vistas abiertas al entorno natural, un lugar perfecto para relajarse y disfrutar del paisaje en cualquier momento del día. En esta misma planta también encontramos un aseo de cortesía y una práctica zona de lavandería.

A través de unas elegantes escaleras interiores accedemos a la zona de noche, compuesta por dos habitaciones dobles y una master suite con vestidor y baño privado con bañera. Además, esta planta dispone de otro baño completo con ducha. Todas las estancias destacan por su luminosidad y por las agradables vistas al entorno.

La vivienda cuenta también con una acogedora buhardilla de aproximadamente 45 m², equipada con chimenea y salida a una preciosa terraza de 25 m². Este espacio destaca por su amplitud y calidez, siendo ideal como sala de ocio, despacho o zona de relax.

Existe además la posibilidad de conectar todas las plantas, desde el aparcamiento, mediante un ascensor, lo que aporta un valor añadido en comodidad y accesibilidad.

El jardín ofrece múltiples espacios para disfrutar al aire libre, rodeado de naturaleza y tranquilidad. La propiedad tiene acceso por dos calles y dispone además de un apartamento independiente, con entrada propia desde la otra calle, compuesto por una habitación, sala de estar, cocina y baño, así como otra agradable zona de barbacoa.

Una propiedad única que combina amplitud, confort y un entorno natural privilegiado, perfecta tanto como residencia habitual como para quienes desean disfrutar de una vivienda con encanto cerca de Barcelona.
No dude en solicitarnos una cita para presentarle esta casa y si tuvieran que vender su actual propiedad nos encargamos de sincronizar las operaciones sin ningún problema.
¡No pierda la oportunidad de visitarla!
Torrelles de Llobregat pertenece a la comarca del Baix Llobregat. Con una población aproximada de 6.200 habitantes, se encuentra a tan solo 13 km de Barcelona, lo que supone unos 25 minutos de la Avenida Avinguda Diagonal, combinando perfectamente la tranquilidad de un entorno natural con la cercanía a la ciudad.

Rodeada de valles de pinares y antiguos viñedos reconvertidos en campos de cerezos, Torrelles de Llobregat conserva el encanto de las tradicionales villas mediterráneas que invitan a disfrutar de la naturaleza y de un paisaje privilegiado. El municipio es especialmente conocido por la calidad de sus cerezas, a las que dedica cada año la popular Festa de la Cirera de Torrelles de Llobregat.

Uno de sus lugares más emblemáticos es el parque cultural y turístico Catalunya en Miniatura, que alberga más de 147 reproducciones de edificios y monumentos representativos de Cataluña, incluyendo algunas de las obras más destacadas de Antoni Gaudí.

El municipio está rodeado de bosques y campos de cerezos, y pasear por su casco urbano permite descubrir el pasado agrícola que Torrelles ha sabido conservar con orgullo. Se trata de un pueblo formado principalmente por casas unifamiliares, donde predomina la tranquilidad, la calidad de vida y un ambiente familiar.

Además, Torrelles es un municipio muy activo a nivel deportivo y cultural. Cada año acoge una de las competiciones de descenso en bicicleta de montaña más destacadas de Cataluña.

En cuanto a servicios, dispone de escuela infantil, escuela primaria, instituto, biblioteca, centros deportivos, actividades de verano para niños y jóvenes, y una amplia oferta de entidades culturales y deportivas, como teatro, centro excursionista, club de patinaje, taekwondo, tenis, balonmano, BTT y fútbol americano.

El municipio también está muy bien comunicado, con seis líneas de autobús que conectan Torrelles con poblaciones cercanas y con el área metropolitana de Barcelona.

última modificació

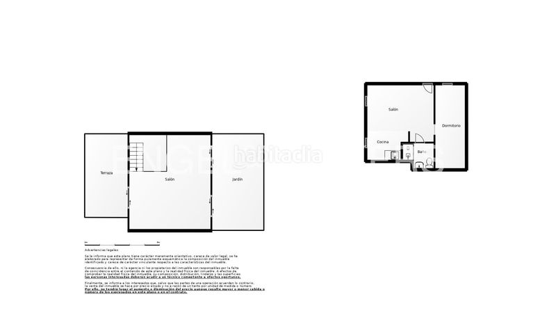
Distribució

  • 5 habitacions
  • Superfície 304 m2
  • Terreny 633 m2
  • 4 banys
  • Traster

Característiques generals

  • Calefacció
  • Plaça aparcament
  • Sense aire acondicionat
  • Any construcció 2009
  • Certificat energètic :
    Consumo:
    G
    999 kW h m2 / año
    Emisiones:
    G
    999 kg CO2 m2 / año
Anunci: 8166003810273

Ubicació

Navega pel mapa fent clic a sobre
490.000 € Preu de l´anunci
3.343 €/m2€/m2 comarca
1.612 €/m2€/m2 de l´anunci
52% més econòmic que la mitja*
Veure evolució €/m2 a Torrelles de Llobregat
T´avisem quan tinguem un anunci com aquest? Crea la teva alerta i nosaltres t´avisarem per correu electrònic quan hi hagin nous anuncis o siguin modificats
 

Contactar ENGEL & VOELKERS

Referència de l´anunci habitaclia/I-048RL3-W-048RL3:

Veuràs el telèfon després d´enviar el contacte a l´anunciant perquè et pugui atendre.
Veuràs el telèfon després de contactar
Enviant…