Visita virtual
Comentari guardat!
Només ho veuràs tú
Comment saved!
Añade tu valoración y/o un comentario para este anuncio. Sólo lo verás tú
1.345.000 € Avisa´m si baixa

Casa amb calefacció a El Cabanyal-El Canyamelar Valencia

  • 260 m2
  • 6 hab.
  • 3 banys
  • 5.173 €/m2

Joyal frente al mar! Casa con terraza y vistas a la Malvarrosa

¿Buscas una inversión inteligente que puedas disfrutar al mismo tiempo? Te presentamos esta espectacular propiedad de 260 m² a escasos metros de la arena en la playa de la Malvarrosa. Una oportunidad única que combina rentabilidad inmediata y calidad de vida.

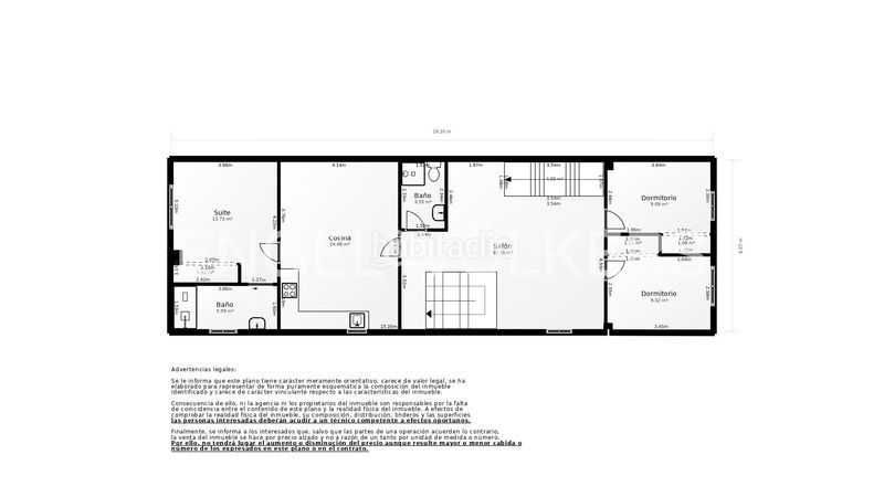
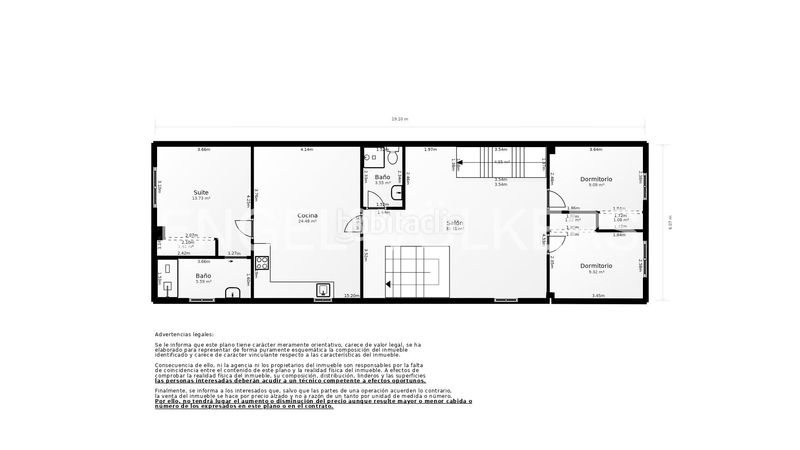
La propiedad se distribuye de forma estratégica:

Planta Baja: Totalmente optimizada con su estilo industrial para la explotación de alquiler turístico. Un negocio en marcha en la zona con mayor demanda de Valencia. Dispone de dos habitaciones y un baño

Primera Planta: Tu refugio personal. Una vivienda luminosa con 3 amplias habitaciones y 2 baños, diseñada para aprovechar cada rayo de sol mediterráneo.

La segunda planta dispone de una amplia habitación con cocina integrada y acceso a la zona exterior. Lo mejor de la casa es, sin duda, su terraza con vistas despejadas a la playa, el lugar perfecto para ver el amanecer o cenar con la brisa marina. Una casa con alma, muchísima luz natural y todas las posibilidades que ofrece vivir frente al Mediterráneo.
Vivir o invertir en la Playa de la Malvarrosa es elegir el equilibrio perfecto entre la calma del mar y el dinamismo de una gran ciudad. Esta propiedad se ubica en el epicentro del deseo mediterráneo, ofreciendo una experiencia que pocos lugares en Valencia pueden igualar:

Primera Línea de Sensaciones: A solo unos pasos de la arena fina, disfrutarás de la brisa marina y de los amaneceres más icónicos de la ciudad directamente desde tu terraza.

Epicentro Gastronómico y de Ocio: Rodeado de los restaurantes más emblemáticos de Valencia (como La Pepica o Casa Carmela), donde la cultura del arroz y el tardeo frente al mar son parte del día a día.

Conexión Total: A pesar de su ambiente relajado de costa, estarás perfectamente conectado con el centro de Valencia. El tranvía y el autobús te sitúan en la Calle Colón o la Ciudad de las Artes y las Ciencias en apenas 15-20 minutos.

Zona en Revalorización Constante: La Malvarrosa y el área de los Poblados Marítimos están viviendo un auge sin precedentes. Adquirir una propiedad aquí no es solo comprar una casa, es asegurar un activo que crece en valor cada año.

Servicios a un Paso: Colegios, supermercados, universidades (a 10 minutos a pie del Campus de Tarongers) y centros de salud, hospital, garantizando una vida cómoda tanto para residentes como para turistas.

El lujo de caminar descalzo hasta el agua y la inteligencia de invertir en el código postal más demandado de la costa valenciana.

última modificació

Distribució

  • 6 habitacions
  • Superfície 260 m2
  • 3 banys

Característiques generals

  • Calefacció
  • Sense plaça aparcament
  • Aire Acondicionat
  • Any construcció 1927
  • Certificat energètic :
    Consumo:
    D
    70 kW h m2 / año
    Emisiones:
    C
    12 kg CO2 m2 / año
Anunci: 5953003373890

Ubicació

El Cabanyal-El Canyamelar

Navega pel mapa fent clic a sobre
1.345.000 € Preu de l´anunci
3.358 €/m2€/m2 distrito
5.173 €/m2€/m2 de l´anunci
¿Cuánto te gustaría pagar?
Veure evolució €/m2 a Valencia (Poblats Marítims)
T´avisem quan tinguem un anunci com aquest? Crea la teva alerta i nosaltres t´avisarem per correu electrònic quan hi hagin nous anuncis o siguin modificats
 

Contactar Engel & Völkers València

Referència de l´anunci habitaclia/I-048VM0-W-048VM0:

Veuràs el telèfon després d´enviar el contacte a l´anunciant perquè et pugui atendre.
Veuràs el telèfon després de contactar
Enviant…