Comentari guardat!
Només ho veuràs tú
Comment saved!
Afegeix la teva valoració i/o un comentari per aquest anunci. Només el veuràs tu
1.495.000 € Avisa´m si baixa

Casa a Benissa pueblo Benissa

  • 193 m2
  • 3 hab.
  • 3 banys
  • 7.746 €/m2



Déjate seducir por este elegante y estiloso proyecto de chalet con piscina privada, situado en una moderna zona residencial a tiro de piedra de la idílica playa de La Fustera.

Este proyecto combina diseño contemporáneo, acabados de alta calidad y una excelente ubicación, lo que la convierte en una opción ideal para quienes buscan comodidad y lujo en la Costa Blanca. La villa ofrece una elegante distribución en dos plantas.

En la planta baja encontrarás un amplio y luminoso salón-comedor que, gracias a grandes ventanales correderos, da acceso directo a la terraza y la piscina. La moderna cocina abierta está totalmente integrada en el salón, lo que hace que cocinar y estar juntos sean perfectamente compatibles. Una puerta corredera de cristal conduce a un acogedor patio de 38 m², un lugar tranquilo para relajarse o disfrutar del aire libre. También hay un elegante aseo de invitados, que añade comodidad y funcionalidad a esta planta.

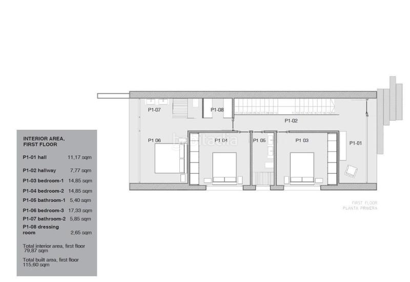
Arriba está el dormitorio principal con su propio cuarto de baño en suite, un lujoso refugio para desconectar por completo. Junto al dormitorio principal hay dos amplios dormitorios dobles que comparten un moderno cuarto de baño, ideal para invitados o familiares. Los grandes ventanales de todos los dormitorios proporcionan mucha luz natural y una conexión con la naturaleza circundante.

El proyecto de la villa se ha diseñado prestando atención a los detalles y utilizando materiales de alta calidad. Todas las habitaciones están equipadas con un eficaz sistema de aire acondicionado con control independiente de la temperatura, que garantiza un clima interior óptimo. Las ventanas de doble acristalamiento con rotura de puente térmico y los suelos de porcelana -disponibles en gris cemento o beige- contribuyen al carácter moderno y de alta calidad de la propiedad.

La ubicación de esta villa es perfecta. La parcela llana está en una moderna zona residencial con excelentes infraestructuras y parcelas más grandes que la media, lo que ofrece más privacidad y espacio. A sólo 1,9 km de la playa de arena La Fustera, disfrutarás de una combinación única de tranquilidad y proximidad a servicios, restaurantes y ocio. Esta villa es una oportunidad única de invertir en una moderna casa de ensueño perfectamente adaptada a la vida mediterránea. Con sus líneas limpias, su cuidado diseño y su hermosa ubicación, esta propiedad ofrece todo lo que necesitas para una vida lujosa y relajada en la Costa Blanca.

¡Ponte en contacto con nosotros hoy mismo para obtener más información o para descubrir las posibilidades de este proyecto especial!

última modificació

Distribució

  • 3 habitacions
  • Superfície 193 m2
  • Terreny 1350 m2
  • 3 banys

Característiques generals

  • Aire Acondicionat
  • Certificat energètic :
    Consumo:
    G
    999 kW h m2 / año
    Emisiones:
    G
    999 kg CO2 m2 / año
Anunci: 53299000000540

Ubicació

Benissa Pueblo

Navega pel mapa fent clic a sobre
1.495.000 € Preu de l´anunci
2.778 €/m2€/m2 población
7.746 €/m2€/m2 de l´anunci
Quant t´agradaria pagar?
Veure evolució €/m2 a Benissa
T´avisem quan tinguem un anunci com aquest? Crea la teva alerta i nosaltres t´avisarem per correu electrònic quan hi hagin nous anuncis o siguin modificats
 

Contactar JAVEA ESTATES

Referència de l´anunci habitaclia/60-4446-5:

Veuràs el telèfon després d´enviar el contacte a l´anunciant perquè et pugui atendre.
Veuràs el telèfon després de contactar
Enviant…