Comentari guardat!
Només ho veuràs tú
Comment saved!
Añade tu valoración y/o un comentario para este anuncio. Sólo lo verás tú

Casa amb piscina a Cala Figuera Santanyí

  • 156 m2
  • 3 hab.
  • 2 banys
  • 5.737 €/m2

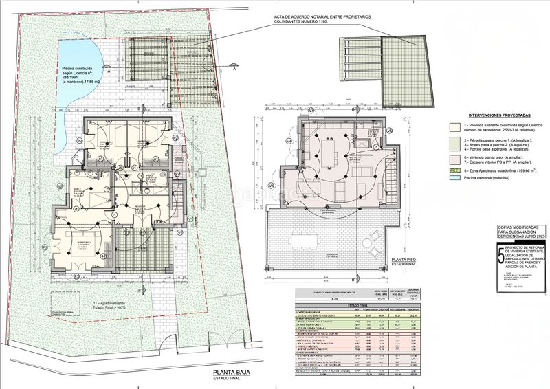
Chalet en primera línea de mar con licencia de ampliación a vivienda de lujo en el Parque Natural de Mondragó

Chalet en primera línea de mar con licencia de ampliación a vivienda de lujo en el Parque Natural de Mondragó

Esta excepcional propiedad en el sureste de Mallorca encarna el epítome del lujo mediterráneo y ofrece una rara oportunidad de combinar la vida en un lugar espectacular con potencial de inversión.

Justo en la costa virgen del Parque Natural de Mondragó, rodeada de naturaleza protegida y con inigualables vistas panorámicas al mar, le espera una casa lista para entrar a vivir con una pequeña reforma - y al mismo tiempo con licencia de obra en vigor para ampliarla y convertirla en un refugio de lujo de alta calidad en primera línea de mar.

La propiedad existente es encantadora, inundada de luz y tiene un toque típicamente mediterráneo. Con una ligera reforma, puede transformarse rápidamente en una elegante casa de vacaciones o en una prestigiosa segunda residencia, lista para disfrutar de la vida junto al mar de inmediato.

El proyecto de ampliación aprobado abre extraordinarias posibilidades: La adición de otra planta crea una vivienda moderna y espaciosa con tres elegantes dormitorios y dos sofisticados cuartos de baño.
En la planta superior se despliega un amplio salón-comedor diáfano con cocina de diseño: la pieza central de la casa, creada para una vida luminosa con vistas espectaculares. Desde aquí, una amplia terraza orientada al sur conduce directamente a la extensión del Mediterráneo y ofrece vistas al emblemático faro de Cala Figuera.

La zona exterior también se caracteriza por una relajación exclusiva: un porche cubierto, una elegante pérgola junto a la piscina y la piscina privada invitan a disfrutar de los días soleados y las noches templadas con la máxima comodidad. Aquí, privacidad, tranquilidad y naturaleza se funden para crear un estilo de vida único.

La ubicación no podría ser más privilegiada: A pocos minutos se encuentra el encantador pueblo de Santanyí, con su mercado semanal y sus boutiques, así como el pintoresco puerto de Cala Figuera, lugares que ofrecen un auténtico ambiente mallorquín y una exquisita selección de restaurantes.

Esta villa es un lugar donde la ligereza mediterránea se encuentra con la elegancia atemporal - inmediatamente habitable y con un potencial de desarrollo excepcional.
Una inversión única para visionarios que buscan algo especial: un trozo de paraíso con la libertad de completarlo según sus propias ideas.

Póngase en contacto con nosotros para obtener más información sobre esta exclusiva propiedad y las posibilidades de esta ubicación única.

última modificació

Distribució

  • 3 habitacions
  • Superfície 156 m2
  • Terreny 412 m2
  • 2 banys

Característiques generals

  • Piscina pròpia
  • Sense plaça aparcament
  • Sense aire acondicionat
  • Certificat energètic :
    Consumo:
    G
    999 kW h m2 / año
    Emisiones:
    G
    999 kg CO2 m2 / año
Anunci: 54913000000930

Ubicació

Cala Figuera

Navega pel mapa fent clic a sobre
895.000 € Preu de l´anunci
3.990 €/m2€/m2 población
5.737 €/m2€/m2 de l´anunci
Veure evolució €/m2 a Santanyí
T´avisem quan tinguem un anunci com aquest? Crea la teva alerta i nosaltres t´avisarem per correu electrònic quan hi hagin nous anuncis o siguin modificats
 

Contactar FALC Real Estate

Referència de l´anunci habitaclia/FALC-NiBa-77169 :

Veuràs el telèfon després d´enviar el contacte a l´anunciant perquè et pugui atendre.
Veuràs el telèfon després de contactar
Enviant…