Favorito y comentario
Només ho veuràs tú
260.000 €
Avisa´m si baixa
Casa a calle la central 4 a Cacicedo Camargo
Característiques principals
- 105 m2
- 2.476 €/m2
Informació detallada
NUEVA PROMOCION DE VIVIENDAS EN CACICEDO DE CAMARGO CON LICENCIA CONCEDIDA.
NUEVA PROMOCION DE VIVIENDAS EN CACICEDO DE CAMARGO.
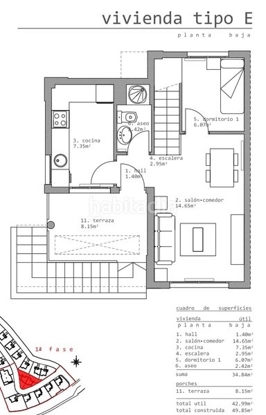
OBRA NUEVA DE 16 VIVIENDAS CON MUCHAS POSIBILIDADES. 4 PAREADAS Y 12 INDIVIDUALES. PARCELAS DE 160 A 368 METROS.
TODAS LAS CASAS CUENTAN CON UN MÍNIMO DE 125 METROS CONSTRUIDOS DISTRIBUIDOS EN GARAJE, BAJA Y PRIMERA.
SOLICITE INFORMACIÓN.
última modificació
Distribució
- Superfície 105 m2
- Terreny 210 m2
- Cuina Tipus Office: No
Característiques generals
- Plaça aparcament
- Sense aire acondicionat
- Any construcció 2024
- A prop de transport públic
Galeria
Ubicació
Cacicedo Calle la Central 4
Navega pel mapa fent clic a sobre
habitaclia.com no es responsabilitza dels errors que la informació mostrada en aquest mapa pugui contenir. L´usuari serà el responsable de l´ús que doni a aquesta informació.
Dades comparatives
260.000 € Preu de l´anunci
2.039 €/m2€/m2 población
2.476 €/m2€/m2 de l´anunci
*
Al preu de l´immoble influeixen molts factors que poden explicar les variacions respecte del preu mitjà: la ubicació dins de la població, la seva orientació, l´estat de conservació, les qualitats constructives, els equipaments, ...
T´avisem quan tinguem un anunci com aquest?
Crea la teva alerta i nosaltres t´avisarem per correu electrònic quan hi hagin nous anuncis o siguin modificats