Favorito y comentario
Casa a Pòrtol Marratxí
Característiques principals
- 222 m2
- 5 hab.
- 3 banys
- 5.856 €/m2
Informació detallada
Bienvenido a una oferta única en Marratxí, situada en un tranquilo y encantador barrio residencial que destaca por su proximidad a Palma de Mallorca y su excelente infraestructura. Esta exclusiva propiedad impresiona por su espaciosa distribución y sus cuidados jardines.
El chalet está situado en un amplio solar que ofrece la máxima privacidad y numerosas posibilidades de aprovechamiento. La superficie habitable de aprox. 250 metros cuadrados se distribuye en dos plantas y ofrece espacio suficiente para familias que valoran la comodidad y el estilo.
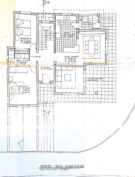
En la planta baja, encontrará un amplio salón-comedor que se inunda de luz gracias a los grandes ventanales y ofrece vistas despejadas al cuidado jardín. La moderna cocina americana está totalmente equipada y no deja nada que desear. En esta planta también hay dos dormitorios dobles y un elegante cuarto de baño.
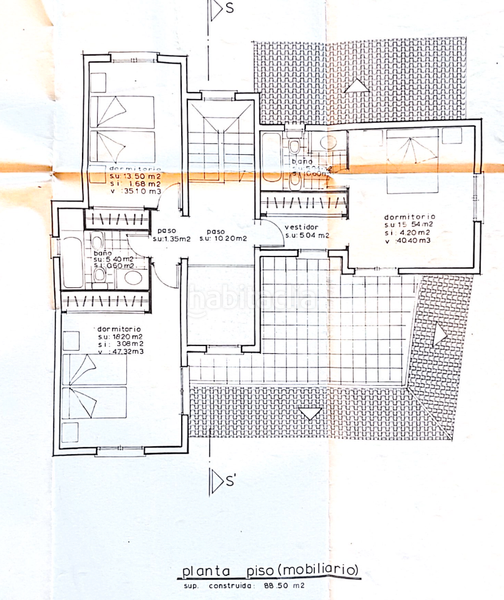
La planta superior consta de tres amplios dormitorios, todos con armarios empotrados y acceso a una terraza privada. Dos lujosos cuartos de baño, uno de ellos en suite, y un dormitorio completan este nivel.
La zona exterior es un verdadero punto culminante de esta propiedad. El extenso jardín con plantas mediterráneas, acogedoras terrazas y una refrescante piscina de agua salada ofrece el refugio ideal para relajarse bajo el sol mallorquín. Una zona de barbacoa adicional hace de esta propiedad el lugar perfecto para veladas sociables al aire libre.
Un garaje doble y plazas de aparcamiento adicionales están disponibles para sus vehículos. La propiedad está equipada con calefacción central y aire acondicionado, lo que garantiza un agradable clima de vida durante todo el año.
La ubicación en Marratxí ofrece una excelente calidad de vida. Hay escuelas, tiendas y restaurantes en las inmediaciones. La conexión con la cercana metrópoli de Palma de Mallorca y las hermosas playas de la isla es óptima.
Estaremos encantados de proporcionarle más información o concertar una visita. No se pierda esta oferta única y descubra su nuevo hogar en Marratxí.
última modificació
Distribució
- 5 habitacions
- Superfície 222 m2
- Terreny 420 m2
- 3 banys
Característiques generals
Galeria
Ubicació
Pòrtol
