Comentari guardat!
Només ho veuràs tú
Comment saved!
Afegeix la teva valoració i/o un comentari per aquest anunci. Només el veuràs tu

Casa amb aparcament piscina a Puente Tablas - Puente Nuevo - Cerro Molina Jaén

  • 160 m2
  • 3 hab.
  • 2 banys
  • 1.563 €/m2

Fantástico Chalet en Puente Nuevo

Fantástico Chalet en Puente Nuevo.

La vivienda se encuentra ubicada en el Paraje Vega de la Reina, formando parte de la urbanización Entre Ríos, rodeada de chalets y en el enclave de Puente Tablas encontrándose rodeado de vegetación, numerosas viviendas y el Rio Guadalbullón.

La vivienda se encuentra dentro de una parcela RÚSTICA de poco más de 1.000 m2 en donde podemos encontrar una gran zona de ocio con piscina, zona de barbacoa, dos grandes superficies techadas (con una superficie superior a 80 m2) destinadas a garaje y almacenamiento, árboles frutales como perales, naranjos, limonero, melocotonero, granado, etc. Cabe destacar que cuenta con tres tomas de agua diferentes, agua de Jaén, pozo y comunidad de regantes.

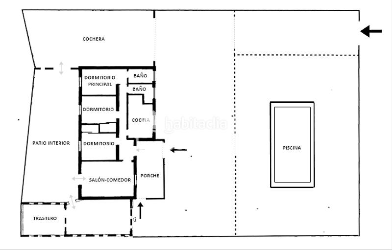
La casa consta de una sola planta de 160 m2, donde nos encontramos un gran Salón - Comedor dotado con chimenea y acceso al acogedor patio trasero, una amplia cocina totalmente amueblada y equipada con electrodomésticos y con muchas zonas de trabajo gracias a su isla central, un completo cuarto de baño común con cabina de ducha y tres dormitorios de muy buen tamaño donde dos de ellos cuentan con zona de vestidor y el principal es tipo suite puesto que cuenta con su completo cuarto de baño dotado con bañera y ventilación directa mediante ventana.

El estado de conservación de la vivienda es bueno y entre sus calidades destacan: placas solares instaladas para 5 KW, carpintería exterior de aluminio lacado en blanco con persianas incorporadas, rejas de seguridad y mosquiteras en todas las ventanas y cristalería climalit; solería de gres porcelánico en toda la vivienda, puertas de madera; aire acondicionado mediante splits independientes en el salón y dormitorios; calefacción eléctrica mediante caldera de gasoil, luces LED en toda la vivienda, puerta automática de acceso a la parcela y blindada de acceso a la casa, etc.

El chalet se entrega sin amueblar excepto cocina y baños. En los gastos de comunidad se incluye la comunidad de regantes y vecinos.

En definitiva, una buena oportunidad de adquirir una fantástica vivienda en una zona muy tranquila rodeado de naturaleza y a pocos minutos de la capital.

BUSCOMICASA.ES
Soluciones Inmobiliarias Integrales

Encuentra más en

última modificació

Distribució

  • 3 habitacions
  • Superfície 160 m2
  • Terreny 1050 m2
  • 2 banys

Característiques generals

  • Piscina pròpia
  • Plaça aparcament
  • Aire Acondicionat
  • Any construcció 1986
  • Certificat energètic :
    Consumo:
    E
    253 kW h m2 / año
    Emisiones:
    E
    44 kg CO2 m2 / año
Anunci: 30118000003034

Ubicació

Puente Tablas - Puente Nuevo - Cerro Molina De Las Cabezadas

Navega pel mapa fent clic a sobre
250.000 € Preu de l´anunci
1.575 €/m2€/m2 población
1.563 €/m2€/m2 de l´anunci
1% més econòmic que la mitja*
Veure evolució €/m2 a Jaén
T´avisem quan tinguem un anunci com aquest? Crea la teva alerta i nosaltres t´avisarem per correu electrònic quan hi hagin nous anuncis o siguin modificats
 

Contactar Buscomicasa.es - Jaen

Referència de l´anunci habitaclia/NN173:

Veuràs el telèfon després d´enviar el contacte a l´anunciant perquè et pugui atendre.
Veuràs el telèfon després de contactar
Enviant…