Comentari guardat!
Només ho veuràs tú
Comment saved!
Añade tu valoración y/o un comentario para este anuncio. Sólo lo verás tú
445.000 € Avisa´m si baixa
ha baixat 30.000 €

Casa adossada amb calefacció aparcament piscina a Mijas

  • 405 m2
  • 4 hab.
  • 4 banys
  • 1.099 €/m2

Adosado en venta en Riviera Del Sol, 4 dormitorios.

SITUACIÓN ESPECIAL:
Esta vivienda se encuentra en período de subasta,
el precio ofertado es el precio de salida.
El precio de salida es el que se indica aquí,
las personas interesadas harán su puja u oferta
y se escogerá la puja más alta para la venta del
inmueble.
LA FECHA FIN DE PUJA ES HASTA EL 22/05/2026 A LAS 18:00h


Hábitat Mediterránea le ofrece este estupendo chalet adosado en venta en el municipio costero de Mijas, provincia de Málaga, ubicado en el conjunto residencial Refugio de Riviera, que cuenta con piscina comunitaria y zonas verdes ajardinadas bien cuidadas que harán de sus estancias un lugar saludable y le llenará de vitalidad y buen humor, a 17 km del centro del municipio malagueño, le proporcionará el acceso a todos los servicios e instalaciones que pudiera necesitar (comercios, supermercados, centros deportivos, educativos y de salud, transporte público, servicios de hostelería y restauración, oficinas oficiales o lugares de ocio, como la playa de Riviera a 500 m, entre otros), y a su vez le ayudará a alejarse del bullicioso ajetreo de la vida en la ciudad.

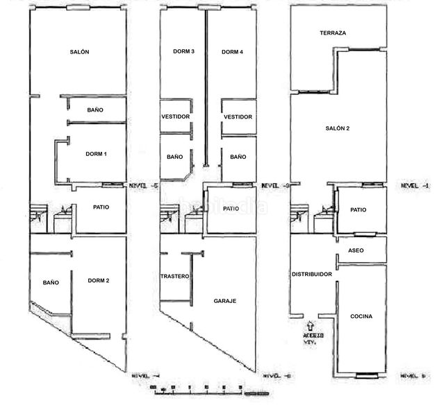
Esta maravillosa vivienda está edificada sobre una superficie de parcela de 313 m², desarrollada en cuatro plantas, con una superficie construida de 405`52 m², distribuidos entre: planta alta en dos niveles, planta intermedia en dos niveles, planta baja en dos niveles y planta sótano, además de varias dependencias, servicios, escalera de comunicación vertical, garaje y terrazas, destinándose la superficie de parcela que no está ocupada por edificación a jardín privado.

En la planta alta o de acceso, se encuentra: el vestíbulo de entrada, aseo, cocina amueblada y equipada; solárium a medio nivel superior con acceso desde el tramo de escalera metálica; Nivel intermedio con salón-comedor equipado con chimenea, y media planta más abajo: trastero, lavadero-tendedero y garaje privado con acceso desde calle interior común de los conjuntos IV y V.

En el nivel inferior: 2 dormitorios en suite (ambos con vestidor y cuarto de baño completo incorporado); media planta más abajo: un dormitorio con vestidor y baño completo incorporado y sótano.

En cuestión de movilidad, cuenta con buenas conexiones mediante carretera (con fácil acceso a la autopista AP-7 y autovía del mediterráneo A-7) y transporte público (parada de bus cercana línea M-119, estación de tren Fuengirola a 18 minutos, estación de medios de transporte de Plaza Mayor a 28 minutos), permitiéndole el rápido acceso a las localidades colindantes como Marbella o Fuengirola, y a sus maravillosas posibilidades de ocio.

Es una ocasión única de adquirir una vivienda en la Costa del Sol con privacidad, bien comunicada y a un precio inigualable.

Esta vivienda cuenta con estupendas calidades como: suelos de mármol o ventanas con tecnología climalit para aislar y preservar del frío o calor.

Si desea vivir en una urbanización tranquila y residencial con todos los servicios a su alcance, ésta es su gran oportunidad.

¿desea saber más?

AVISO: la información que contiene este anuncio, puede estar sujeta a errores u omisiones. Las propiedades pueden estar sujetas a cambio de precio, venta o retirada del mercado. Para más información no dude en contactar con nosotros o visitando nuestra página web

CONTÁCTENOS, ESTAREMOS ENCANTADOS DE ATENDERLE.
Nuestros honorarios de agencia ya están incluidos en el precio de venta por lo que no tendrá que abonar ningún tipo de gastos por gestión o asesoramiento inmobiliario y que en cumplimiento del Decreto de la Junta de Andalucía 218/2005 del 11 de Octubre, se informa que los gastos de notario, registro, ITP y otros gastos inherentes a la compraventa no están incluidos en el precio.

última modificació

Distribució

  • 4 habitacions
  • Superfície 405 m2
  • Terreny 313 m2
  • 4 banys
  • Traster

Característiques generals

  • Calefacció
  • Plaça aparcament
  • Any construcció 2006
  • A prop de transport públic
  • Certificat energètic :
    Consumo:
    D
    124 kW h m2 / año
    Emisiones:
    D
    25 kg CO2 m2 / año

Equipament comunitari

  • Piscina Comunitària
Anunci: 33091000013828

Ubicació

Riviera del Sol

Navega pel mapa fent clic a sobre
445.000 € Preu de l´anunci
3.974 €/m2€/m2 distrito
1.099 €/m2€/m2 de l´anunci
72% més econòmic que la mitja*
Veure evolució €/m2 a Mijas (Riviera del Sol)
T´avisem quan tinguem un anunci com aquest? Crea la teva alerta i nosaltres t´avisarem per correu electrònic quan hi hagin nous anuncis o siguin modificats
 

Contactar HABITAT MEDITERRANEA

Referència de l´anunci habitaclia/MP-MIJ-DMNT03:

Veuràs el telèfon després d´enviar el contacte a l´anunciant perquè et pugui atendre.
Veuràs el telèfon després de contactar
Enviant…