Comentari guardat!
Només ho veuràs tú
Comment saved!
Añade tu valoración y/o un comentario para este anuncio. Sólo lo verás tú
1.250.000 € Avisa´m si baixa

Casa adossada amb calefacció aparcament piscina a Sitges

  • 446 m2
  • 6 hab.
  • 4 banys
  • 2.803 €/m2

Casa con vistas al mar, 6 dormitorios, piscina

Casa con vistas al mar y a la montaña en la costa del Garraf II, Les Botigues de Sitges, a solo 30 minutos de Barcelona.

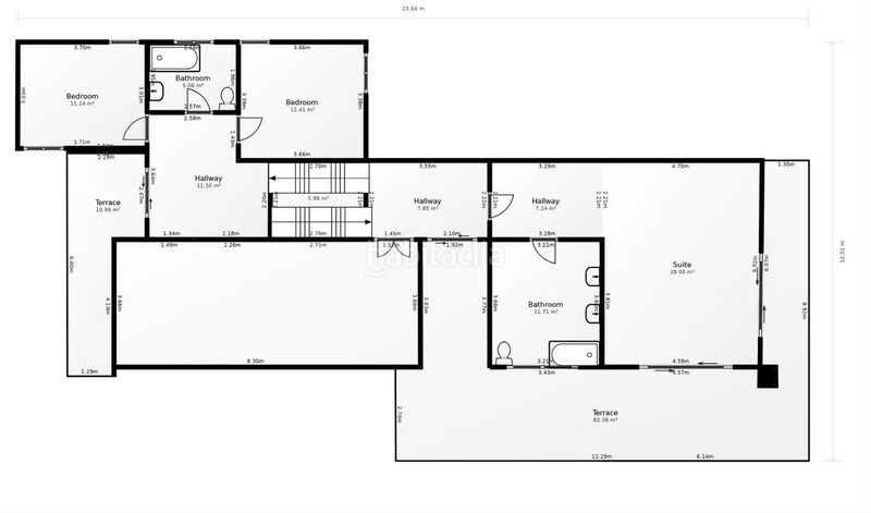
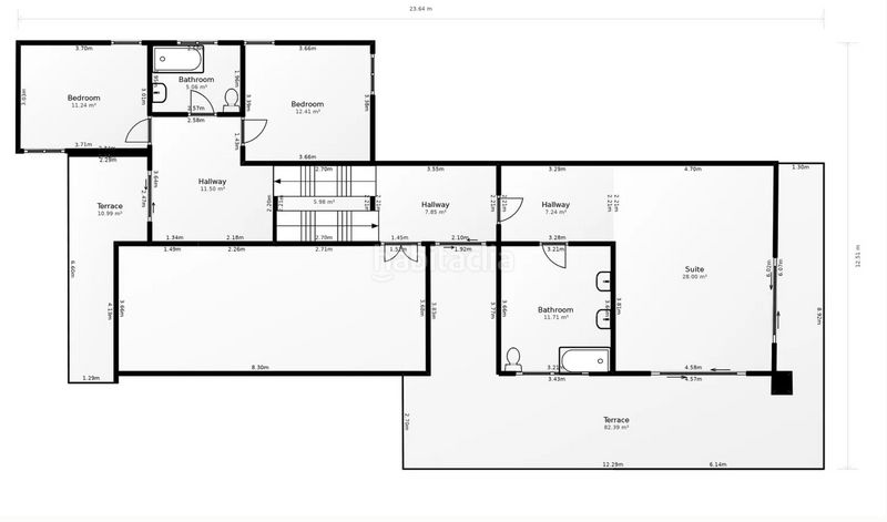
La vivienda se distribuye en 4 plantas y cuenta con orientación sur-suroeste, lo que permite disfrutar de abundante luz natural durante todo el día y de vistas abiertas al mar y al entorno natural.

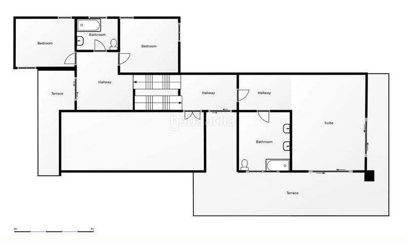
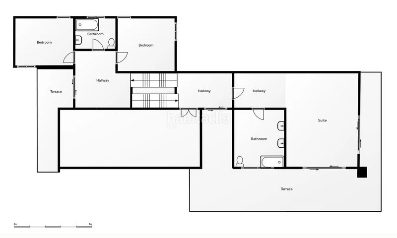
Dispone de 6 dormitorios, 4 baños y numerosas terrazas y balcones desde donde se pueden contemplar el paisaje y los atardeceres.

En el acceso a la casa hay un espacio independiente tipo apartamento, con terraza propia, entrada privada y baño completo. Es ideal para invitados, un hijo mayor, personal o para utilizar como estudio o espacio de trabajo.


El exterior ofrece jardín y piscina privada, creando un entorno agradable para disfrutar al aire libre.

La vivienda cuenta con ascensor, sistema de alarma y un alto nivel de confort gracias a la calefacción por suelo radiante en toda la propiedad. Dispone de aire acondicionado en toda la casa, con sistema frío-calor en las dos plantas superiores. Además, cuenta con purificador de agua y paneles solares, lo que garantiza una excelente eficiencia energética. Su instalación de energía solar de 10 kW le permite ser prácticamente autónoma desde el punto de vista energético.

La propiedad se encuentra en una calle muy tranquila al final del camino, junto a senderos de montaña y naturaleza. Incluye garaje con espacio para dos coches y una moto.

Una casa pensada para quienes buscan tranquilidad, vistas abiertas y contacto con la naturaleza, sin alejarse de Barcelona.
La vivienda se encuentra en una zona tranquila de la costa del Garraf, Les Botigues de Sitges, a solo 30 minutos de Barcelona y cerca de Sitges y Castelldefels. Es un entorno residencial rodeado de naturaleza, muy apreciado por quienes buscan privacidad, vistas abiertas y calidad de vida.

La zona ofrece fácil acceso a senderos de montaña y espacios naturales, ideales para actividades al aire libre como caminar, correr o escalar. Al mismo tiempo, se encuentra a pocos minutos en coche de playas, servicios, comercios, colegios y conexiones con Barcelona.

Un entorno que combina tranquilidad, naturaleza y proximidad a la ciudad.

última modificació

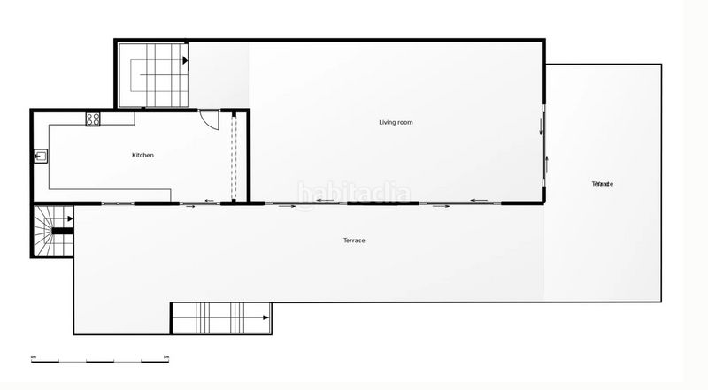
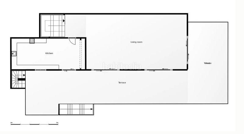
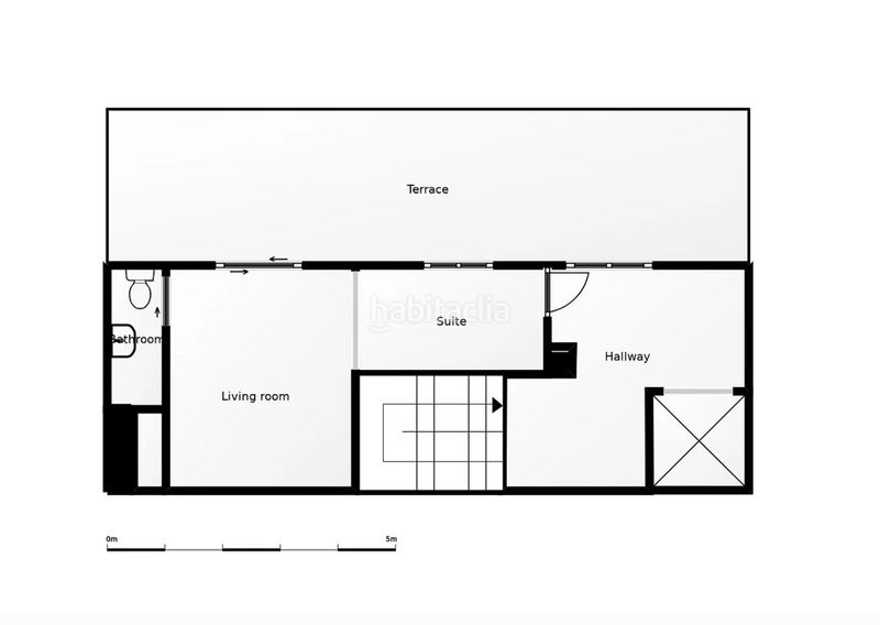
Distribució

  • 6 habitacions
  • Superfície 446 m2
  • Terreny 817 m2
  • 4 banys
  • Traster

Característiques generals

  • Calefacció
  • Piscina pròpia
  • Plaça aparcament
  • Aire Acondicionat
  • Any construcció 2004
  • Certificat energètic :
    Consumo:
    G
    999 kW h m2 / año
    Emisiones:
    G
    999 kg CO2 m2 / año
Anunci: 8166003810869

Ubicació

Les Botigues de Sitges

Navega pel mapa fent clic a sobre
1.250.000 € Preu de l´anunci
6.112 €/m2€/m2 población
2.803 €/m2€/m2 de l´anunci
54% més econòmic que la mitja*
Veure evolució €/m2 a Sitges
T´avisem quan tinguem un anunci com aquest? Crea la teva alerta i nosaltres t´avisarem per correu electrònic quan hi hagin nous anuncis o siguin modificats
 

Contactar ENGEL & VOELKERS

Referència de l´anunci habitaclia/I-048RS9-W-048RS9 :

Veuràs el telèfon després d´enviar el contacte a l´anunciant perquè et pugui atendre.
Veuràs el telèfon després de contactar
Enviant…