Comentari guardat!
Només ho veuràs tú
Comment saved!
Afegeix la teva valoració i/o un comentari per aquest anunci. Només el veuràs tu
1.300.000 € Avisa´m si baixa

Casa adossada amb aparcament piscina a Centre Mataró

Calle ARGENTONA D'

  • 251 m2
  • 5 hab.
  • 5 banys
  • 5.179 €/m2

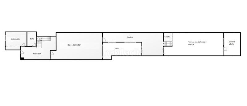
Os presentamos esta magnífica casa situada en la calle Argentona, en pleno corazón de Mataró, con una distribución funcional y amplios espacios, tanto interiores como exteriores, ideal para familias que busquen confort, privacidad y una ubicación inmejorable.

La vivienda se distribuye en tres plantas. En la planta baja, accedemos por un amplio recibidor que da paso a una habitación y un baño completo. A continuación, encontramos la zona de día, con un salón-comedor muy luminoso con salida directa a una terraza, y una cocina alargada y muy funcional, que rodea parte de la terraza y cuenta con espacio para mesa y sillas. La cocina comunica con una segunda terraza ajardinada, que dispone de zona de barbacoa, piscina, lavadero y un estudio independiente con baño, ideal como espacio polivalente o para invitados.

En la primera planta, encontramos dos amplios dormitorios tipo suite, con baños completos (uno con bañera y otro con ducha) y salida a balcones o terrazas, que aportan mucha luz natural a las estancias.

La planta superior, o buhardilla, alberga dos habitaciones más y un baño, una de ellas con salida a una gran terraza con galería, donde se encuentra la maquinaria de climatización.

La vivienda está equipada con climatización por conductos (frío/calor), una excelente entrada de luz natural en todos los espacios y cuenta con una plaza de aparcamiento, un valor añadido en esta zona.

Una oportunidad única para disfrutar de una casa amplia, funcional y con todas las comodidades, en el centro de la ciudad.

Para más información, póngase en contacto con dupleX inmobiliaria.

DupleX inmobiliaria:
Somos un equipo dedicado a la venta y asesoramiento de inmuebles, donde añadimos el servicio de interiorismo para crear un nuevo concepto de inmobiliaria, combinando nuestra experiencia de más de 35 años con los servicios más innovadores.

última modificació

Distribució

  • 5 habitacions
  • Superfície 251 m2
  • 5 banys

Característiques generals

  • Piscina pròpia
  • Plaça aparcament
  • Any construcció 1910
  • A prop de transport públic
  • Certificat energètic :
    Consumo:
    D
    113 kW h m2 / año
    Emisiones:
    C
    19 kg CO2 m2 / año
Anunci: 973004403473

Ubicació

Centre Calle ARGENTONA D'

Navega pel mapa fent clic a sobre
1.300.000 € Preu de l´anunci
3.131 €/m2€/m2 distrito
5.179 €/m2€/m2 de l´anunci
Veure evolució €/m2 a Mataró (Centre)
T´avisem quan tinguem un anunci com aquest? Crea la teva alerta i nosaltres t´avisarem per correu electrònic quan hi hagin nous anuncis o siguin modificats
 

Contactar dupleX immobiliària & interiorisme

Referència de l´anunci habitaclia/C-054-25:

Veuràs el telèfon després d´enviar el contacte a l´anunciant perquè et pugui atendre.
Veuràs el telèfon després de contactar
Enviant…