Comentari guardat!
Només ho veuràs tú
Comment saved!
Añade tu valoración y/o un comentario para este anuncio. Sólo lo verás tú

Casa adossada a calle general ferraz 18 a Benasque

Calle General Ferraz 18

  • 180 m2
  • 4 hab.
  • 4 banys
  • 3.572 €/m2

Te presentamos el nuevo “Residencial Casa Grande”, en Anciles, la más señorial y pintoresca localidad del Valle de Benasque.

Un entorno único, rodeado de naturaleza: bosques, cascadas, ríos, pozas… caminos donde perderte buscando setas, disfrutando del senderismo, o de una salida en bicicleta.

Con la estación de esquí de Cerler, muy pronto unida con el nuevo Telecabina, y la de Llanos del Hospital a tan sólo 14 kilómetros de distancia, Anciles está a tan sólo 2 kilómetros de Benasque, con todos sus servicios y comodidades, pero en un entorno mucho más señorial, tranquilo y silencioso.

Siete impresionantes adosados en una urbanización con piscina, con espectaculares vistas y en una ubicación inmejorable, junto a los jardines de la palaciega Casa Sort.

Viviendas con superficies construidas desde 160 m2, jardines privativos de entre 55 y 75 m2 y aparcamiento.

La fecha de inicio de obras será Junio/Julio de 2026, con entrega prevista para el Verano de 2027.

Los precios de las viviendas varían en función del tamaño y ubicación, desde los 578.000€.

Si buscas una promoción única, con un diseño realmente exclusivo y con las mejores calidades constructivas, sin duda “Residencial Casa Grande” es tu elección.

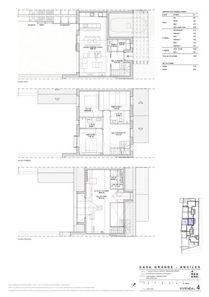
En planta baja: salón/cocina/ comedor con salida a jardín de 70 m2, sala 'apresky' y aseo.

En planta primera: 3 habitaciones, sala polivalente y 2 baños completos.

En planta segunda (buhardilla): 1 habitación, espacio diáfano (sala polivalente) y 1 baño completo.

Estructura de Entramado ligero de madera. Calefacción por aerotermia. Piscina junto a zona ajardinada comunitaria.

Toda la Promoción dispondrá de gran cantidad de detalles a la altura de una promoción de lujo, a nivel de acabados, materiales, aislamientos e instalaciones. Se adjunta Memoria de calidades.

¡Ponte en contacto con nosotros para conocer todos los detalles del proyecto!

última modificació

Distribució

  • 4 habitacions
  • Superfície 180 m2
  • Terreny 140 m2
  • 4 banys
  • Cuina Tipus Office

Característiques generals

  • Calefacció
  • Plaça aparcament
  • Aire Acondicionat
  • Any construcció 2026
  • Certificat energètic :
    Consumo:
    G
    999 kW h m2 / año
    Emisiones:
    G
    999 kg CO2 m2 / año

Equipament comunitari

  • Piscina Comunitària
Anunci: 37900000000084

Ubicació

Calle General Ferraz 18

Navega pel mapa fent clic a sobre
643.000 € Preu de l´anunci
2.680 €/m2€/m2 comarca
3.572 €/m2€/m2 de l´anunci
Veure evolució €/m2 a Benasque
T´avisem quan tinguem un anunci com aquest? Crea la teva alerta i nosaltres t´avisarem per correu electrònic quan hi hagin nous anuncis o siguin modificats
 

Contactar TU CASA CON ROSA

Referència de l´anunci habitaclia/Anciles4:

Veuràs el telèfon després d´enviar el contacte a l´anunciant perquè et pugui atendre.
Veuràs el telèfon després de contactar
Enviant…