Comentari guardat!
Només ho veuràs tú
Comment saved!
Afegeix la teva valoració i/o un comentari per aquest anunci. Només el veuràs tu

Casa aparellada a calle la central 4 a Cacicedo Camargo

  • 105 m2
  • 2.476 €/m2

NUEVA PROMOCION DE VIVIENDAS EN CACICEDO DE CAMARGO CON LICENCIA CONCEDIDA.

NUEVA PROMOCION DE VIVIENDAS EN CACICEDO DE CAMARGO.
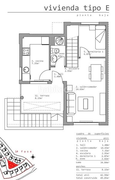
OBRA NUEVA DE 16 VIVIENDAS CON MUCHAS POSIBILIDADES. 4 PAREADAS Y 12 INDIVIDUALES. PARCELAS DE 160 A 368 METROS.
TODAS LAS CASAS CUENTAN CON UN MÍNIMO DE 125 METROS CONSTRUIDOS DISTRIBUIDOS EN GARAJE, BAJA Y PRIMERA.
SOLICITE INFORMACIÓN.

Demanar més dades a l´anunciant

última modificació

Distribució

  • Superfície 105 m2
  • Terreny 228 m2
  • Cuina Tipus Office: No

Característiques generals

  • Calefacció
  • Plaça aparcament
  • Sense aire acondicionat
  • Any construcció 2025
  • A prop de transport públic
  • Certificat energètic :
    Consumo:
    G
    999 kW h m2 / año
    Emisiones:
    G
    999 kg CO2 m2 / año
Anunci: 34646000000435

Ubicació

Cacicedo Calle la Central 4

Navega pel mapa fent clic a sobre
260.000 € Preu de l´anunci
2.039 €/m2€/m2 población
2.476 €/m2€/m2 de l´anunci
Veure evolució €/m2 a Camargo
T´avisem quan tinguem un anunci com aquest? Crea la teva alerta i nosaltres t´avisarem per correu electrònic quan hi hagin nous anuncis o siguin modificats
 

Contactar RADIX

Referència de l´anunci habitaclia/540 9 19:

Veuràs el telèfon després d´enviar el contacte a l´anunciant perquè et pugui atendre.
Veuràs el telèfon després de contactar
Enviant…