Comentari guardat!
Només ho veuràs tú
Comment saved!
Añade tu valoración y/o un comentario para este anuncio. Sólo lo verás tú

Dúplex a calle gardenia 19 a Albolote

Calle Gardenia 19

  • 124 m2
  • 3 hab.
  • 3 banys
  • 2.137 €/m2

SE VENDE MAGNIFICO PISO ATICO DUPLEX EN EL CHAPARRAL_ALBOLOTE_GRANADA

SE VENDE MAGNIFICO PISO ATICO DUPLEX EN EL CHAPARRAL_ALBOLOTE_GRANADA

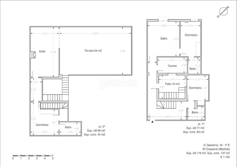
Magnífico piso ÁTICO dúplex situado en El Chaparral, ideal para disfrutar de amplitud, comodidad, eficiencia energética y unas vistas privilegiadas.

En la planta baja encontramos un dormitorio principal con baño en suite y plato de ducha, un amplio salón con estufa de pellet, cocina independiente, otro dormitorio adicional y un segundo baño completo. Además, en el pasillo también hay otra estufa de pellet, lo que aporta un ambiente cálido y acogedor a toda la vivienda.

El acceso a la planta superior se puede realizar tanto desde la cocina como a través de una preciosa escalera de madera situada junto al hall de entrada. En la planta alta dispone de un amplio dormitorio con baño en suite, un magnífico salón con chimenea y una zona de cocina integrada, perfecta para disfrutar de reuniones con familia y amigos. Desde esta planta se accede a una fantástica terraza (más de 90 m2) con barbacoa y horno de leña, desde donde se pueden contemplar impresionantes vistas a Sierra Nevada y al Torreón.

La vivienda cuenta además con 12 placas solares de 450 W cada una, lo que permite reducir considerablemente el consumo energético y el coste de la electricidad, aportando un importante ahorro y mayor eficiencia energética.

La climatización se realiza mediante aire acondicionado por conductos, garantizando una temperatura confortable en toda la vivienda durante todo el año.

La vivienda dispone de ventanas de aluminio con rotura de puente térmico, sistema oscilobatiente, mosquiteras y vidrios con control solar, lo que mejora el aislamiento térmico y acústico, aumentando el confort interior.

Se oferta además con plaza de garaje y trastero, lo que aporta una gran comodidad y espacio adicional de almacenamiento.

La ubicación es inmejorable: El Chaparral es una zona muy bien comunicada por autovía, con fácil acceso a Granada y a todos los servicios necesarios como restaurantes, colegios, comercios y transporte público, todo ello a tan solo 10 minutos de Granada.

Una vivienda única, perfecta para quienes buscan espacio, comodidad, eficiencia y un entorno privilegiado.

NOTA: El PVP indicado no incluye ni impuestos ni gastos de escritura, tampoco están incluidos honorarios profesionales de la agencia. Las superficies indicadas tienen carácter descriptivo y son aproximadas. Esta vivienda se vende sin muebles.REF: NOELIADAV26007

última modificació

Distribució

  • 3 habitacions
  • Superfície 124 m2
  • 3 banys
  • Cuina Tipus Office: No

Característiques generals

  • Calefacció
  • Xemeneia
  • Plaça aparcament
  • Aire Acondicionat
  • Any construcció 2006
  • Certificat energètic :
    Consumo:
    G
    999 kW h m2 / año
    Emisiones:
    G
    999 kg CO2 m2 / año

Equipament comunitari

  • Ascensor
Anunci: 38447000004623

Ubicació

Calle Gardenia 19

Navega pel mapa fent clic a sobre
265.000 € Preu de l´anunci
2.065 €/m2€/m2 población
2.137 €/m2€/m2 de l´anunci
Veure evolució €/m2 a Albolote
T´avisem quan tinguem un anunci com aquest? Crea la teva alerta i nosaltres t´avisarem per correu electrònic quan hi hagin nous anuncis o siguin modificats
 

Contactar NOELIADAHOMES REAL ESTATE by KWKINVER

Referència de l´anunci habitaclia/NOELIADAV26007:

Veuràs el telèfon després d´enviar el contacte a l´anunciant perquè et pugui atendre.
Veuràs el telèfon després de contactar
Enviant…