Comentari guardat!
Només ho veuràs tú
Comment saved!
Afegeix la teva valoració i/o un comentari per aquest anunci. Només el veuràs tu
3.000.000 € Avisa´m si baixa

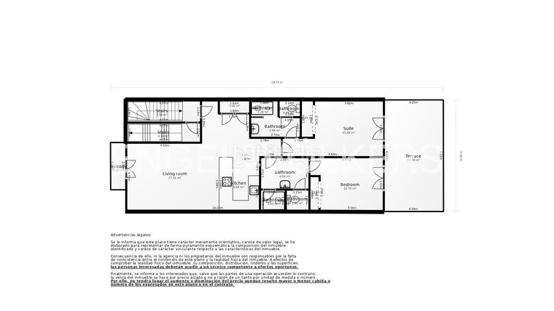
Dúplex amb calefacció aparcament a Centre Sitges

  • 184 m2
  • 3 hab.
  • 3 banys
  • 16.304 €/m2

Atico de ensueño con vistas deslumbrantes del mediterraneo.

En la codiciada primera línea marítima de Sitges, este lujoso atico, ideal para compradores que buscan privacidad, sofisticación y un estilo de vida mediterráneo sin renunciar a la vida social y cultural de un destino de élite. En Sitges, este exclusivo apartamento de 184 m² ofrece 3 dormitorios y 3 baños en una finca, modernizada en 2025, con garaje privado a pocos pasos y una privilegiada orientación sur.

La vivienda transmite amplitud y serenidad, con una distribución elegante que conecta los espacios de día y noche y realza este paraiso de luminosidad. La terraza y el patio invitan a vivir el exterior con total privacidad, en un ambiente sofisticado y relajante.

Destacan las inmejorables panoramicas, los suelos de mármol, la chimenea, el completo ático, con los grandes ventanales, ideales para crear un refugio personal o un espacio de ocio.
Las dos cocinas , y la claridad solar, aportan funcionalidad de alto nivel, mientras las vistas abiertas al mar y en primera línea de playa elevan cada estancia.

Una propiedad impecable para quienes buscan lujo discreto en primera linea, donde diseño, confort y panorámicas se unen en una experiencia residencial única!

Un gran privilegio, la proximidad inmediata al Mediterráneo y la sensación de “5 estrellas resort” permanente, con atardeceres y brisa marina como parte del día a día. Una dirección que combina prestigio, comodidad y el encanto inconfundible de Sitges.
Sitges, aquí conviven residencias exclusivas, paseos arbolados y una atmósfera cosmopolita, perfecta tanto para escapadas de fin de semana como para vivir todo el año.

La infraestructura es excelente: el centro de Sitges se alcanza en unos 3 min a pie, con boutiques, gastronomía de autor y servicios diarios. La estación de tren queda a aprox. 15 min a pie o 7 min en coche, con conexión directa a Barcelona; el Aeropuerto de Barcelona-El Prat se sitúa a unos 30 min en coche.

A pocos pasos, disfrute de playas emblemáticas, clubes náuticos, deportes acuáticos y rutas junto al mar; además, campos de golf y bodegas del Penedès están a corta distancia en coche.

última modificació

Distribució

  • 3 habitacions
  • Superfície 184 m2
  • 3 banys

Característiques generals

  • Calefacció
  • Plaça aparcament
  • Aire Acondicionat
  • Any construcció 2011
  • Certificat energètic :
    Consumo:
    G
    999 kW h m2 / año
    Emisiones:
    G
    999 kg CO2 m2 / año

Equipament comunitari

  • Sense ascensor
Anunci: 8166003810374

Ubicació

Centre

Navega pel mapa fent clic a sobre
3.000.000 € Preu de l´anunci
6.094 €/m2€/m2 población
16.304 €/m2€/m2 de l´anunci
Veure evolució €/m2 a Sitges
T´avisem quan tinguem un anunci com aquest? Crea la teva alerta i nosaltres t´avisarem per correu electrònic quan hi hagin nous anuncis o siguin modificats
 

Contactar ENGEL & VOELKERS

Referència de l´anunci habitaclia/I-047XU8-W-047XU8:

Veuràs el telèfon després d´enviar el contacte a l´anunciant perquè et pugui atendre.
Veuràs el telèfon després de contactar
Enviant…