Comentari guardat!
Només ho veuràs tú
Comment saved!
Afegeix la teva valoració i/o un comentari per aquest anunci. Només el veuràs tu

Local comercial a Carmel Barcelona

  • 88 m2
  • 1 bany
  • 591 €/m2

¿Buscas comprar un local comercial en Barcelona?

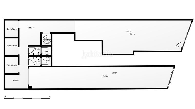
Excelente oportunidad de adquirir en propiedad este local comercial situado en la planta baja de un edificio residencial con acceso independiente desde la calle, en el barrio de La Teixonera, localidad de Barcelona. Cuenta con una superficie de 88m² bien distribuidos en una planta baja rectangular prácticamente diáfana, 1 cuarto de baño y 1 altillo. El local está equipado con tomas de agua y electricidad. Además, dispone de dos puertas de acceso, una a pie de calle y otra lateral.

Barcelona tiene un entorno diverso y atractivo que combina el encanto histórico con la modernidad. La ciudad cuenta con una variedad de barrios, cada uno con su propio carácter y ambiente. La ciudad también cuenta con playas a lo largo de la costa del Mar Mediterráneo, como la popular playa de la Barceloneta, que ofrecen oportunidades para relajarse y disfrutar del clima mediterráneo. Barcelona cuenta con excelentes conexiones de transporte. El Aeropuerto Internacional de Barcelona-El Prat: Es uno de los principales aeropuertos de Europa. Además de contar una extensa red de transporte público que incluye metro, autobuses y tranvías.

¿Te gustaría recibir más información sobre este local? No dudes en ponerte en contacto con nosotros. Visita sin compromiso, sin comisiones de intermediación. Más información rellenando el formulario de contacto o por teléfono. Estaremos encantados de atenderte. Hipoges es una plataforma inmobiliaria donde podrás acceder a miles de activos inmobiliarios de diferentes tipos como viviendas, locales comerciales, terrenos, nueva obra... tanto a nivel particular como para inversores. Hipoges cuenta con una amplia cartera de activos inmuebles tanto en España como en Portugal y Grecia.

¿Necesitas financiación? Te ofrecemos la posibilidad de financiaciones de hasta el 100% para la compra de este inmueble. Entra en Finanwin.com, haz tu simulación y obtén la mejor oferta para tu Hipoteca de la manera más ágil y sencilla.

última modificació

Distribució

  • Superfície 88 m2

Característiques generals

  • Certificat energètic :
    Consumo:
    G
    999 kW h m2 / año
    Emisiones:
    G
    999 kg CO2 m2 / año
Anunci: 52789000006436

Ubicació

Carmel Llobregos

Navega pel mapa fent clic a sobre
T´avisem quan tinguem un anunci com aquest? Crea la teva alerta i nosaltres t´avisarem per correu electrònic quan hi hagin nous anuncis o siguin modificats
 

Contactar Hipoges

Referència de l´anunci habitaclia/EXRE-01029:

Veuràs el telèfon després d´enviar el contacte a l´anunciant perquè et pugui atendre.
Veuràs el telèfon després de contactar
Enviant…