Visita virtual
Comentari guardat!
Només ho veuràs tú
Comment saved!
Añade tu valoración y/o un comentario para este anuncio. Sólo lo verás tú

Local comercial a Coín

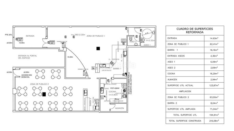
  • 216 m2
  • 2 banys
  • 322 €/m2

Encantador restaurante en traspaso en Coín – Totalmente equipado y listo para operar

Ubicado en la animada localidad de Coín, este restaurante con carácter y completamente equipado está ahora disponible en traspaso. El local destaca por su ambiente cálido y auténtico, con techos de vigas de madera, iluminación cuidada y una acogedora zona de bar.

El restaurante ofrece un amplio comedor con varias zonas de asientos, una larga barra, una cocina profesional totalmente equipada con electrodomésticos de acero inoxidable, además de varias áreas de trabajo y almacenamiento y servicios en excelente estado de mantenimiento. La distribución es muy versátil y especialmente adecuada para la celebración de eventos, fiestas y reuniones privadas.

El local cuenta con dos entradas independientes, lo que aporta flexibilidad para distintos usos o flujos de clientes, e incluye dos baños.

Dispone de una gran zona de aparcamiento justo enfrente, lo que garantiza una excelente accesibilidad y comodidad para los clientes. Además, el establecimiento está equipado con aire acondicionado profesional, tanto frío como calor, proporcionando un ambiente confortable durante todo el año.

El negocio cuenta con licencia de restaurante y bar, así como licencia de catering, lo que ofrece excelentes oportunidades para ampliar la actividad e incrementar los ingresos.

Gran parte del inventario está incluido en el traspaso, lo que permite iniciar la actividad de inmediato con una inversión adicional limitada. El inventario completo está disponible bajo solicitud.

Detalles financieros:
Alquiler: 500 € al mes
Precio de traspaso: 69.500 €

La ubicación en Coín ofrece una sólida combinación de residentes locales y visitantes internacionales, lo que genera un buen potencial de crecimiento.

Esta es una excelente oportunidad para emprendedores que deseen iniciar un negocio en España o ampliar su actividad con un establecimiento de hostelería listo para funcionar.

Para más información o concertar una visita, no dude en ponerse en contacto.

última modificació

Distribució

  • Superfície 216 m2

Característiques generals

  • Any construcció 1982
  • Certificat energètic :
    Consumo:
    G
    999 kW h m2 / año
    Emisiones:
    G
    999 kg CO2 m2 / año
Anunci: 48872000000161

Ubicació

Navega pel mapa fent clic a sobre
T´avisem quan tinguem un anunci com aquest? Crea la teva alerta i nosaltres t´avisarem per correu electrònic quan hi hagin nous anuncis o siguin modificats
 

Contactar Costa del Sol Specialist

Referència de l´anunci habitaclia/R5363995:

Veuràs el telèfon després d´enviar el contacte a l´anunciant perquè et pugui atendre.
Veuràs el telèfon després de contactar
Enviant…