Visita virtual
Comentari guardat!
Només ho veuràs tú
Comment saved!
Afegeix la teva valoració i/o un comentari per aquest anunci. Només el veuràs tu

Local comercial a La Petxina Valencia

  • 91 m2
  • 1.868 €/m2

Local versátil en zona de paso

LAE Homes se vende local totalmente versátil, ideal para despacho, oficina, tienda o cualquier actividad profesional que necesite un espacio funcional y bien ubicado.

Cuenta con fachada directa a la calle, lo que garantiza máxima visibilidad, y excelente luz natural durante todo el día.

Situado en una zona de paso muy transitada, ofrece una ubicación estratégica para atraer clientes. Además, dispone de aire acondicionado por splits, asegurando confort en cualquier época del año. Dispone también de salida a un pequeño patio interior, perfecto para ventilación adicional o como zona auxiliar.

¡Un espacio con grandes posibilidades para hacer crecer tu negocio!

última modificació

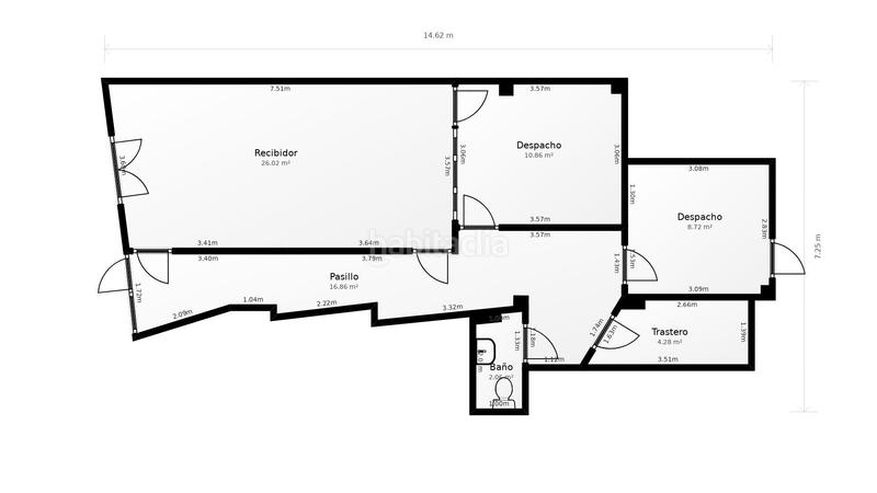
Distribució

  • Superfície 91 m2

Característiques generals

  • Aire Acondicionat
  • Any construcció 1972
  • Certificat energètic :
    Consumo:
    G
    999 kW h m2 / año
    Emisiones:
    G
    999 kg CO2 m2 / año
Anunci: 48647000000978

Ubicació

La Petxina Calle de Martín 'El Humano'

Navega pel mapa fent clic a sobre
T´avisem quan tinguem un anunci com aquest? Crea la teva alerta i nosaltres t´avisarem per correu electrònic quan hi hagin nous anuncis o siguin modificats
 

Contactar LAE HOMES

Referència de l´anunci habitaclia/VAL0056A:

Veuràs el telèfon després d´enviar el contacte a l´anunciant perquè et pugui atendre.
Veuràs el telèfon després de contactar
Enviant…