Comentari guardat!
Només ho veuràs tú
Comment saved!
Afegeix la teva valoració i/o un comentari per aquest anunci. Només el veuràs tu
Oportunitat 17.000 € Avisa´m si baixa
ha baixat 3.000 €

Masia a Riós

Lugar Cortegada

  • 405 m2
  • 42 €/m2

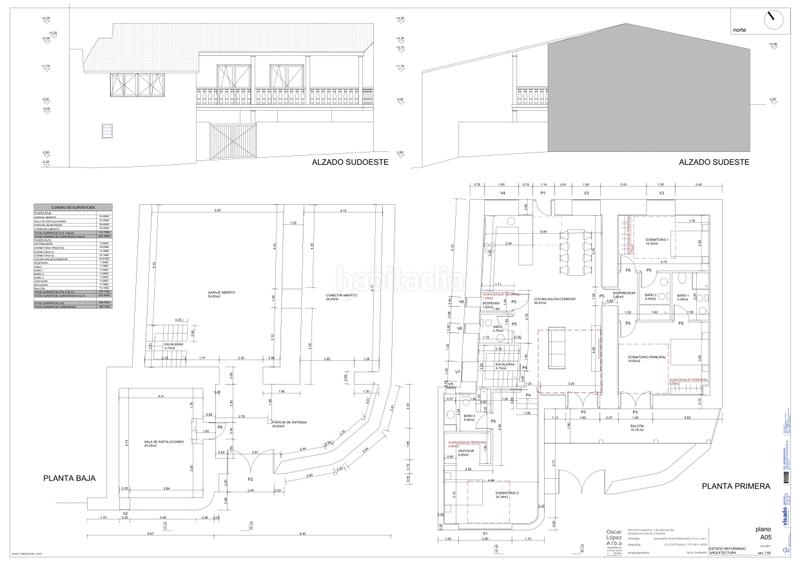
Casa a reformar con proyecto visado

Si eres un amante de la tranquilidad del rural, y buscas una casita para reformar a tu gusto donde poder desconectar del estrés de la ciudad, ¡esta es tu oportunidad! .

Vendemos esta casa ubicada en la aldea de Cortegada, perteneciente al Ayuntamiento de Riós, provincia de Ourense. Se trata de una localización idílica en cuanto a la paz y la naturaleza que representan el rural gallego. Está bien comunicado con la autovía A-52, y se encuentra a 9 km aproximadamente de Riós y a tan solo 22 km de Verín, donde se pueden encontrar todos los servicios (hospital, colegios, farmacias, comercios... ).

La vivienda cuenta con un proyecto de reforma visado, el cual se incluye en el precio de venta, y supone un ahorro futuro.

Sin duda se trata de una propiedad con muchísimas posibilidades, tanto para destinarla al disfrute propio, como para destinar a casa de turismo rural o alquiler vacacional.

Si quieres saber más especificaciones no dudes en contactarnos.

- Promociones Inmobiliarias Miguel -.

última modificació

Distribució

  • Superfície 405 m2
  • Cuina Tipus Office: No

Característiques generals

  • Sense plaça aparcament
  • Sense aire acondicionat
  • Certificat energètic :
    Exempt
Anunci: 39909000000115

Ubicació

Lugar Cortegada

Navega pel mapa fent clic a sobre
17.000 € Preu de l´anunci
866 €/m2€/m2 comarca
42 €/m2€/m2 de l´anunci
95% més econòmic que la mitja*
Veure evolució €/m2 a Riós
T´avisem quan tinguem un anunci com aquest? Crea la teva alerta i nosaltres t´avisarem per correu electrònic quan hi hagin nous anuncis o siguin modificats
 

Contactar PROMOCIONES INMOBILIARIAS MIGUEL

Referència de l´anunci habitaclia/346:

Veuràs el telèfon després d´enviar el contacte a l´anunciant perquè et pugui atendre.
Veuràs el telèfon després de contactar
Enviant…