Comentari guardat!
Només ho veuràs tú
Comment saved!
Añade tu valoración y/o un comentario para este anuncio. Sólo lo verás tú

Pis amb calefacció a Aretxabaleta

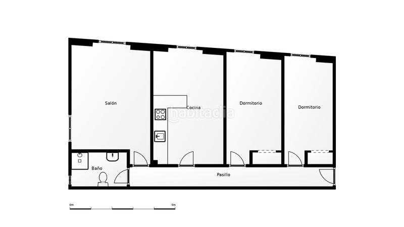
  • 76 m2
  • 2 hab.
  • 1 bany
  • 1.974 €/m2

BASABE KALEA

(VENTA EN EXCLUSIVA POR LARRATXO)
Piso con camarote bajo cubierta en Aretxabaleta — con edificio en plena renovación.
Te presentamos este cómodo piso de 76 m² situado en Basabe Bidea, Aretxabaleta, una localidad tranquila y bien comunicada en el corazón de Gipuzkoa, a escasos minutos de Arrasate y Bergara.
Con 2 habitaciones, 1 baño y un camarote bajo cubierta, dispones de un espacio extra muy versátil que puedes adaptar como dormitorio adicional, zona de trabajo, sala de juegos o trastero según tus necesidades.
Ubicado en segunda planta, la vivienda cuenta con calefacción de gas natural individual para un confort óptimo durante todo el año.
Un dato muy relevante para el comprador: el edificio está actualmente pasando la ITE con obras de reforma en fachadas y tejados — lo que significa que adquieres una vivienda en un edificio totalmente puesto al día, con las principales intervenciones estructurales ya resueltas. Una garantía de tranquilidad y sin sorpresas a medio plazo.
? 76 m² construidos | ? 2 habitaciones | ? 1 baño | ? Camarote bajo cubierta | ? 2ª planta | ? Calefacción gas natural | ? Edificio con ITE y reforma de fachada y tejado en curso | ? Basabe Bidea, Aretxabaleta | ? Tour virtual disponible| ? Vídeo con el antes y después.
Precio: 150.000 € — Seguridad, espacio y buen precio. Contacta con nosotros y visítalo sin compromiso.
Superficie: 76 m² y 69 m2 útiles

Basabe Kalea, 2 de Aretxabaleta
Camarote: 12 m²
Planta: 2.ª (sin ascensor)
Cocina americana equipada
Salón comedor
2 habitaciones
Baño
Hall y pasillo
Calefacción individual a gas
Semi amueblado
Exterior y céntrico
Gastos de comunidad: 20 €/mes

última modificació

Distribució

  • 2 habitacions
  • Superfície 76 m2
  • 1 bany
  • Traster

Característiques generals

  • Calefacció
  • Moblat
  • Any construcció 1900
  • Certificat energètic :
    Consumo:
    G
    393 kW h m2 / año
    Emisiones:
    G
    76 kg CO2 m2 / año
Anunci: 57087000000089

Ubicació

Navega pel mapa fent clic a sobre
150.000 € Preu de l´anunci
2.359 €/m2€/m2 comarca
1.974 €/m2€/m2 de l´anunci
16% més econòmic que la mitja*
Veure evolució €/m2 a Aretxabaleta
T´avisem quan tinguem un anunci com aquest? Crea la teva alerta i nosaltres t´avisarem per correu electrònic quan hi hagin nous anuncis o siguin modificats
 

Contactar Larratxo Inmobiliaria

Referència de l´anunci habitaclia/7:

Veuràs el telèfon després d´enviar el contacte a l´anunciant perquè et pugui atendre.
Veuràs el telèfon després de contactar
Enviant…