Comentari guardat!
Només ho veuràs tú
Comment saved!
Añade tu valoración y/o un comentario para este anuncio. Sólo lo verás tú
Oportunitat 210.000 € Avisa´m si baixa
ha baixat 2.000 €

Pis amb calefacció a Font de la Guatlla Barcelona

  • 31 m2
  • 1 hab.
  • 1 bany
  • 6.774 €/m2

Estudio en venta en Gran Via

ESTUDIO CON TERRAZA EN GRAN VIA

Local-estudio en venta con terraza privativa, situado en una de las ubicaciones más emblemáticas de la ciudad: la Gran Vía, a escasos metros de Plaça de Espanya.

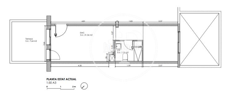
La propiedad, para reformar, ofrece una excelente oportunidad para diseñar un espacio a medida, ya sea como vivienda singular, estudio urbano o inversión con gran potencial de rentabilidad. Dispone de 27 m² construidos, a los que se suma una agradable terraza de 7,64 m² según plano aportado por la propiedad, un valor añadido poco habitual en la zona.

El espacio se distribuye en salón con cocina integrada y salida directa a la terraza, un dormitorio y un baño, permitiendo múltiples posibilidades de redistribución y aprovechamiento según necesidades.

Ubicado en una 7ª planta, el inmueble goza de buena luminosidad, Sol directo y tranquilidad relativa dentro de un entorno plenamente urbano. La finca se encuentra en buen estado de conservación y cuenta con ascensor y servicio de conserjería, aportando comodidad y seguridad en el día a día. La finca disponible de PARKING, no incluido en el precio.

Rodeado de todo tipo de servicios, comercios, transporte público y puntos de interés, este inmueble representa una oportunidad única para quienes buscan un proyecto personal en una localización inmejorable.

Algunas de estas imágenes han sido amuebladas con I.A. y pueden no corresponder a la realidad.
Ref. VB2604040

Nº AICAT: 8446

última modificació

Distribució

  • 1 habitació
  • Superfície 31 m2
  • Balcó / Terrassa 8 m2
  • 1 bany

Característiques generals

  • Calefacció
  • Sense plaça aparcament
  • Sense aire acondicionat
  • Any construcció 1975
  • Certificat energètic :
    Consumo:
    G
    291 kW h m2 / año
    Emisiones:
    F
    55 kg CO2 m2 / año

Equipament comunitari

  • Ascensor
Anunci: 4737003827609

Ubicació

Font de la Guatlla Gran Via de les Corts Catalanes

Navega pel mapa fent clic a sobre
210.000 € Preu de l´anunci
4.254 €/m2€/m2 distrito
6.774 €/m2€/m2 de l´anunci
Veure evolució €/m2 a Barcelona (Sants Montjuïc)
T´avisem quan tinguem un anunci com aquest? Crea la teva alerta i nosaltres t´avisarem per correu electrònic quan hi hagin nous anuncis o siguin modificats
 

Contactar aProperties Real Estate Barcelona

Referència de l´anunci habitaclia/VB2604040:

Veuràs el telèfon després d´enviar el contacte a l´anunciant perquè et pugui atendre.
Veuràs el telèfon després de contactar
Enviant…