Visita virtual
Comentari guardat!
Només ho veuràs tú
Comment saved!
Añade tu valoración y/o un comentario para este anuncio. Sólo lo verás tú
639.000 € Avisa´m si baixa
ha baixat 6.000 €

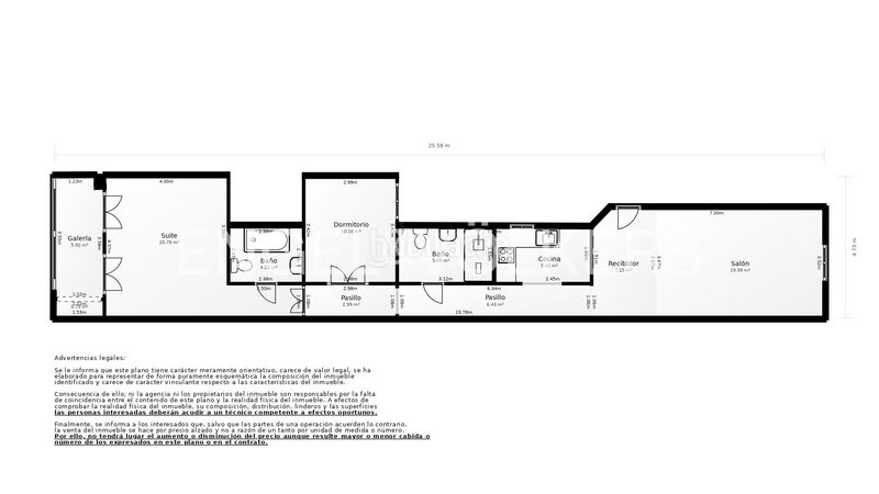
Pis amb calefacció a Raval Barcelona

  • 107 m2
  • 2 hab.
  • 2 banys
  • 5.972 €/m2

Elegancia clásica y diseño contemporáneo de carácter señorial junto a Plaça Catalunya

Engel & Völkers presenta una vivienda única que combina la arquitectura clásica barcelonesa con una cuidada intervención contemporánea, completamente amueblada y lista para entrar a vivir.

La propiedad ha sido íntegramente reformada con un criterio estético muy sólido, respetando y realzando los elementos originales de la arquitectura barcelonesa, como los techos altos ornamentados, las molduras, las carpinterías y las proporciones nobles de sus estancias.

Sobre esta base clásica se ha desarrollado una intervención contemporánea refinada, con una selección de materiales, acabados y mobiliario que convierten la vivienda en un producto integral, sofisticado y listo para entrar a vivir.

La zona de día destaca por su gran fuerza visual y por una atmósfera elegante y serena. La chimenea de mármol, los revestimientos pétreos, las luminarias escultóricas y la selección de piezas de diseño aportan personalidad y coherencia a un conjunto interior de marcada calidad. La vivienda transmite una sensación de amplitud, orden y confort, con espacios muy bien resueltos que combinan representatividad y funcionalidad.
Highlights / puntos fuertes:

- Ubicación céntrica, junto a Plaça Catalunya, Universitat y Pelai
- Finca regia con gran valor arquitectónico
- Ascensor
- Techos altos con molduras ornamentadas
- Elementos originales restaurados
- Chimenea de mármol de gran presencia estética
- Cocina contemporánea de líneas depuradas
- Baños de diseño con materiales nobles:
- Dormitorios elegantes, amplios con armarios
- Se entrega totalmente amueblada y decorada
- Reformada con acabados de alto nivel:
- Suelos de madera de roble
- Suelos de mármol en el área del comedor
- Completamente climatizada, con splits en cada estancia

Se trata de una pieza especialmente atractiva para quien busca una vivienda singular en el centro de Barcelona, con carácter arquitectónico, reforma de calidad y entrega completamente amueblada. Una propiedad difícil de encontrar por su equilibrio entre localización, imagen, confort y valor histórico.
Situada a escasos pasos de Plaça Catalunya, Universitat y Pelai, la propiedad disfruta de una localización excepcional en uno de los enclaves más dinámicos, creativos y mejor conectados del centro de Barcelona. Este entorno, históricamente bohemio y de fuerte identidad cultural, combina el encanto de sus calles con una oferta urbana en constante evolución, convirtiéndose en una de las zonas más estimulantes de la ciudad para vivir y disfrutar.

El barrio destaca por su extraordinaria riqueza gastronómica, cultural y artística. En sus alrededores conviven restaurantes y bares de reconocimiento internacional con galerías, espacios creativos y referentes culturales que definen el pulso contemporáneo de Barcelona.

A muy pocos minutos a pie se encuentran iconos como el MACBA, el Mercado de la Boquería, el Mercado de Sant Antoni y el Gran Teatre del Liceu, aportando a la vivienda un contexto urbano vibrante, sofisticado y profundamente barcelonés.

A ello se suma una conectividad excelente, con acceso inmediato a las líneas L1, L2 y L3 del metro, múltiples líneas de autobús y una rápida conexión con la Gran Via de les Corts Catalanes y la C-31, que enlaza cómodamente con el aeropuerto.

Una ubicación estratégica para quien busca la intensidad del centro, el valor cultural del entorno y la comodidad de una ciudad perfectamente accesible.

última modificació

Distribució

  • 2 habitacions
  • Superfície 107 m2
  • 2 banys

Característiques generals

  • Calefacció
  • Sense plaça aparcament
  • Moblat
  • Aire Acondicionat
  • Any construcció 1930
  • Certificat energètic :
    Consumo:
    G
    999 kW h m2 / año
    Emisiones:
    G
    999 kg CO2 m2 / año

Equipament comunitari

  • Ascensor
Anunci: 8166003808286

Ubicació

Raval

Navega pel mapa fent clic a sobre
639.000 € Preu de l´anunci
4.974 €/m2€/m2 distrito
5.972 €/m2€/m2 de l´anunci
Veure evolució €/m2 a Barcelona (Ciutat Vella)
T´avisem quan tinguem un anunci com aquest? Crea la teva alerta i nosaltres t´avisarem per correu electrònic quan hi hagin nous anuncis o siguin modificats
 

Contactar ENGEL & VOELKERS

Referència de l´anunci habitaclia/I-046FQL-W-046FQL:

Veuràs el telèfon després d´enviar el contacte a l´anunciant perquè et pugui atendre.
Veuràs el telèfon després de contactar
Enviant…