Comentari guardat!
Només ho veuràs tú
Comment saved!
Añade tu valoración y/o un comentario para este anuncio. Sólo lo verás tú
219.000 € Avisa´m si baixa
ha baixat 10.000 €

Pis amb calefacció a Colindres

  • 76 m2
  • 2 hab.
  • 1 bany
  • 2.882 €/m2

LA CASA AGENCY PRESENTA...
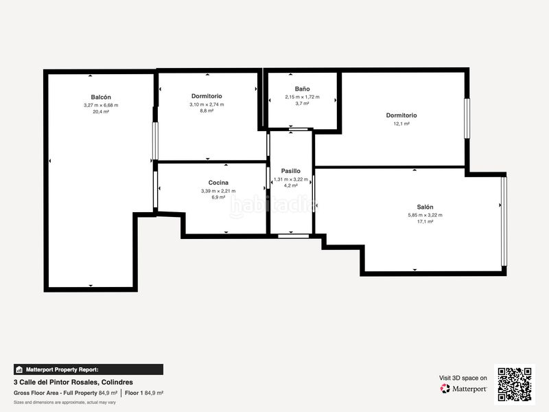
Espectacular vivienda totalmente exterior situada en la zona de Colindres, un enclave privilegiado que combina tranquilidad y cercanía al mar. Ubicada en una primera planta exterior de un edificio de 1995, la finca está perfectamente adaptada con acceso mediante rampa y ascensor a cota cero, garantizando una accesibilidad total.

La propiedad cuenta con 76 m2 construidos (64 m2 útiles) y destaca por su excelente orientación suroeste, que asegura luz natural durante todo el día. Dispone de un hall de entrada que da paso a un gran salón con amplios ventanales, creando una atmósfera de amplitud y claridad. La cocina es moderna, con electrodomésticos a estrenar y salida directa a una impresionante terraza de 12 m2, el espacio ideal para disfrutar del aire libre. La zona de descanso se distribuye en 2 habitaciones y un baño completo.

En cuanto a las calidades, el inmueble se encuentra en muy buen estado y listo para entrar a vivir, equipado con ventanas de doble acristalamiento, calefacción individual de gas natural, puerta blindada y suelos de roble tratados recientemente con detalles en madera maciza.

Su ubicación es inmejorable dentro de la zona, a tan solo 10 minutos andando de la playa. Dispone de todos los servicios esenciales a mano: el ambulatorio se encuentra a un minuto de distancia y está rodeado de supermercados, parques y zonas de ocio, lo que la convierte en una opción ideal tanto por comodidad como por calidad de vida.

Se informa al cliente que los honorarios de agencia, gastos de gestión, así como los impuestos, gastos notariales y registrales derivados de la compraventa, NO van incluidos en el precio del inmueble.

última modificació

Distribució

  • 2 habitacions
  • Superfície 76 m2
  • 1 bany

Característiques generals

  • Calefacció
  • Any construcció 1995
  • Certificat energètic :
    Consumo:
    F
    190 kW h m2 / año
    Emisiones:
    E
    87 kg CO2 m2 / año

Equipament comunitari

  • Ascensor
Anunci: 36981000005492

Ubicació

Navega pel mapa fent clic a sobre
219.000 € Preu de l´anunci
2.931 €/m2€/m2 comarca
2.882 €/m2€/m2 de l´anunci
2% més econòmic que la mitja*
Veure evolució €/m2 a Colindres
T´avisem quan tinguem un anunci com aquest? Crea la teva alerta i nosaltres t´avisarem per correu electrònic quan hi hagin nous anuncis o siguin modificats
 

Contactar Punto Viladecans

Referència de l´anunci habitaclia/LCBI42399:

Veuràs el telèfon després d´enviar el contacte a l´anunciant perquè et pugui atendre.
Veuràs el telèfon després de contactar
Enviant…