Comentari guardat!
Només ho veuràs tú
Comment saved!
Afegeix la teva valoració i/o un comentari per aquest anunci. Només el veuràs tu
Oportunitat 950.000 € Avisa´m si baixa

Pis amb calefacció aparcament a La Malagueta - Monte Sancha Málaga

  • 135 m2
  • 3 hab.
  • 2 banys
  • 7.037 €/m2

VIVIENDA CON VISTAS AL MAR EN PASEO DE SANCHA.

VIVIENDA CON VISTAS AL MAR EN PASEO DE SANCHA.


Su ubicación, en una de las avenidas principales de la ciudad, donde se admira la arquitectura de las villas señoriales del siglo XIX, distingue a esta vivienda, situada en la última planta de una de estas villas, a escasos metros del mar mediterráneo y disfrutando de una luz y una orientación envidiables.

En esta localización destacan la cercanía al Paseo Marítimo y la playa, accesible a todos los servicios, como comercios, centros médicos, deportivos, escolares, restauración, con varias líneas de transporte público y fácil acceso a la autovía.

Para encontrar una vida más bulliciosa, a una distancia 20 minutos caminando se sitúa el centro histórico de Málaga y el Muelle Uno, con toda su oferta cultural y de restauración , que hacen que vivir en Málaga sea una fantástica experiencia.

La propiedad se reformó recientemente y está prácticamente sin uso desde entonces.

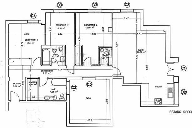
Se distribuye en salón comedor, con zona de cocina completamente integrada en concepto abierto y una bonita terraza con vistas al mar. Tres dormitorios dobles, todos con armarios empotrados y dos baños completos, uno de ellos muy amplio que integra una zona de lavado oculta.

Ventilación cruzada y numerosas ventanas hacen que la luz llegue a todos los rincones de esta vivienda.

Incluye plaza de aparcamiento en el mismo edificio.

Amplíe información en AZUL REAL ESTATE, especialistas en Málaga Este. [IW]

última modificació

Distribució

  • 3 habitacions
  • Superfície 135 m2
  • 2 banys
  • Cuina Tipus Office

Característiques generals

  • Calefacció
  • Plaça aparcament
  • Aire Acondicionat
  • Certificat energètic :
    Consumo:
    G
    999 kW h m2 / año
    Emisiones:
    G
    999 kg CO2 m2 / año

Equipament comunitari

  • Ascensor
Anunci: 50106000000160

Ubicació

La Malagueta - Monte Sancha

Navega pel mapa fent clic a sobre
950.000 € Preu de l´anunci
5.586 €/m2€/m2 distrito
7.037 €/m2€/m2 de l´anunci
Veure evolució €/m2 a Málaga (Centro)
T´avisem quan tinguem un anunci com aquest? Crea la teva alerta i nosaltres t´avisarem per correu electrònic quan hi hagin nous anuncis o siguin modificats
 

Contactar AZUL REAL ESTATE

Referència de l´anunci habitaclia/E-088:

Veuràs el telèfon després d´enviar el contacte a l´anunciant perquè et pugui atendre.
Veuràs el telèfon després de contactar
Enviant…