Comentari guardat!
Només ho veuràs tú
Comment saved!
Añade tu valoración y/o un comentario para este anuncio. Sólo lo verás tú
1.700.000 € Avisa´m si baixa

Pis amb calefacció a Ibiza Madrid

  • 153 m2
  • 3 hab.
  • 4 banys
  • 11.111 €/m2

EXCLUSIVA VIVIENDA REFORMADA EN IBIZA CALLE ODONNELL, MADRID JUNTO AL RETIRO

Presentamos esta magnífica vivienda situada en una primera planta de un edificio moderno en el prestigioso barrio de Ibiza, a escasos metros del Parque del Retiro. Una ubicación privilegiada que combina vida urbana, zonas verdes y una excelente oferta de servicios, restauración y transporte.
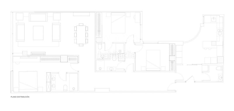
La vivienda ha sido diseñada con criterios de confort y funcionalidad, ofreciendo espacios amplios, luminosos y perfectamente distribuidos. Cuenta con tres dormitorios, de los cuales dos disponen de baño en suite, además de un tercer baño completo y un elegante aseo de cortesía.
La habitación principal, exterior a la Calle O’Donnell, destaca por su luminosidad y su agradable orientación, aportando una sensación de amplitud y confort.
La zona de día se compone de un amplio salón-comedor, pensado para disfrutar de un ambiente cálido y acogedor, ideal tanto para el día a día como para recibir invitados.
La cocina, moderna y totalmente equipada con electrodomésticos de alta gama, se integra perfectamente en el diseño de la vivienda y cuenta además con acceso directo a una terraza interior, aportando ventilación, luz natural y un espacio adicional muy práctico. Incluye también una zona de lavandería independiente dentro de la propia cocina, optimizando la funcionalidad del hogar.
La vivienda ha sido reformada con materiales de alta calidad, combinando diseño contemporáneo y confort, y se entrega totalmente equipada y lista para entrar a vivir.
Una oportunidad única de adquirir una propiedad en una de las zonas más demandadas de Madrid, junto al Retiro, ideal tanto como residencia habitual como inversión de alto nivel.
¿Te imaginas vivir aquí?
Contacta con nosotros para más información o para concertar una visita.

última modificació

Distribució

  • 3 habitacions
  • Superfície 153 m2
  • 4 banys
  • Cuina Tipus Office: No

Característiques generals

  • Calefacció
  • Sense plaça aparcament
  • Moblat
  • Aire Acondicionat
  • Any construcció 1969
  • Certificat energètic :
    Consumo:
    G
    999 kW h m2 / año
    Emisiones:
    G
    999 kg CO2 m2 / año

Equipament comunitari

  • Ascensor
Anunci: 48788000000055

Ubicació

Ibiza Odonnell

Navega pel mapa fent clic a sobre
1.700.000 € Preu de l´anunci
8.920 €/m2€/m2 distrito
11.111 €/m2€/m2 de l´anunci
¿Cuánto te gustaría pagar?
Veure evolució €/m2 a Madrid (Retiro)
T´avisem quan tinguem un anunci com aquest? Crea la teva alerta i nosaltres t´avisarem per correu electrònic quan hi hagin nous anuncis o siguin modificats
 

Contactar ONOMA HOMES

Referència de l´anunci habitaclia/1021:

Veuràs el telèfon després d´enviar el contacte a l´anunciant perquè et pugui atendre.
Veuràs el telèfon després de contactar
Enviant…