Comentari guardat!
Només ho veuràs tú
Comment saved!
Afegeix la teva valoració i/o un comentari per aquest anunci. Només el veuràs tu
850.000 € Avisa´m si baixa
ha baixat 30.000 €

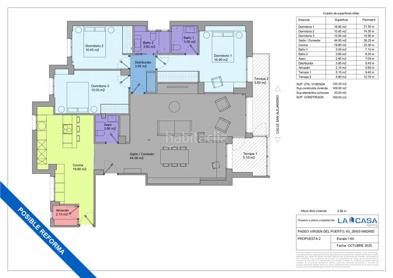
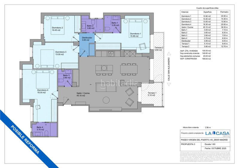
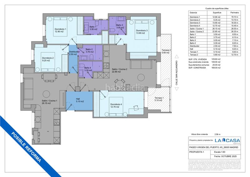
Pis amb calefacció a Imperial Madrid

  • 169 m2
  • 5 hab.
  • 3 banys
  • 5.030 €/m2

Desde La Casa Agency presentamos en exclusiva esta excepcional propiedad en el barrio de Imperial, una de las zonas más demandadas de Madrid. Situado en una segunda planta exterior, cuenta con una tranquila terraza que aporta luminosidad y un espacio perfecto para relajarse. La vivienda destaca por su amplitud, con 5 dormitorios y 3 baños, ofreciendo múltiples posibilidades de reforma: desde mantener su configuración actual para familias numerosas o alquiler por habitaciones, hasta transformar el espacio en un moderno piso de 3 dormitorios con salón-cocina.El inmueble se encuentra en una finca señorial de 1971, conservada de manera impecable, con doble ascensor y portero físico, garantizando confort y seguridad. Su orientación sur y la ubicación exterior aseguran gran luminosidad en todas las estancias.La localización es inmejorable: a pocos metros del parque Madrid Río y del Campo del Moro, con acceso cercano al Palacio Real y la Catedral de la Almudena, combinando naturaleza, ocio y patrimonio histórico. Además, las comunicaciones son excelentes, con la estación de Príncipe Pío (Metro, Cercanías y autobuses) y múltiples líneas de EMT que facilitan el desplazamiento por toda la ciudad.Este piso representa no solo una compra, sino una inversión en calidad de vida y potencial rentabilidad, ideal para familias que desean diseñar su hogar definitivo en una zona premium, o para quienes valoran la vida urbana con todas las comodidades y espacios verdes cercanos. Una oportunidad única para transformar este espacio en la casa de sus sueños.

última modificació

Distribució

  • 5 habitacions
  • Superfície 169 m2
  • 3 banys

Característiques generals

  • Calefacció
  • Any construcció 1971
  • Certificat energètic :
    Consumo:
    D
    123 kW h m2 / año
    Emisiones:
    D
    123 kg CO2 m2 / año

Equipament comunitari

  • Ascensor
Anunci: 45450000000707

Ubicació

Imperial Paseo de la Virgen del Puerto

Navega pel mapa fent clic a sobre
850.000 € Preu de l´anunci
6.004 €/m2€/m2 distrito
5.030 €/m2€/m2 de l´anunci
16% més econòmic que la mitja*
Quant t´agradaria pagar?
Veure evolució €/m2 a Madrid (Arganzuela)
T´avisem quan tinguem un anunci com aquest? Crea la teva alerta i nosaltres t´avisarem per correu electrònic quan hi hagin nous anuncis o siguin modificats
 

Contactar La Casa Agency Atocha

Referència de l´anunci habitaclia/LCM39380:

Veuràs el telèfon després d´enviar el contacte a l´anunciant perquè et pugui atendre.
Veuràs el telèfon després de contactar
Enviant…