Comentari guardat!
Només ho veuràs tú
Comment saved!
Añade tu valoración y/o un comentario para este anuncio. Sólo lo verás tú

Pis amb aparcament a La Lastra León

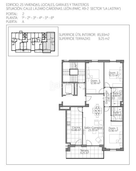
  • 113 m2
  • 3 hab.
  • 2 banys
  • 2.513 €/m2

Edificio LA LASTRA Calle Lázaro Cárdenas de León

? OBRA NUEVA EN LA LASTRA (LEÓN) – TERRAZA + GARAJE + TRASTERO INCLUIDOS

Promoción exclusiva de 25 viviendas de obra nueva en La Lastra, una de las zonas con más crecimiento de León, junto al Instituto Nacional de Ciberseguridad.

Ubicación estratégica, moderna y con alta demanda tanto para vivienda habitual como inversión.

? VIVIENDAS DE 1, 2, 3 Y 4 DORMITORIOS

Edificio distribuido en 2 portales, con viviendas diseñadas para aprovechar al máximo la luz y el espacio.

? Amplias terrazas
? Excelente orientación
? Distribuciones modernas y funcionales

? Todas las viviendas incluyen plaza de garaje y trastero en el precio

?? EFICIENCIA Y CONFORT (LO QUE DE VERDAD IMPORTA)
Aerotermia centralizada
Suelo radiante y refrescante
Ventilación mecánica con recuperador de calor
Calificación energética A

? Menos gasto, más confort. Así de claro.


? ZONA CON ALTA DEMANDA Y PROYECCIÓN

La Lastra es una de las zonas más demandadas de León:

Crecimiento constante
Servicios, colegios y zonas verdes
Excelente conexión con el centro

? Ideal para vivir o como inversión con alta rentabilidad.

? RESERVA AHORA

Promoción en fase de lanzamiento.
Las mejores viviendas se eligen primero.

? Contacta para información, planos y precios.

última modificació

Distribució

  • 3 habitacions
  • Superfície 113 m2
  • Balcó / Terrassa 7 m2
  • 2 banys
  • Traster

Característiques generals

  • Plaça aparcament
  • Any construcció 2026
  • Certificat energètic :
    Consumo:
    G
    999 kW h m2 / año
    Emisiones:
    G
    999 kg CO2 m2 / año

Equipament comunitari

  • Ascensor
Anunci: 29806000003012

Ubicació

La Lastra Calle LAZARO CARDENAS

Navega pel mapa fent clic a sobre
284.000 € Preu de l´anunci
2.222 €/m2€/m2 población
2.513 €/m2€/m2 de l´anunci
Veure evolució €/m2 a León
T´avisem quan tinguem un anunci com aquest? Crea la teva alerta i nosaltres t´avisarem per correu electrònic quan hi hagin nous anuncis o siguin modificats
 

Contactar SOLINMOBILIARIA

Referència de l´anunci habitaclia/LazaroCardenas-P24A:

Veuràs el telèfon després d´enviar el contacte a l´anunciant perquè et pugui atendre.
Veuràs el telèfon després de contactar
Enviant…