Visita virtual
Comentari guardat!
Només ho veuràs tú
Comment saved!
Afegeix la teva valoració i/o un comentari per aquest anunci. Només el veuràs tu

Planta baixa a Jardines de Alhaurín-Huerta Alta-Fuensanguínea Alhaurín de la Torre

  • 111 m2
  • 2 hab.
  • 2 banys
  • 2.694 €/m2

Moderno piso en planta baja con semisótano a estrenar en Jardines de Alhaurín de la Torre

Si buscas un hogar espacioso, con fácil acceso, sin comunidad de propietarios y prácticamente nuevo… ¡esta es tu casa!

Ubicada en Jardines de Alhaurín y con tan solo dos años de antigüedad, combina a la perfección lo mejor de una casa y un piso. Un auténtico híbrido pensado para ofrecer comodidad, funcionalidad y calidad de vida.

Se trata de un bajo con semisótano con acceso directo desde la calle y sin barreras, ideal para quienes valoran la comodidad en su día a día.

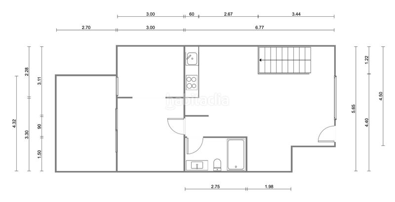
En la planta principal encontrarás un acogedor espacio diáfano donde el salón y la cocina se integran en un moderno concepto abierto. La cocina está completamente amueblada y equipada con electrodomésticos Balay serie cristal acabado en blando: vitrocerámica, horno, campana extractora y frigorífico. Dispone de lavavajillas, todo listo para cocinar.

En esta misma planta dispones de un baño completo con plato de ducha, un dormitorio principal con vestidor y acceso directo a un agradable patio de unos 10 m2, perfecto para tus plantas o espacio de juegos para tus mascotas.

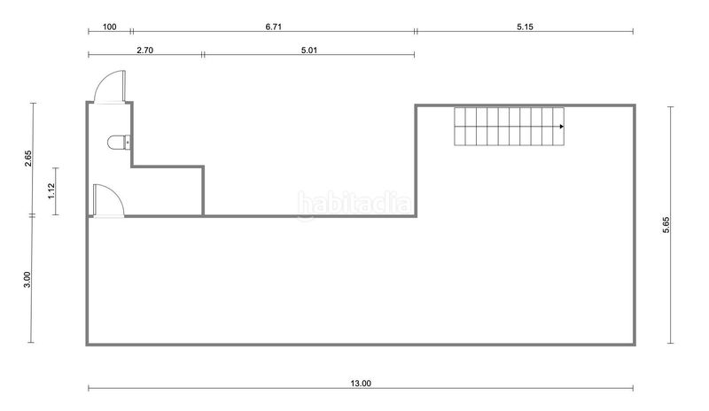
Al bajar al semisótano, descubrirás aproximadamente 50 m2 adicionales con ventilación natural y un segundo baño completo. Un espacio versátil que podrás adaptar a tu estilo de vida: dormitorio extra, zona de trabajo, gimnasio, sala de ocio… tú decides.

En cumplimiento del Decreto de la Junta de Andalucía 218/2005 del 11 de octubre, Ley 12/2023 por el Derecho a la Vivienda así como Ley 10/2025, de 28 de diciembre, en cumplimiento de las obligaciones de información previstas de servicios de atención a la clientela y transparencia, así como en la normativa sectorial vigente, se hace constar que el precio indicado no incluye los gastos e impuestos inherentes a la adquisición: Impuesto sobre Transmisiones Patrimoniales (ITP). Se aplicará el tipo impositivo vigente en la C.A de Andalucía (generalmente el 7%, sin perjuicio de tipos reducidos aplicables según características del comprador y/o del inmueble). El impuesto se devenga sobre el Valor de Referencia de Catastro o el precio de venta, aquel que resulte superior. (Para una información exhaustiva puede consultar el portal oficial de la Agencia Tributaria de la Junta de Andalucía /organismos/economiahaciendayfondoseuropeos/areas/tributos-juego/tributos/paginas/impuestos-cedidos-transmisiones.html );gastos de Notaría: los honorarios se calcularán conforme al arancel oficial regulado en el Anexo I, del R.D 1426/1989, de 17 de noviembre, por el que se aprueba el arancel Notarial; gastos de Registro: la inscripción en el Registro de la Propiedad se facturará según el arancel oficial establecido en el ANEXO I, del R.C. 1427/1989, de 17 de noviembre, por el que se aprueba el arancel Notarial. No existen honorarios de intermediación inmobiliaria adicionales al precio de venta, salvo los que implican servicios prestados por nuestra agencia al comprador reflejados en el encargo correspondiente y que ascienden a un porcentaje del 0,75% más IVA (21%) calculado sobre el precio final de venta del inmueble visitado cuyo devengo se efectuará el día del otorgamiento de la escritura pública de compraventa. Los datos expuestos en la ficha comercial son meramente informativos y no tienen valor contractual. Asimismo su contenido puede estar sujeto a cambios de precio, de disponibilidad y/o retirada del mercado sin aviso específico previo.
La superficie construida que aparece en el anuncio se corresponde con información extraída del catastro, nota simple o escritura pública de compraventa. En cuanto a la superficie útil por no ser una superficie de la que se disponga en todos los casos, se hará coincidir con la construida.
Contamos con Seguro Responsabilidad Civil para la plena garantía de nuestros clientes.
Tenemos a su disposición la D.I.A, en base a lo dispuesto en el Decreto 218/05 de 11 de Octubre que regula el Reglamento de Información al Consumidor.

última modificació

Distribució

  • 2 habitacions
  • Superfície 111 m2
  • 2 banys
  • Cuina Tipus Office

Característiques generals

  • Any construcció 2024
  • A prop de transport públic
  • Certificat energètic :
    Consumo:
    G
    999 kW h m2 / año
    Emisiones:
    G
    999 kg CO2 m2 / año
Anunci: 24670000003920

Ubicació

Jardines de Alhaurín-Huerta Alta-Fuensanguínea

Navega pel mapa fent clic a sobre
298.990 € Preu de l´anunci
2.967 €/m2€/m2 población
2.694 €/m2€/m2 de l´anunci
9% més econòmic que la mitja*
Veure evolució €/m2 a Alhaurín de la Torre
T´avisem quan tinguem un anunci com aquest? Crea la teva alerta i nosaltres t´avisarem per correu electrònic quan hi hagin nous anuncis o siguin modificats
 

Contactar Proactiva Inmobiliaria

Referència de l´anunci habitaclia/70158:

Veuràs el telèfon després d´enviar el contacte a l´anunciant perquè et pugui atendre.
Veuràs el telèfon després de contactar
Enviant…