Comentari guardat!
Només ho veuràs tú
Comment saved!
Afegeix la teva valoració i/o un comentari per aquest anunci. Només el veuràs tu

Planta baixa a La Gavarra Cornellà de Llobregat

  • 97 m2
  • 3 hab.
  • 1 bany
  • 2.052 €/m2

LU-LAGAVARRA
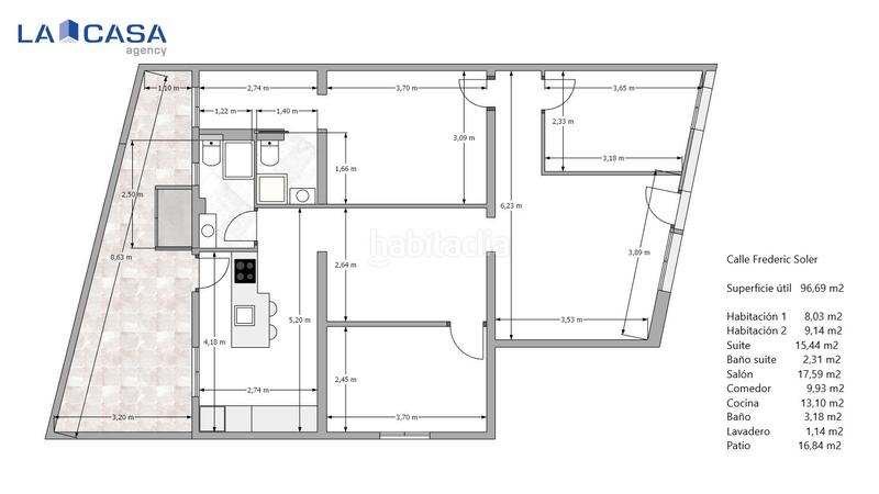
¡Oportunidad única en La Gavarra, Cornellà! Planta baja a reformar con gran potencial Presentamos esta fantástica planta baja de 97 m² útiles, ideal para convertir en la vivienda de tus sueños. Actualmente, es un espacio diáfano que se puede reformar completamente y distribuir en: 3 habitaciones, una de ellas con baño en suite 1 baño adicional Cocina con comedor Salón amplio y luminoso Patio trasero de buen tamaño, perfecto para disfrutar al aire libre Se incluyen renders y planos para que puedas visualizar cómo podría quedar tras la reforma. Ubicada en La Gavarra, una de las mejores zonas de Cornellà, con excelentes conexiones de transporte público: ? Tranvía, metro L5, autobuses y tren a pocos minutos ? Supermercados, farmacias, restaurantes y zonas verdes en las inmediaciones
Una gran oportunidad para diseñar tu hogar a medida en una ubicación privilegiada. ¡Contáctanos para más información y visita!
************FOTOS DE RENDER!!!!!! ESTA TOTALMENTE A REFORMAR****************

última modificació

Distribució

  • 3 habitacions
  • Superfície 97 m2
  • 1 bany

Característiques generals

  • Any construcció 1965
  • Certificat energètic :
    Consumo:
    B
    25 kW h m2 / año
    Emisiones:
    B
    225 kg CO2 m2 / año
Anunci: 13478004404790

Ubicació

La Gavarra Carrer de Frederic Soler

Navega pel mapa fent clic a sobre
199.000 € Preu de l´anunci
2.582 €/m2€/m2 población
2.052 €/m2€/m2 de l´anunci
21% més econòmic que la mitja*
Veure evolució €/m2 a Cornellà de Llobregat
T´avisem quan tinguem un anunci com aquest? Crea la teva alerta i nosaltres t´avisarem per correu electrònic quan hi hagin nous anuncis o siguin modificats
 

Contactar LA CASA AGENCY NOU BARRIS

Referència de l´anunci habitaclia/LCB40229-1:

Veuràs el telèfon després d´enviar el contacte a l´anunciant perquè et pugui atendre.
Veuràs el telèfon després de contactar
Enviant…