Comentari guardat!
Només ho veuràs tú
Comment saved!
Añade tu valoración y/o un comentario para este anuncio. Sólo lo verás tú

Terreny residencial a Palmeira Ribeira

  • 513 m2
  • 173 €/m2

TERRENO CON PROYECTO DE VIVIENDA

Se vende terreno en Palmeira con proyecto de vivienda unifamiliar.

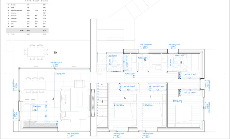
El proyecto define una vivienda que se compone de: Planta sótano, donde se sitúa el garaje, trastero y lavandería, mientras que en la Planta baja se encuentra el resto del programa de la vivienda, con 3 dormitorios, 2 baños, salón/cocina/comedor por el cual se accede a un porche.

Situado en zona tranquila, residencial, acceso con vía asfaltada. A unos 350 metros de la playa de A Corna y cerca de servicios como colegio, farmacia, tiendas alimentación, parada autobús, lavandería, restauración, etc.

última modificació

Distribució

  • Superfície 513 m2
Anunci: 32659000000339

Ubicació

Palmeira

Navega pel mapa fent clic a sobre
T´avisem quan tinguem un anunci com aquest? Crea la teva alerta i nosaltres t´avisarem per correu electrònic quan hi hagin nous anuncis o siguin modificats
 

Contactar ERADIXITAL, S.L.

Referència de l´anunci habitaclia/ED-12872:

Veuràs el telèfon després d´enviar el contacte a l´anunciant perquè et pugui atendre.
Veuràs el telèfon després de contactar
Enviant…