Comentari guardat!
Només ho veuràs tú
Comment saved!
Afegeix la teva valoració i/o un comentari per aquest anunci. Només el veuràs tu

Terreny residencial a Casablanca - Calvario Vigo

  • 510 m2
  • 882 €/m2

¡Invierte hoy en uno de los barrios con más vida y proyección de Vigo!
En Rúa Barrio Ribadavia, muy próximo al Mercadona de Pizarro, te presentamos este solar urbano consolidado con todo listo para comenzar a construir.
Detalles clave:
Uso residencial
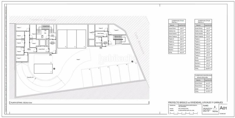
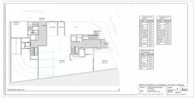
Edificabilidad sobre rasante: 1.728 m² construibles
Proyecto Básico de Ejecución aprobado y Licencia concedida
Distribución prevista:
10 viviendas (5 de ellas en formato dúplex)
1 local comercial en planta baja
16 plazas de garaje
10 trasteros
¿Por qué esta ubicación?
Ubicado en el barrio del Calvario, una de las zonas con más carácter, servicios y movimiento comercial de Vigo, con excelentes conexiones y alta demanda residencial. Rodeado de todo lo que tus futuros compradores o inquilinos buscan: comercios, colegios, transporte público y una vida de barrio vibrante.

¿Quieres más detalles o una visita a pie de parcela? ¡Estamos a tu disposición! Haz realidad tu próxima promoción sin esperas ni incertidumbres.

¡No lo puedes dejar escapar! Sí lo que quieres es información no dudes en ponerte en contacto con nosotros a través de nuestra página web o también puedes visitarnos en nuestras oficinas ubicadas en Avda de Buenos Aires 58 Bajo esquina (Ourense) y en avenida García Barbón nº 97 entreplanta 9 Vigo (Pontevedra).
Si prefieres llamanos al (Ourense) o (Vigo) estaremos encantados de atenderle.
En inmobiliaria FLY también podemos hacerle un presupuesto de lo que costaría su reforma y darle asesoramiento desde el principio hasta el final. Contamos también con un equipo de abogado, asesores financieros, tasación, arquitectos y asesores comerciales altamente cualificado. INMOBILIARIA FLY DESDE EL PRINCIPIO HASTA EL FINAL A SU LADO. '' SI LO PUEDES SOÑAR, LO PUEDES LOGRAR''. Esta información es solo orientativa del inmueble.

última modificació

Distribució

  • Superfície 510 m2
Anunci: 33634000003114

Ubicació

Casablanca - Calvario Rúa do Barrio Ribadavia

Navega pel mapa fent clic a sobre
T´avisem quan tinguem un anunci com aquest? Crea la teva alerta i nosaltres t´avisarem per correu electrònic quan hi hagin nous anuncis o siguin modificats
 

Contactar INMOBILIARIA FLY

Referència de l´anunci habitaclia/S002294:

Veuràs el telèfon després d´enviar el contacte a l´anunciant perquè et pugui atendre.
Veuràs el telèfon després de contactar
Enviant…