Comentari guardat!
Només ho veuràs tú
Comment saved!
Añade tu valoración y/o un comentario para este anuncio. Sólo lo verás tú

Xalet amb calefacció aparcament piscina a Albolote

Calle Torre de Comares

  • 301 m2
  • 5 hab.
  • 3 banys
  • 980 €/m2

CHALET EN VILLAS BLANCAS, ALBOLOTE

Chalet independiente amplio y luminoso en Urbanización Villas Blancas, Albolote

Situado en un entorno tranquilo y exclusivo, este chalet independiente ofrece confort, amplitud y una excelente calidad de vida, con múltiples posibilidades de personalización.
Con 300 m² construidos sobre una parcela de 349 m², la vivienda se beneficia de una orientación sur que proporciona luz natural durante todo el día.

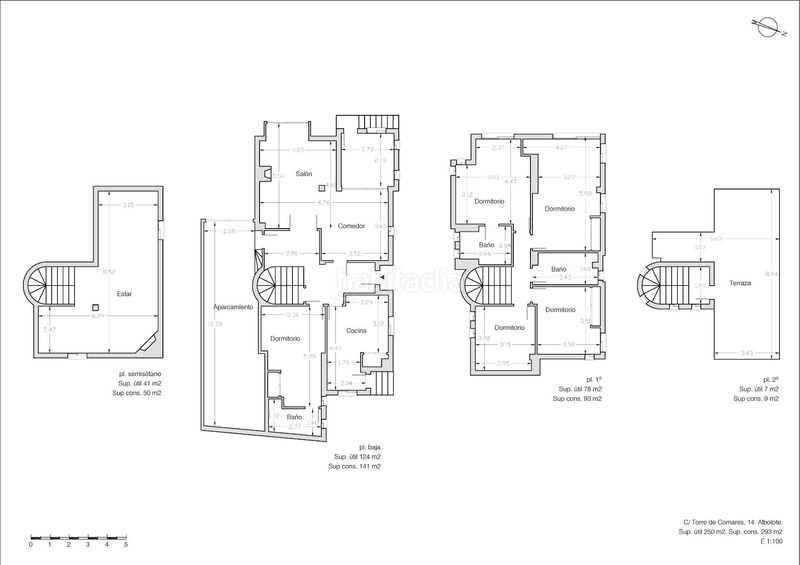
Distribución:
Planta baja: amplio recibidor, gran salón con dos ambientes (uno con chimenea y ventanal y otro con salida al porche cubierto y jardín con piscina), cocina independiente muy amplia, habitación polivalente y baño completo con bañera.
Planta primera: dormitorio principal con ducha de hidromasaje y bomba de frío y calor, habitación actualmente utilizada como despacho revestida en madera, dos dormitorios adicionales y un baño completo con bañera.
Sótano y trastero: espacio amplio con chimenea, ideal como segundo salón, sala de ocio, gimnasio o bodega, además de zona de almacenaje.
Jardín consolidado con piscina y barbacoa, perfecto para disfrutar del aire libre y momentos en familia. Garaje y parking incluidos. Torreón con terraza de 17 m² con vistas a la Ermita de los Tres Juanes y espectaculares puestas de sol.
La vivienda cuenta con calefacción por gas y bomba de frío y calor en el salón y dormitorio principal. Dispone de armarios empotrados, puerta blindada y portón automático, ofreciendo confort, seguridad y funcionalidad en cada espacio.
La urbanización dispone de salón social, pistas de tenis y fútbol sala, y zona infantil. Ubicación estratégica a solo 15 minutos de Granada y 78 km de la playa.
Una oportunidad única para vivir en un entorno tranquilo con todas las comodidades. Contacta para más información o para concertar una visita sin compromiso.
El PVP indicado no incluye impuestos, gastos de escritura ni honorarios de agencia. Las superficies expresadas en esta página tienen carácter descriptivo y son aproximadas. Los precios pueden ser susceptibles de modificación sin previo aviso,

última modificació

Distribució

  • 5 habitacions
  • Superfície 301 m2
  • Terreny 349 m2
  • 3 banys
  • Cuina Tipus Office: No

Característiques generals

  • Calefacció
  • Piscina pròpia
  • Plaça aparcament
  • Aire Acondicionat
  • Certificat energètic :
    Consumo:
    F
    85 kW h m2 / año
    Emisiones:
    G
    406 kg CO2 m2 / año
Anunci: 57966000000296

Ubicació

Calle Torre de Comares

Navega pel mapa fent clic a sobre
295.000 € Preu de l´anunci
2.065 €/m2€/m2 población
980 €/m2€/m2 de l´anunci
53% més econòmic que la mitja*
Veure evolució €/m2 a Albolote
T´avisem quan tinguem un anunci com aquest? Crea la teva alerta i nosaltres t´avisarem per correu electrònic quan hi hagin nous anuncis o siguin modificats
 

Contactar V KW Kinver

Referència de l´anunci habitaclia/17115:

Veuràs el telèfon després d´enviar el contacte a l´anunciant perquè et pugui atendre.
Veuràs el telèfon després de contactar
Enviant…