Comentari guardat!
Només ho veuràs tú
Comment saved!
Afegeix la teva valoració i/o un comentari per aquest anunci. Només el veuràs tu
1.250.000 € Avisa´m si baixa

Xalet amb piscina a Cala Blanca Ciutadella de Menorca

  • 206 m2
  • 4 hab.
  • 4 banys
  • 6.068 €/m2

Chalet de nueva construcción con piscina en Son Blanc

Chalet de nueva construcción con piscina, ubicado en la urbanización de Son Blanc, en un entorno residencial consolidado, a un paso de Ciutadella y muy cerca de la playa de Sa Caleta.

La vivienda destaca por la alta calidad de su construcción, sus instalaciones y los materiales empleados, así como por su distribución cómoda y funcional, con estancias amplias y luminosas. Ha sido construida por uno de los mejores constructores de Menorca, garantizando el máximo cuidado en cada detalle y acabado.

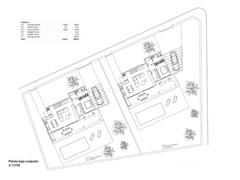
La propiedad cuenta con una superficie construida de 205 m², distribuidos en dos plantas, sobre una parcela de aproximadamente 600 m².

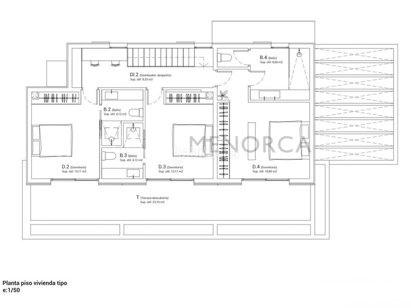
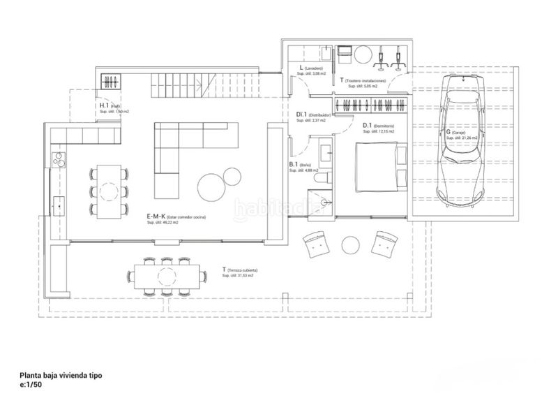
En la planta baja se dispone una amplia zona de cocina-comedor-salón de unos 50 m², con acceso directo a la terraza y a la piscina. Además, cuenta con un dormitorio doble con armario empotrado, un baño con salida al exterior, lavadero y cuarto de máquinas.

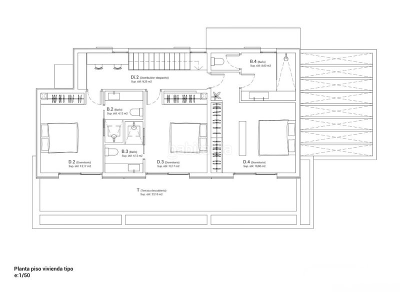
La primera planta alberga tres amplios dormitorios, todos ellos con baño en suite y agradables vistas.

Una vivienda ideal tanto para residir durante todo el año como para disfrutar de largas estancias en la isla.
#ref:C356

última modificació

Distribució

  • 4 habitacions
  • Superfície 206 m2
  • Terreny 684 m2
  • 4 banys

Característiques generals

  • Piscina pròpia
  • Sense aire acondicionat
  • Certificat energètic :
    Exempt
Anunci: 28110000002075

Ubicació

Cala Blanca

Navega pel mapa fent clic a sobre
1.250.000 € Preu de l´anunci
4.178 €/m2€/m2 población
6.068 €/m2€/m2 de l´anunci
Veure evolució €/m2 a Ciutadella de Menorca
T´avisem quan tinguem un anunci com aquest? Crea la teva alerta i nosaltres t´avisarem per correu electrònic quan hi hagin nous anuncis o siguin modificats
 

Contactar PORTAL MENORCA

Referència de l´anunci habitaclia/C356:

Veuràs el telèfon després d´enviar el contacte a l´anunciant perquè et pugui atendre.
Veuràs el telèfon després de contactar
Enviant…