Comentari guardat!
Només ho veuràs tú
Comment saved!
Añade tu valoración y/o un comentario para este anuncio. Sólo lo verás tú
6.495.000 € Avisa´m si baixa
ha baixat 1.005.000 €

Xalet amb aparcament piscina a Los Naranjos Marbella

  • 1.023 m2
  • 5 hab.
  • 5 banys
  • 6.349 €/m2

Villa de lujo de 5 dormitorios y 5 baños con vistas al mar. Nueva Andalucía, Marbella

Esta villa en Nueva Andalucía de Marbella es una lujosa combinación de tecnología moderna y naturaleza. Situado en una parcela triangular, ¡primera línea de golf desde ambos lados! ¡Al final de una calle sin salida para disfrutar de una privacidad de primer nivel! La villa fue construida sin reparar en gastos. Cuenta únicamente con materiales de la más alta calidad, incluidos gabinetes, puertas, ventanas y persianas eléctricas, todo de la marca de lujo Roman Clavero.

La propiedad está a pocos minutos de la playa, Puerto Banús, tiendas y Aloha College. Esta villa completamente amueblada cuenta con muebles italianos de lujo personalizados de la marca de alta gama Smania, que ofrece elegancia y comodidad incomparables. La Villa incluye cinco dormitorios con baños en suite, una amplia sala de estar, una cocina totalmente equipada con comedor, un lavadero y un trastero.

Las comodidades incluyen terrazas interiores y exteriores, una piscina infinita climatizada de agua salada, un gimnasio, una zona de spa con baño turco y sauna finlandesa y un espacioso garaje para 10 coches con techo de cristal para luz natural. ¡La villa cuenta con impresionantes vistas al campo de golf, al mar, a La Concha y al jardín tropical con más de 20 palmeras!

Sistema domótico avanzado, alarma preinstalada y cámaras de vigilancia de siguiente nivel para garantizar que pueda controlar y monitorear su hogar desde cualquier parte del mundo.

¡Debes verlo, no durará!

última modificació

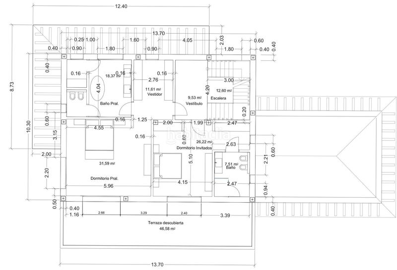
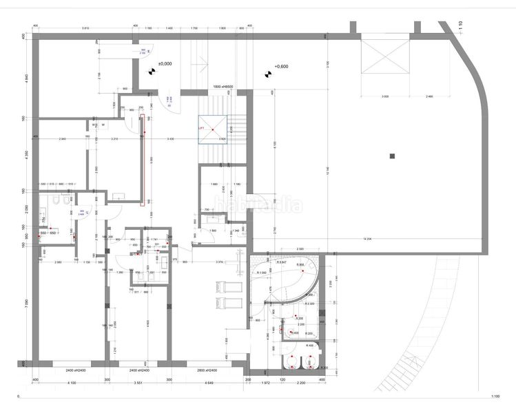
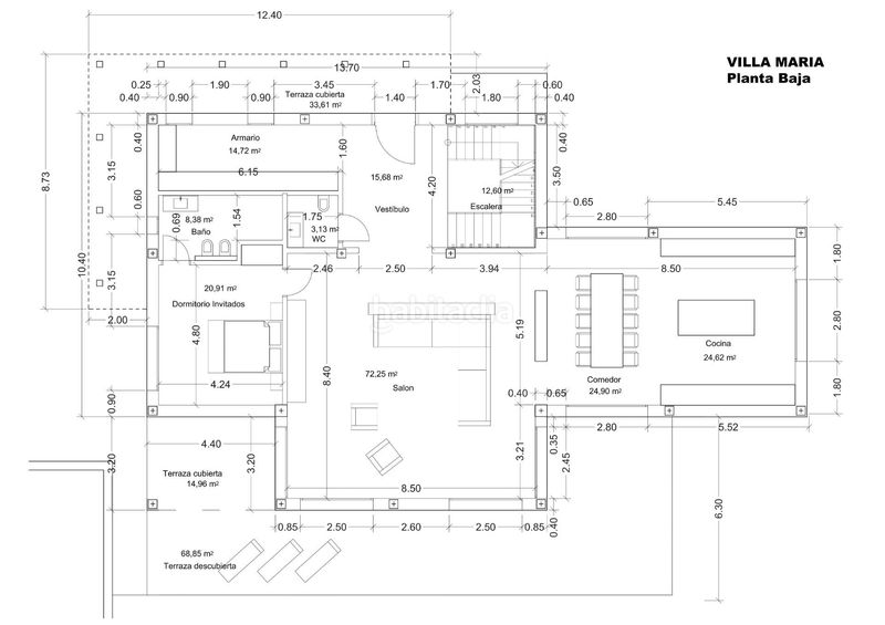
Distribució

  • 5 habitacions
  • Superfície 1023 m2
  • Terrassa 70 m2
  • 5 banys
  • Traster

Característiques generals

  • Piscina pròpia
  • Plaça aparcament
  • Aire Acondicionat
  • Any construcció 2016
  • A prop de transport públic
  • Certificat energètic :
    Consumo:
    G
    999 kW h m2 / año
    Emisiones:
    G
    999 kg CO2 m2 / año

Equipament comunitari

  • Piscina Comunitària
Anunci: 22964000004990

Ubicació

Los Naranjos

Navega pel mapa fent clic a sobre
6.495.000 € Preu de l´anunci
5.866 €/m2€/m2 distrito
6.349 €/m2€/m2 de l´anunci
Veure evolució €/m2 a Marbella (Nueva Andalucía)
T´avisem quan tinguem un anunci com aquest? Crea la teva alerta i nosaltres t´avisarem per correu electrònic quan hi hagin nous anuncis o siguin modificats
 

Contactar LV REAL ESTATE & ARCHITECTURE

Referència de l´anunci habitaclia/02802:

Veuràs el telèfon després d´enviar el contacte a l´anunciant perquè et pugui atendre.
Veuràs el telèfon després de contactar
Enviant…