Comentari guardat!
Només ho veuràs tú
Comment saved!
Añade tu valoración y/o un comentario para este anuncio. Sólo lo verás tú

Xalet amb aparcament a Riumors

36 Horts del Poble

  • 134 m2
  • 3 hab.
  • 2 banys
  • 1.492 €/m2

Finca en Riumors para reformar

Situada en el tranquilo pueblo de Riumors, esta propiedad es una oportunidad excepcional para quienes buscan un proyecto de reforma en el Alt Empordà. La finca destaca por su impresionante parcela de 3.260 m2, un espacio de gran privacidad.

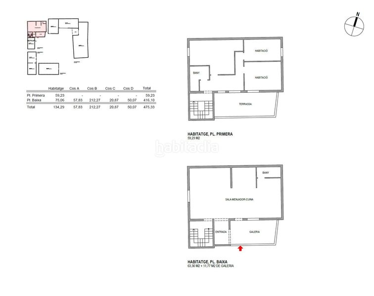
La construcción principal es una vivienda de dos plantas. Su distribución actual cuenta con una luminosa galería de entrada, zona de día en la planta baja y una planta superior con dos habitaciones y una terraza con vistas despejadas al paisaje ampurdanés.

El verdadero valor añadido de la finca reside en sus más de 340 m2 de construcciones anexas. Cuatro naves independientes de diferentes dimensiones, destacando una gran nave central de 212 m2 con porche, ofrecen una versatilidad inigualable. Estos espacios son ideales para ser transformados en estudios de arte, talleres, almacenes, etc. Así mismo consta de tres fincas rústicas adjuntas de más de 2500m2.

Ubicada a pocos minutos de las playas de la Costa Brava y de Figueres, esta propiedad combina la calma de un entorno rural con la proximidad de todos les Servicios a pocos minutos. Una inversión inteligente para transformar una estructura sólida en un refugio a medida, con un patio de dimensiones extraordinarias.
En cumplimiento de las obligaciones de información previstas en la Ley 10/2025, de 28 de diciembre, de servicios de atención a la clientela y transparencia, así como en la normativa sectorial vigente, se hace constar que el precio indicado no incluye los gastos e impuestos inherentes a la adquisición, los cuales se desglosan a continuación:

· Impuesto sobre Transmisiones Patrimoniales (ITP): Se aplicará el tipo impositivo vigente en la Comunidad Autónoma de Cataluña (Valor del Inmueble hasta 600.000€ = 10% (CÁLCULO19.990€), de 600.001€ a 900.000€ = 11%, de 900.001€ a € = 12%, más de € = 13%), sin perjuicio de los tipos reducidos del 5%, y el 7% aplicables según las circunstancias personales del comprador o las características del inmueble o los tipos reducidos del 3% o 4% aplicables, en los términos legalmente establecidos, para la adquisición de vivienda habitual situada en municipios de menos de 5.000 habitantes, siempre que concurran los requisitos exigidos por la normativa vigente. El impuesto se devenga sobre el Valor de Referencia de Catastro o el precio de venta, aquel que resulte superior.

· Gastos de Notaría: Los honorarios notariales se calcularán conforme al arancel oficial regulado en el Anexo I, del Real Decreto 1426/1989, de 17 de noviembre, por el que se aprueba el arancel Notarial.

· Gastos de Registro: La inscripción en el Registro de la Propiedad se facturará según el arancel oficial establecido en el ANEXO I, del Real Decreto 1427/1989, de 17 de noviembre, por el que se aprueba el arancel de los Registradores de la Propiedad.

· Gastos de Gestión (Gestoría): Los honorarios por la tramitación administrativa, liquidación de impuestos e inscripción registral ascienden a 600 € (IVA incluido).

· Honorarios Agencia del Vendedor: incluidos en el PVP.

· Honorarios Agencia del comprador: Se informa que eventualmente, podrían existir honorarios profesionales a cargo del adquirente, en aquellos casos, en que se hubieran contratados servicios de encargo de compra (PSI), Personal Shopper Inmobiliario. NO VINCULADOS AL PRECIO DE COMPRA.

Para una información exhaustiva sobre el funcionamiento, tipos impositivos y bonificaciones del ITP en Cataluña, puede consultar el portal oficial de la Agencia Tributaria Catalana: /es/tributs/itpajd/tpo/tarifes-tipus/

última modificació

Distribució

  • 3 habitacions
  • Superfície 134 m2
  • Terreny 6010 m2
  • 2 banys

Característiques generals

  • Plaça aparcament
  • Any construcció 1975
  • Certificat energètic :
    Consumo:
    E
    61 kW h m2 / año
    Emisiones:
    G
    361 kg CO2 m2 / año
Anunci: 56228000000238

Ubicació

36 Horts del Poble

Navega pel mapa fent clic a sobre
199.900 € Preu de l´anunci
2.967 €/m2€/m2 comarca
1.492 €/m2€/m2 de l´anunci
50% més econòmic que la mitja*
Veure evolució €/m2 a Riumors
T´avisem quan tinguem un anunci com aquest? Crea la teva alerta i nosaltres t´avisarem per correu electrònic quan hi hagin nous anuncis o siguin modificats
 

Contactar Keller Williams Girona

Referència de l´anunci habitaclia/7436 :

Veuràs el telèfon després d´enviar el contacte a l´anunciant perquè et pugui atendre.
Veuràs el telèfon després de contactar
Enviant…