Visita virtual
Comentari guardat!
Només ho veuràs tú
Comment saved!
Añade tu valoración y/o un comentario para este anuncio. Sólo lo verás tú

Xalet a clavel 6 a La Garita - Marpequeña Telde

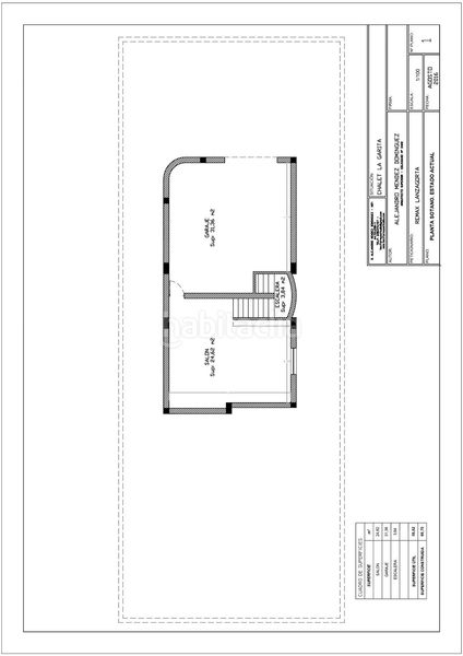
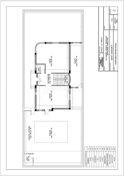
  • 256 m2
  • 5 hab.
  • 4 banys
  • 2.266 €/m2

CHALET LA ESTRELLA LA GARITA

Este elegante chalet ubicado en la codiciada zona de La Estrella, ofrece una vivienda cuidada al detalle, pensada para disfrutar desde el primer instante.
Desde el primer paso, la propiedad transmite una sensación de armonía, amplitud y luminosidad, con espacios diseñados para vivir y compartir. Su estilo actual, combinado con materiales de calidad, crea un ambiente sofisticado y acogedor, ideal para quienes valoran el confort sin renunciar al diseño. La vivienda cuenta con una suite principal con baño en suite y vestidor, un espacio íntimo y funcional que aporta un plus de comodidad y exclusividad al día a día.
El exterior se convierte en una extensión natural del hogar, perfecto para disfrutar del clima , desayunos al sol, momentos de relax o encuentros inolvidables en buena compañía.
La ubicación es, sin duda, uno de sus grandes atractivos. A pocos minutos de la playa de La Garita, podrás disfrutar del mar siempre que lo desees. Además, la zona ofrece una amplia variedad de servicios: supermercados, comercios locales, cafeterías, restaurantes , centros educativos y zonas deportivas, todo ello con excelentes conexiones.
Vivir aquí es elegir calidad de vida, comodidad y bienestar en un entorno tranquilo.

Enlace al reportaje 3D: /show/?m=rUjBfrsNCQD

Los gastos propios de la compraventa, notaría, registro, impuestos, etc., no están incluidos en el precio de venta. Las cargas de la propiedad (si las hubiese) no las soportará el comprador salvo pacto en contra, la inmobiliaria tiene compromiso escrito del vendedor para entregar la propiedad libre de cargas, al corriente de impuestos, contribuciones y gravámenes. Gastos de la compraventa: generalmente, hay contar con un 20% de lo que cuesta la propiedad a comprar para la entrada, ya que la hipoteca únicamente permite conseguir hasta un 80% del valor de la vivienda en la mayoría de los casos (puede ser más en función del banco, perfil económico del comprador u otras circunstancias que permiten incluso llegar al 100%, consulte en caso de duda para hacer un estudio personalizado). También debe aportarse de ahorro otra parte para pagar gastos e impuestos derivados de la compraventa. Esta parte supone entre un 8% y un 12% del precio de la vivienda y puede variar según el valor de la propiedad y pueden variar según las circunstancias de la compraventa y capacidad del comprador.
Simulación aproximada para esta propiedad en concreto (no se puede dar coste exacto ya que dependerá de factores ajenos al vendedor o la inmobiliaria como si la operación se realiza de contado o con financiación por ejemplo):
Total necesario para comprar la propiedad: 157.010,00 €
Desglose: Para la entrada de la vivienda
Ahorros necesarios para el pago de la entrada: 116.000,00 €
Gastos de la compraventa:
Escritura pública en la notaría 2.030,00 €
Inscripción en el Registro de la Propiedad 580,00 €
Honorarios de la gestoría 300 €
Tasación del inmueble 400 €
Impuesto de Transmisión Patrimonial (ITP) 37.700,00 €Reducciones aplicables ITP Canarias 2026:
- Vivienda Habitual (5 %): límite del precio de la vivienda 200.000 € (En el caso de familias numerosas (CG) hasta 300.000 € y (CE) hasta 400.000 €
- Jóvenes (4 %): Se aplica a la compra de la 1ª vivienda habitual (hasta 40 años)
- Colectivos Especiales (4 % o 1 %): requisitos de renta (generalmente hasta 46.455 € de base imponible)
a. Familias numerosas y monoparentales: Pueden tributar al 4 % o al 1 % según su nivel de ingresos
b. Personas con discapacidad: Tipo del 4 % (discapacidad = 33 %) o del 1 % (discapacidad = 65 %)
c. Víctimas de violencia de género: Tienen acceso a los tipos del 4 % o 1 % dependiendo de su renta
- Viviendas de Protección Oficial (VPO): Pueden beneficiarse de un tipo del 4 % o incluso quedar exentas (0 %) en supuestos específicos de vulnerabilidad o juventud.

última modificació

Distribució

  • 5 habitacions
  • Superfície 256 m2
  • Terrassa 158 m2
  • Terreny 254 m2
  • 4 banys
  • Traster

Característiques generals

  • Piscina pròpia
  • Plaça aparcament
  • Aire Acondicionat
  • Any construcció 2001
  • A prop de transport públic
  • Certificat energètic :
    Consumo:
    G
    999 kW h m2 / año
    Emisiones:
    G
    999 kg CO2 m2 / año
Anunci: 33907000000352

Ubicació

La Garita - Marpequeña CLAVEL 6

Navega pel mapa fent clic a sobre
580.000 € Preu de l´anunci
1.547 €/m2€/m2 población
2.266 €/m2€/m2 de l´anunci
Veure evolució €/m2 a Telde
T´avisem quan tinguem un anunci com aquest? Crea la teva alerta i nosaltres t´avisarem per correu electrònic quan hi hagin nous anuncis o siguin modificats
 

Contactar COSTA TELDE SERVICIOS INMOBILIARIOS

Referència de l´anunci habitaclia/CT00571:

Veuràs el telèfon després d´enviar el contacte a l´anunciant perquè et pugui atendre.
Veuràs el telèfon després de contactar
Enviant…