Comentari guardat!
Només ho veuràs tú
Comment saved!
Afegeix la teva valoració i/o un comentari per aquest anunci. Només el veuràs tu
1.037.000 € Avisa´m si baixa

Xalet amb calefacció aparcament piscina a Colonia Torrelodones

  • 380 m2
  • 4 hab.
  • 6 banys
  • 2.729 €/m2

ADOSADO EN URBANIZACIÓN PRIVADA

Chalet adosado de lujo en una urbanización cerrada, con piscina y gimnasio comunitario en el centro de Torrelodones Colonia. A 100 metros de la parada de autobús a Madrid y a 5 minutos caminando de la estación de Renfe. Junto a comercios, farmacias, supermercados y centros culturales, deportivos y de ocio.

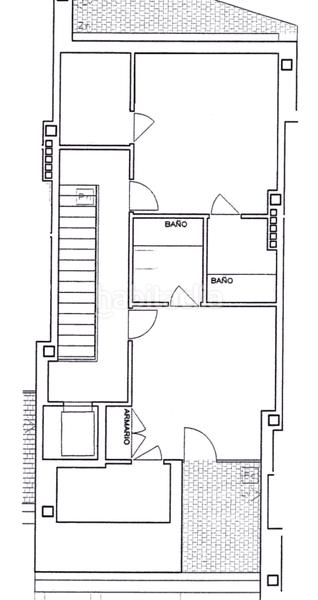
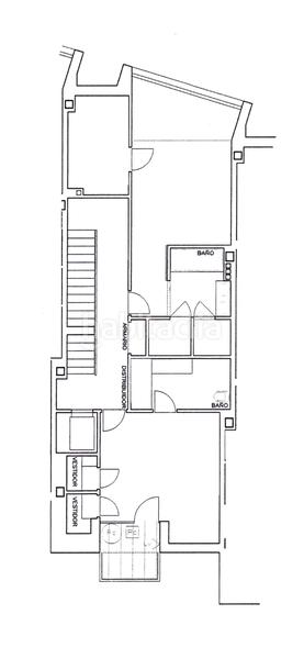
La vivienda tiene 380 m² construidos, útiles 295 m² y está distribuida en 4 plantas, con ascensor en todas ellas, siendo ideal para la comodidad de cualquier persona con movilidad reducida.

Se accede a la vivienda por un recibidor donde se encuentran la cocina con office, de unos 18 m², con muebles y electrodomésticos recién cambiados, aire acondicionado y un gran ventanal que le da mucha luminosidad a la estancia. Un aseo de cortesía y un salón comedor de 40 m² con aire acondicionado, que da acceso a una terraza privada de 40 m² con acceso directo a las zonas comunes y a la piscina.

En la primera planta, se encuentra el dormitorio principal tipo suite de 25 m², con un vestidor y un gran ventanal hasta el techo (muy luminoso), otro segundo dormitorio tipo suite de 20 m² con vestidor y una pequeña terraza.

En la última planta abuhardillada, se encuentran otros 2 dormitorios en suite de unos 15 metros cuadrados cada uno, con vestidor y con aire acondicionado. Uno de ellos tiene una terraza con vistas de unos 5 m².

En la planta semisótano se encuentra el gran valor añadido de esta vivienda, 102 m2 diáfanos con luz natural y acceso directo desde la calle. Actualmente se encuentra configurada como oficina, siendo perfecta para pymes, autónomos o profesionales y dispone de un baño completo con ducha, lo que le hace poder darle uso como apartamento en alquiler. Desde esta planta se accede también a las 2 plazas de aparcamiento y también a la vivienda, sin necesidad de salir a la calle.

La calefacción es de gas natural por suelo radiante, la carpintería exterior es en aluminio con doble cristal y la interior en madera lacada en blanco. Los suelos en las habitaciones son de parquet de bambú y mármol en el resto de la vivienda. Pintura lisa, techos altos, persianas automáticas, toldo automático en el salón y orientación este oeste, teniendo muchas horas de luz durante todo el día.

última modificació

Distribució

  • 4 habitacions
  • Superfície 380 m2
  • Terrassa 40 m2
  • Terreny 40 m2
  • 6 banys
  • Cuina Tipus Office

Característiques generals

  • Calefacció
  • Plaça aparcament
  • Aire Acondicionat
  • Any construcció 2008
  • A prop de transport públic
  • Certificat energètic :
    Consumo:
    G
    999 kW h m2 / año
    Emisiones:
    G
    999 kg CO2 m2 / año

Equipament comunitari

  • Piscina Comunitària
Anunci: 17886000000920

Ubicació

Colonia

Navega pel mapa fent clic a sobre
1.037.000 € Preu de l´anunci
4.024 €/m2€/m2 comarca
2.729 €/m2€/m2 de l´anunci
32% més econòmic que la mitja*
Quant t´agradaria pagar?
Veure evolució €/m2 a Torrelodones (Colonia)
T´avisem quan tinguem un anunci com aquest? Crea la teva alerta i nosaltres t´avisarem per correu electrònic quan hi hagin nous anuncis o siguin modificats
 

Contactar EXCLUSIVAS DOMINGO

Referència de l´anunci habitaclia/1487:

Veuràs el telèfon després d´enviar el contacte a l´anunciant perquè et pugui atendre.
Veuràs el telèfon després de contactar
Enviant…