Comentari guardat!
Només ho veuràs tú
Comment saved!
Afegeix la teva valoració i/o un comentari per aquest anunci. Només el veuràs tu

Lloguer oficina a Eixample Sant Cugat del Vallès

  • 1.112 m2
  • 12,50 €/m2

Alquiler de oficina en Sant Cugat

2 edificios de oficinas en la zona de negocios de Sant Cugat, con una S.B.A. de 25.385 m2

El edificio I consta de PB+4 y S.B.A. de 15.377 m2 con 219 plazas de aparcamiento. El edificio II consta de PB+9 y S.B.A. de 10.008 m2 y 251 plazas de aparcamiento. Ambos edificios con varios núcleos de acceso independientes y plantas flexibles para división modular. El complejo de negocios está estratégicamente ubicado con respecto a Barcelona (25 Kms.) y el área del Vallés, con ciudades como Sabadell, Sant Cugat y Tarrassa. Los edificios se encuentran a unos 400 metros de la autovía A-7 (Barcelona- Francia). El acceso por carretera a la red de autopistas es directo por la B-30 a la A-2 y A-7.

Los principales inquilinos son Ricoh, Nespresso, Dunlop y Sigma

Servicios del edificio
• Servicio de conserjería y vigilancia 365x24
• Servicio de mantenimiento permanente
• Zonas ajardinadas privadas del edificio
• Aparcamiento interior / exterior en el edificio
• Vestuarios / lockers en el propio edificio
• Dos pistas de pádel de uso privativo

Características destacables
• Espacios diáfanos con abundante luz natural
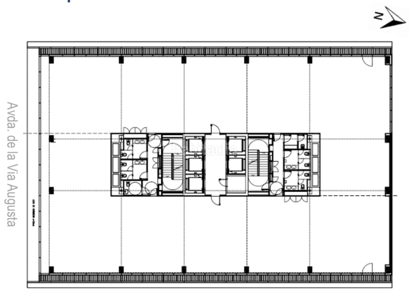
• Planta rectangular altamente aprovechable
• Proximidad al Centro Comercial Sant Cugat

Superficie: 1.112 m2
Renta: 13.900 €/mes (12,50€/m²)
Gastos de comunidad e IBI: 4.370,16 €/mes (3,93€/m²)
Total: 18.270,16 €/mes + IVA
Fianza legal: 2 mensualidades
Garantías adicionales: según solvencia económica
Disponibilidad: Inmediata

Contáctenos sin compromiso para más información sobre esta oficina o sobre otras que tenemos en cartera.


English Translation:

2 office buildings in Sant Cugat business district, with a GLA of 25,385 sqm

Building I has ground floor + 4 with total G.L.A. of 15,377 sqm and 219 parking spaces. Building II has ground floor + 9 with total G. 10,008 sqm and 251 parking spaces. Both buildings benefit from various independent lobby entrances and the floors are flexible allowing for multitenancy specs. The business park is strategically located between Barcelona (25kms.) and the Vallés area, where cities like Sabadell, Sant Cugat and Tarrassa are located. The A-7 highway is only located at 400 meters distance.

Direct access by road to the main highways (A-2 and A-7) through the B-30. Main tenants are Ricoh, Nespresso, Dunlop and Sigma.

Building services
• Concierge and surveillance service 365x24
• Permanent maintenance service
• Private landscaped areas of the building
• Indoor / outdoor parking in the building
• Changing rooms / lockers in the building itself
• Two paddle tennis courts for private use

Outstanding features
• Open spaces with abundant natural light
• Highly usable rectangular plan
• Proximity to the Sant Cugat Shopping Center

Surface: 1.112 sqm
Rent: 13.900 €/month (12,50€/sqm)
Monthly expenses: 4.370,16 €/month (3,93€/sqm)
Total: 18.270,16 €/month + IVA
Legal deposit: 2 months
Bank guarantee: According to economic solvency
Availability: Immediate

Contact us for more information about our portfolio.

Traducció Català:

2 edificis d'oficines en la zona de negocis de Sant Cugat, amb una S.B.A. de 25.385 m²

L'edifici I consta de PB+4 i S.B.A. de 15.377 m² amb 219 places d'aparcament. L'edifici II consta de PB+9 i S.B.A. de 10.008 m² i 251 places d'aparcament. Tots dos edificis amb diversos nuclis d'accés independents i plantes flexibles per a divisió modular. El complex de negocis està estratègicament situat respecte a Barcelona (25 Km.) i l'àrea del Vallés, amb ciutats com Sabadell, Sant Cugat i Tarrassa. Els edificis es troben a uns 400 metres de l'autovia A-7 (Barcelona- França). L'accés per carretera a la xarxa d'autopistes és directe per la B-30 a la A-2 i A-7.

Els principals inquilins són Ricoh, Nespresso, Dunlop i Sigma

Serveis de l'edifici
• Servei de consergeria i vigilància 365x24
• Servei de manteniment permanent
• Zones enjardinades privades de l'edifici
• Aparcament interior / exterior en l'edifici
• Vestuaris / lockers en el propi edifici
• Dues pistes de pàdel d'ús privatiu

Característiques destacables
• Espais diàfans amb abundant llum natural
• Planta rectangular altament aprofitable
• Proximitat al Centre Comercial Sant Cugat

Superfície: 1.112 m²
Renda: 13.900 €/mes (12,50€/m²)
Despeses de comunitat i IBI: 4.370,16 €/mes (3,93€/m²)
Total: 18.270,16 €/mes + IVA
Fiança legal: 2 mensualitats
Garanties addicionals: segons solvencia econòmica
Disponibilitat: Immediata

Contacti'ns sense compromís per a més informació sobre aquesta oficina i sobre d’altres oficines en cartera.

última modificació

Distribució

  • Superfície 1112 m2

Característiques generals

  • Certificat energètic :
    Consumo:
    E
    209 kW h m2 / año
    Emisiones:
    D
    136 kg CO2 m2 / año
Anunci: 1772002713349

Ubicació

Eixample

Navega pel mapa fent clic a sobre
T´avisem quan tinguem un anunci com aquest? Crea la teva alerta i nosaltres t´avisarem per correu electrònic quan hi hagin nous anuncis o siguin modificats
 

Contactar ENGEL & VÖLKERS

Referència de l´anunci habitaclia/BCN-OS-006156:

Veuràs el telèfon després d´enviar el contacte a l´anunciant perquè et pugui atendre.
Veuràs el telèfon després de contactar
Enviant…