Comentari guardat!
Només ho veuràs tú
Comment saved!
Afegeix la teva valoració i/o un comentari per aquest anunci. Només el veuràs tu
395.000 € Avisa´m si baixa
ha baixat 24.000 €

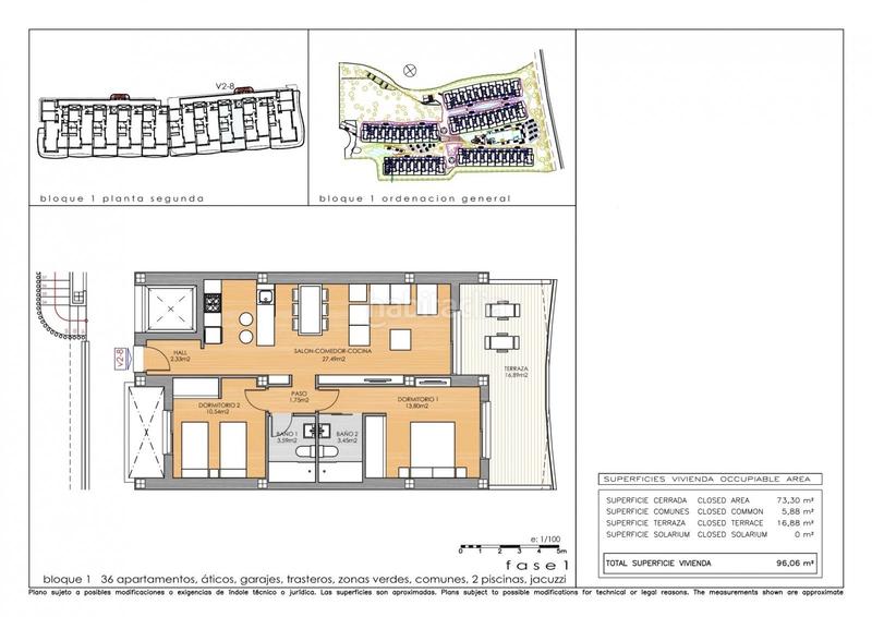
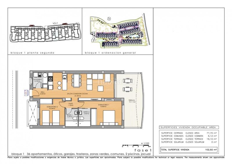
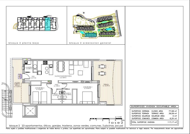
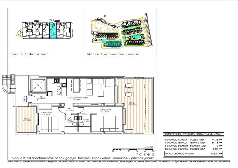
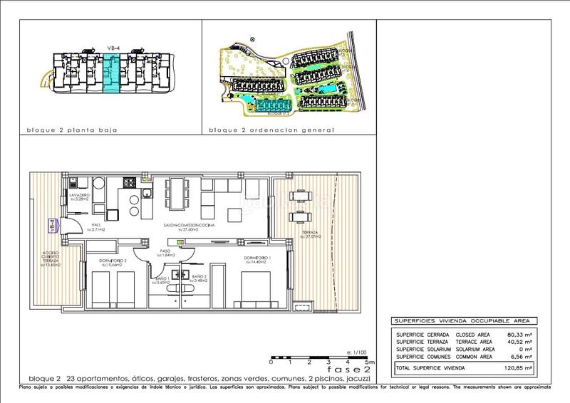
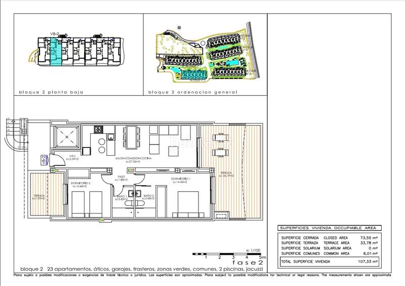
Apartament a Playa Flamenca Orihuela

  • 100 m2
  • 3 hab.
  • 3 banys
  • 3.950 €/m2

Elegantes apartamentos de 2, 3 y 4 dormitorios a poca distancia de la playa en Playa Flamenca
Situada a poca distancia de la playa, esta comunidad contemporánea brinda acceso conveniente a amplias comodidades diarias en la ciudad costera. En particular, los sábados se celebra un animado mercado semanal en la calle Nicolás De Bussi. Estos apartamentos vienen en opciones de 2, 3 y 4 dormitorios, lo que ofrece una variedad de opciones para los residentes potenciales.
Estos codiciados apartamentos en venta en Orihuela, Alicante, cuentan con una ubicación estratégica. Los modernos apartamentos están ubicados en la popular zona de Playa Flamenca, en la Costa Blanca, a solo 700 metros de la hermosa playa. A solo 1 kilómetro del famoso centro comercial La Zenia Boulevard. Centro, a 5 kilómetros del Hospital de Torrevieja, con el Aeropuerto Internacional de Alicante, situado a 50 kilómetros, y el Aeropuerto de Murcia a 54 kilómetros.
Los residentes de esta comunidad pueden disfrutar de varias instalaciones compartidas, incluida una gran piscina comunitaria, áreas verdes y lugares con sombra, lo que lo convierte en un lugar encantador para relajarse y descansar.
Dentro de los apartamentos, no espere más que acabados de alta calidad y diseño contemporáneo. Los interiores están decorados con buen gusto con muebles y decoración modernos. La cocina totalmente equipada cuenta con una encimera de mármol blanco, añadiendo un toque de elegancia al espacio. Los baños están diseñados teniendo en cuenta la estética moderna e incluyen cómodas duchas a ras de suelo. ALC-00375

última modificació

Distribució

  • 3 habitacions
  • Superfície 100 m2
  • 3 banys

Característiques generals

  • Aire Acondicionat
  • Certificat energètic :
    Consumo:
    G
    999 kW h m2 / año
    Emisiones:
    G
    999 kg CO2 m2 / año
Anunci: 55825000000473

Ubicació

Playa Flamenca

Navega pel mapa fent clic a sobre
395.000 € Preu de l´anunci
3.444 €/m2€/m2 distrito
3.950 €/m2€/m2 de l´anunci
Quant t´agradaria pagar?
Veure evolució €/m2 a Orihuela (Orihuela Costa)
T´avisem quan tinguem un anunci com aquest? Crea la teva alerta i nosaltres t´avisarem per correu electrònic quan hi hagin nous anuncis o siguin modificats
 

Contactar TEKCE

Referència de l´anunci habitaclia/ALC-00375-3-GroundFloor:

Veuràs el telèfon després d´enviar el contacte a l´anunciant perquè et pugui atendre.
Veuràs el telèfon després de contactar
Enviant…