Visita virtual
Comentari guardat!
Només ho veuràs tú
Comment saved!
Afegeix la teva valoració i/o un comentari per aquest anunci. Només el veuràs tu
2.095.000 € Avisa´m si baixa
ha baixat 100.000 €

Edifici a Centre Sabadell

  • 1.119 m2
  • 1.872 €/m2

Edificio de 6 plantas en venta en Sabadell

Características principales

Edificio de 1.119 m² construido en 1997, ubicado en pleno centro de Sabadell, frente a Escola Pia y junto al Mercado Central. Su enclave combina actividad comercial, servicios de primer nivel y entorno residencial, en una zona de alta demanda, gran tránsito peatonal y excelente accesibilidad.

Distribuido en 6 plantas con ascensor interior:

• Sótano: Garaje amplio con cuartos técnicos.
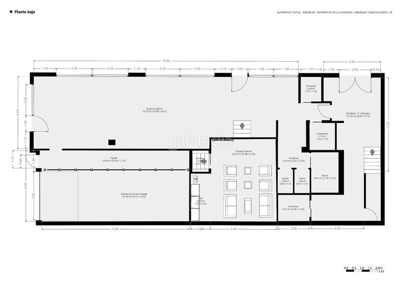
• Planta Baja: Espacio diáfano, aseos adaptados, estancias polivalentes, acceso directo al garaje/ascensor. Ideal como local comercial.
• Primera Planta: Espacio diáfano con aseos y estancias versátiles. Uso potencial como oficinas o espacios privados.
• Segunda Planta: Vivienda con estudios, apartamentos, baños, balcones, lavandería y acceso a ascensor.
• Tercera Planta: Planta principal de vivienda con amplias estancias, cocina, salón, baños, terraza y acceso a ascensor.
• Planta Cubierta: Gran terraza transitable con vestíbulo interior y acceso a ascensor.

Estado y potencial

Parcialmente reformado en 2025. Las plantas segunda y tercera están al 80% (faltan acabados finales). Las demás (baja, primera y cubierta) están entre el 30%-60%, listas para adaptarse a necesidades residenciales, comerciales o mixtas. La estructura admite una amplia variedad de usos: vivienda, oficinas, centro profesional, etc.

Su tamaño, distribución en 6 niveles, ascensor adaptado PMR, ubicación estratégica y fibra dedicada, lo convierten en una inversión versátil con múltiples posibilidades:

• Residencia de estudiantes premium / coliving: Cercanía a UAB y ESDi, distribución ideal y conectividad avanzada.
• Centro de negocios / oficinas / coworking: Plantas diáfanas, ubicación representativa, ascensor y garaje.
• Vivienda plurifamiliar (larga estancia o turística): Posibilidad de división horizontal en unidades residenciales.
• Clínica / centro médico / consultas: Accesibilidad PMR, posibilidad de múltiples despachos y ubicación privilegiada.
• Sede corporativa: Imagen representativa, servicios de alto nivel, ubicación estratégica.

Servicios cercanos

• Educación: Escola Pia justo enfrente. Múltiples centros educativos (públicos, concertados, privados) a 5-10 min a pie.
• Comercio: A pasos del Mercado Central. Supermercados (Mercadona, Caprabo, Bon Preu…) y tiendas de todo tipo en Rambla, Via Massagué y calles aledañas.
• Transporte público: Líneas de bus urbano a <200 m. Estaciones FGC (Sabadell Plaça Major) y RENFE (Sabadell Centre) a 5-10 minutos a pie, con conexión directa a Barcelona.
• Ocio y restauración: Variedad de bares, restaurantes, cafeterías, terrazas, y proximidad a teatros, cines y centros culturales.
• Servicios esenciales: Farmacias (algunas 24h), bancos, centros médicos, CAP Centre, gestorías, gimnasios y oficinas administrativas municipales a distancia peatonal.

Conectividad digital

Excelente cobertura 4G/5G. Instalación de fibra óptica sectorizable por unidad/espacio, ideal para propietarios o empresas que requieran conexiones independientes, fiables y de alto rendimiento.

Solicite más información sin compromiso. [IW]

última modificació

Distribució

  • Superfície 1119 m2

Característiques generals

  • Any construcció 1960
  • Certificat energètic :
    Consumo:
    E
    999 kW h m2 / año
    Emisiones:
    E
    99 kg CO2 m2 / año

Equipament comunitari

  • Ascensor
Anunci: 39423000000581

Ubicació

Centre Garcilaso

Navega pel mapa fent clic a sobre
T´avisem quan tinguem un anunci com aquest? Crea la teva alerta i nosaltres t´avisarem per correu electrònic quan hi hagin nous anuncis o siguin modificats
 

Contactar Immobiliària Dalmases

Referència de l´anunci habitaclia/001135:

Veuràs el telèfon després d´enviar el contacte a l´anunciant perquè et pugui atendre.
Veuràs el telèfon després de contactar
Enviant…