Comentari guardat!
Només ho veuràs tú
Comment saved!
Añade tu valoración y/o un comentario para este anuncio. Sólo lo verás tú

Local comercial a Centro Ferrol

  • 133 m2
  • 1.729 €/m2

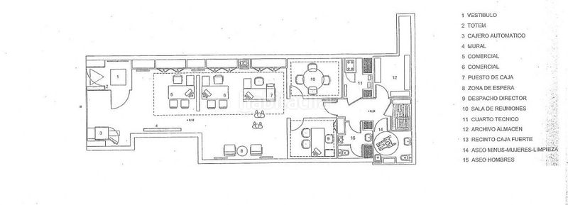
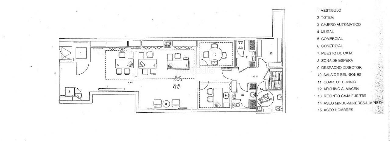
BAJO ACONDICIONADO CENTRICO EN FERROL

Disponemos de un local perfectamente acondicionado para oficina. Fue entidad bancaria.
Muy céntrico y con visibilidad.
Distribuido ahora en cuatro puestos de trabajo, sala de reuniones, almacén y dos baños ( uno apto para minusválidos).
También en alquiler.
Se aceptan ofertas. [IW]

Demanar més dades a l´anunciant

última modificació

Distribució

  • Superfície 133 m2

Característiques generals

  • Certificat energètic :
    Consumo:
    G
    999 kW h m2 / año
    Emisiones:
    G
    999 kg CO2 m2 / año
Anunci: 32421000000973

Ubicació

Centro

Navega pel mapa fent clic a sobre
T´avisem quan tinguem un anunci com aquest? Crea la teva alerta i nosaltres t´avisarem per correu electrònic quan hi hagin nous anuncis o siguin modificats
 

Contactar AKIVIVO

Referència de l´anunci habitaclia/LOC0104 :

Veuràs el telèfon després d´enviar el contacte a l´anunciant perquè et pugui atendre.
Veuràs el telèfon després de contactar
Enviant…