Comentari guardat!
Només ho veuràs tú
Comment saved!
Añade tu valoración y/o un comentario para este anuncio. Sólo lo verás tú

Pis a Centro Estepona

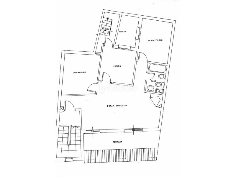
  • 140 m2
  • 2 hab.
  • 1 bany
  • 2.757 €/m2

Piso en el casco antiguo de Estepona

Dúplex luminoso con solárium privado en una ubicación inmejorable, a tan solo 50 metros del paseo marítimo y en pleno casco histórico de Estepona.

Presentamos este amplio y funcional dúplex de 96 m² que combina comodidad interior con amplias zonas exteriores, perfecto tanto para vivir todo el año como para disfrutarlo en vacaciones.

Al acceder a la vivienda, te recibe un amplio salón comedor, muy luminoso, con dos accesos directos a un balcón exterior que aporta ventilación cruzada y una agradable sensación de amplitud.

La planta se completa con dos dormitorios bien distribuidos, un baño completo con bañera y una cocina independiente totalmente equipada, ideal para los amantes de la cocina.

Desde la cocina, accedemos mediante una escalera a la segunda planta, donde nos espera uno de los grandes atractivos de esta vivienda.

Aquí encontrarás un espectacular solárium privado de 74 m², perfecto para disfrutar del clima durante todo el año, montar una zona chill-out, comedor exterior o incluso un pequeño jardín urbano.

Además, cuenta con un lavadero acristalado, funcional y bien ventilado, que añade comodidad al día a día sin restar espacio.

Una propiedad versátil, luminosa y con mucho potencial, ideal para quienes buscan amplitud, privacidad exterior y una distribución cómoda.

¡No dejes pasar esta oportunidad!

Solicita más información o agenda tu visita hoy mismo.
#ref:Alm 386

última modificació

Distribució

  • 2 habitacions
  • Superfície 140 m2
  • 1 bany

Característiques generals

  • Sense aire acondicionat
  • Any construcció 1989
  • Certificat energètic :
    Consumo:
    G
    999 kW h m2 / año
    Emisiones:
    G
    999 kg CO2 m2 / año

Equipament comunitari

  • Sense ascensor
Anunci: 49154000000163

Ubicació

Centro Calle Genalguacil

Navega pel mapa fent clic a sobre
386.000 € Preu de l´anunci
5.122 €/m2€/m2 distrito
2.757 €/m2€/m2 de l´anunci
46% més econòmic que la mitja*
Veure evolució €/m2 a Estepona (Estepona Pueblo)
T´avisem quan tinguem un anunci com aquest? Crea la teva alerta i nosaltres t´avisarem per correu electrònic quan hi hagin nous anuncis o siguin modificats
 

Contactar Bellas Home Real Estate

Referència de l´anunci habitaclia/Alm 386:

Veuràs el telèfon després d´enviar el contacte a l´anunciant perquè et pugui atendre.
Veuràs el telèfon després de contactar
Enviant…